Predaj domu 3+1 • 200 m² bez realitky, Meklenbursko-Predpomoransko
, Meklenbursko-PredpomoranskoMHD 1 minúta pešo • ParkovanieArchitektenhaus (2023) s galériou, ELW & Traumgarten blízko Baltského mora
A+ | takmer energeticky autonómny | pripravený na nasťahovanie | bez provízie
Moderný, vysoko kvalitne postavený architektonický dom v 18317 Saal (Mecklenburg-Vorpommern) – medzi boddenovou krajinou a baltským pobrežím.
Dom dokončený v roku 2023 spája jasnú architektúru, svetlé priestory a premyslené riešenie dispozície s najvyššou energetickou kvalitou.
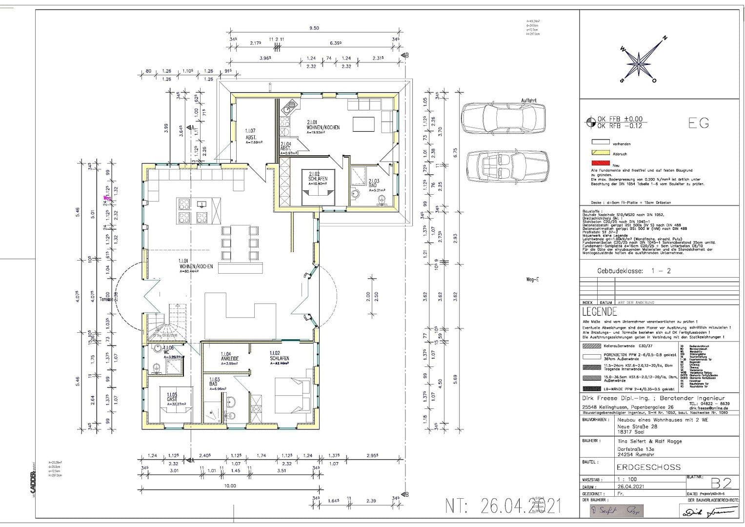
Údaje o nehnuteľnosti:
Kúpna cena: 825.000 €
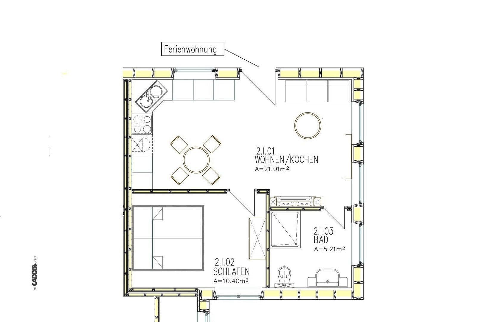
Obytná plocha: cca 200 m² (vrátane samostatného bytu cca 36,5 m²)
Pozemok: cca 753 m²
Rok výstavby: 2023
Energetická trieda: A+
Kompletné dokumenty nehnuteľnosti (dispozície, energetický certifikát, stavebný opis atď.) sú k dispozícii a môžu byť poskytnuté pre finančné dopyty.
Predaj bez provízie priamo od vlastníka.
Opis nehnuteľnosti:
Otvorený obytný priestor s rozlohou približne 100 m² a stropnou výškou okolo 7 m vytvára jedinečný pocit priestoru. Impozantné zasklenie krovu a štědre okná naplňujú miestnosť denným svetlom a vytvárajú harmonické spojenie medzi vnútorným a vonkajším prostredím.
Dom bol postavený v udržateľnom stavebnom štýle a spĺňa najvyššie energetické štandardy. Moderná architektúra sa tu spája s dlhodobou ekonomickou efektivitou a budúcou bezpečnosťou.
Technická výbava & Energia:
• Vzduchové tepelné čerpadlo
• Fotovoltaická inštalácia
• Podlahové kúrenie
• Optické pripojenie
Vďaka modernej domovej technike je takmer energeticky nezávislé bývanie možné. Aktuálne ročné celkové náklady vrátane poplatkov a poistenia budovy sú iba približne 2.800 €.
Samostatný byt (cca 36,5 m²) je multifunkčne využiteľný a disponuje vlastným vchodom, vstavanou kuchyňou a modernou kúpeľňou s bezbariérovou sprchou.
Využitie je stavebne schválené – čo predstavuje podstatnú výhodu, keďže v regióne sú príslušné povolenia udeľované čoraz prísnejšie.
Ideálne pre:
– Výletné prenájmy (schválené)
– Hostí alebo viacgeneračné bývanie
– Samostatné homeoffice
Plánovací a časový prínos:
Novostavby sú v súčasnosti často spojené s dlhými plánovacími a schvaľovacími fázami, ako aj s dobehnutými stavebnými časmi 2–3 rokov. Tu získavate vysoko kvalitný, už dokončený dom – bez stavebného rizika, bez čakania a bez nejasností. Nasťahujte sa namiesto plánovania.
Predaj prebieha bez provízie priamo od vlastníka – čím kupujúcemu prináša značnú úsporu nákladov v porovnaní s bežnými poplatkami maklérov.
Dom je úplne pripravený na nasťahovanie. Odovzdanie prebehne podľa individuálnej dohody. Prehliadky sa uskutočňujú po dohodnutí termínu.
Tešíme sa na vážne dopyty od záujemcov, ktorí ocenia architektonickú kvalitu a jedinečnú energetickú efektívnosť tejto nehnuteľnosti.
Popis polohy:
Saal pri Ribnitz-Damgarten v Meklenbursku-Predpomorí sa nachádza pokojne a v blízkosti prírody, medzi boddenovou krajinou a baltským pobrežím. Okolie ponúka vysokú kvalitu života s množstvom prírody, vody a priestoru – ideálne pre ľudí, ktorí si cenia pokoj a voľnosť.
Baltské more je dostupné približne 25 minút autom. Obchody, školy, materské školy a zdravotná starostlivosť sú situované v blízkom Ribnitz-Damgarten a sú pohodlne dosiahnuteľné približne 10–15 minút jazdy.
Táto poloha spája bývanie v prírode medzi boddenovou krajinou a Baltským morom s praktickou každodennou infraštruktúrou – ideálne pre všetkých, ktorí chcú vychutnávať pokoj prírody bez kompromisov na dostupnosti.
Využitie a potenciál:
Ideálne pre páry s nárokom na architektúru a energetickú efektívnosť, pre viacgeneračné bývanie alebo ako kombinácia vlastného bývania a prenájmu.
Schválený samostatný byt ponúka dodatočné príjmové možnosti alebo poskytuje flexibilný priestor pre hostí, homeoffice či osobný relax.
Vďaka energeticky úspornému spôsobu výstavby (A+) a modernej domovej technike spája nehnuteľnosť dlhodobú nákladovú bezpečnosť s udržateľným zachovaním hodnoty.
Okrem toho:
Náhradné plisované žalúzie vyrobené na mieru v hlavnom dome a v samostatnom byte, ako aj vybrané kusy nábytku, osvetlenie a TV zariadenia môžu byť v prípade záujmu voliteľne nadobudnuté.
Poznámka:
Vzhľadom na vysoký záujem prosíme potenciálnych záujemcov o krátke predstavenie (napr. plánované využitie alebo časový rámec).
Parametre nehnuteľnosti
| Vek | Nad 50 rokov |
|---|---|
| Dispozícia | 3+1 |
| PENB | A - Mimoriadne úsporné |
| Plocha pozemku | 753 m² |
| Stav | Veľmi dobrý |
|---|---|
| Číslo inzerátu | 1007466 |
| Úžitková plocha | 200 m² |
| Cena za jednotku | 4 125 € / m2 |
Čo táto nehnuteľnosť ponúka?
| Balkón | |
| MHD 1 minúta pešo |
| Parkovanie | |
| Terasa |
V okolí nehnuteľnosti nájdete
Stále hľadáte to pravé?
Nastavte si strážneho psa. Ponuky vybrané na mieru dostanete súhrnne 1× denne e-mailom. S Premium profilom máte po ruke rovno 5 strážcov a keď sa niečo objaví, informujú vás obratom.



























