Predaj bytu 4+1 • 110 m² bez realitkyEichendorffstr.5a, , Dolné Sasko
Byt sa nachádza v štvoreposchodovom rade budov. Mnoho bytov je obývaných ich majiteľmi. Správu zabezpečuje spoločnosť Peiner Heimstätte.
Budova sa nachádza na malej bočnej ceste Eichendorffstraße. Na zadnej strane sa nachádza zelená plocha a garáže.
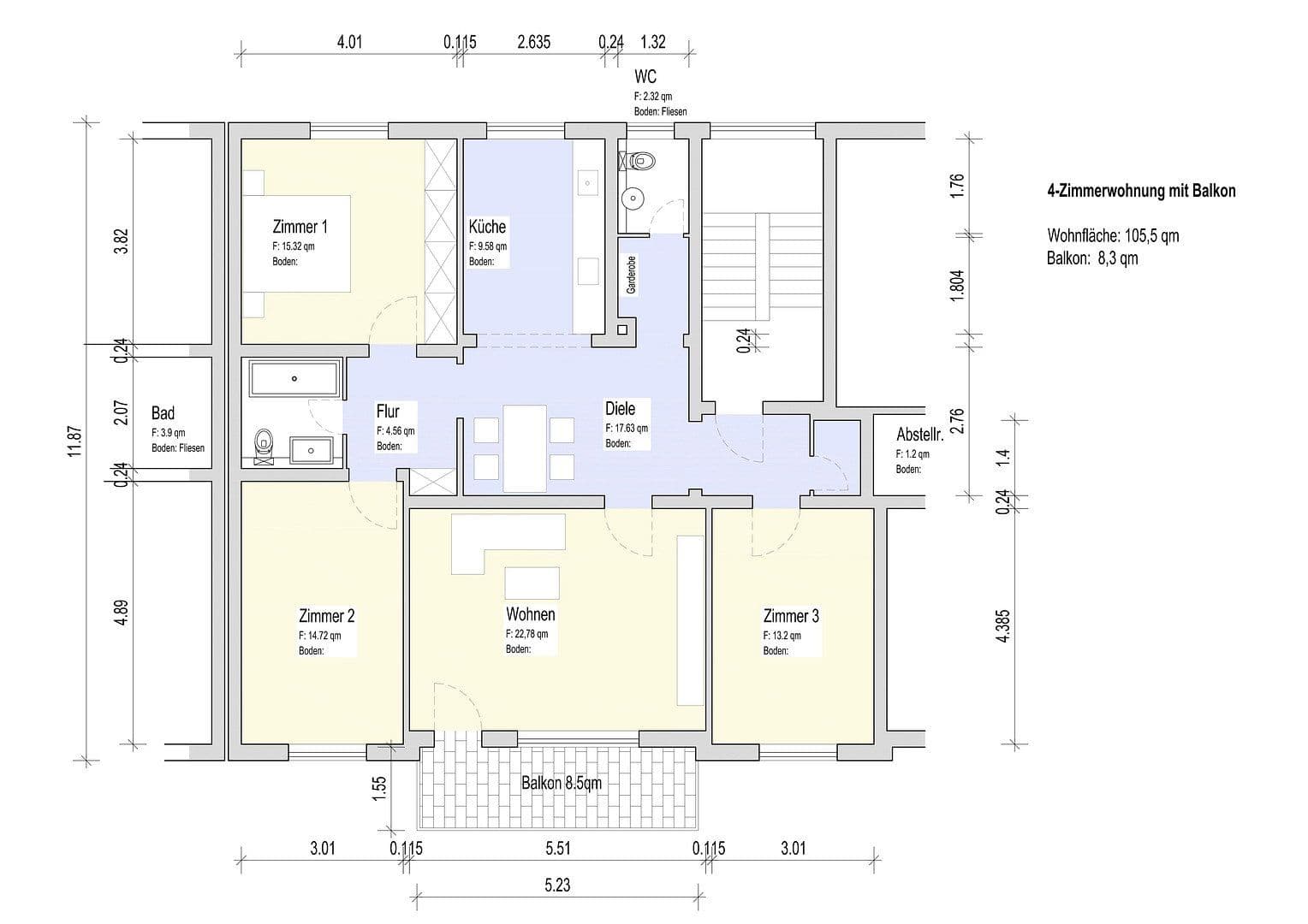
Byt v 2. nadzemnom podlaží zaujme veľmi dobrým pôdorysom.
Ihned pri vstupe sa nachádza szatňa a hostínska toaleta. K dispozícii je priestranná jedálenská miestnosť, ktorá je spojená s kuchyňou cez sklenený dverový prvok. Naproti sa nachádza pekný obývací priestor s balkónom orientovaným na juhozápad. Prostredníctvom samostatného chodby sú prístupné 2 spálne a 1 malá kúpeľňa s vaňou. Tretia spálňa sa nachádza oproti vstupu. Malá komora sa nachádza tiež v rámci bytu.
Ulica Eichendorff sa nachádza v centre severnej časti Peine. Ide o pokojnú obytnú lokalitu. Základná škola je vzdialená 150 m, všetky obchody dennej potreby sú dobre dostupné. Pešo je dostupný aj park s rybníkom.
Podlahové krytiny:
Obývacia izba: dubový parket
Spálne, chodby: laminát
Kuchyňa, kúpeľňa, WC: obklady
Kúpeľne boli zrekonštruované pred 5 rokmi. Balkóny boli zrekonštruované v lete 2025.
V malej kúpeľni sa nachádza WC, umývadlo a vaňa, v ktorej je možné aj sprchovať sa.
V hostínskej toalete sa nachádza WC a umývadlo.
Parametre nehnuteľnosti
| Vek | Nad 50 rokov |
|---|---|
| Dispozícia | 4+1 |
| Číslo inzerátu | 1007457 |
| Cena za jednotku | 1 727 € / m2 |
| Stav | Po rekonštrukcii |
|---|---|
| Poschodie | 2. poschodie z 4 |
| Úžitková plocha | 110 m² |
Čo táto nehnuteľnosť ponúka?
| Balkón | |
| Garáž |
| Pivnica | |
| MHD 1 minúta pešo |
V okolí nehnuteľnosti nájdete
Stále hľadáte to pravé?
Nastavte si strážneho psa. Ponuky vybrané na mieru dostanete súhrnne 1× denne e-mailom. S Premium profilom máte po ruke rovno 5 strážcov a keď sa niečo objaví, informujú vás obratom.











