Predaj domu 5+1 • 137 m² bez realitky, Brandenbursko
Tento udržiavaný radový dom z roku 2002 ponúka na približne 137 m² obytného priestoru a v troch poschodiach dostatok miesta pre celú rodinu. Päť izieb je inteligentne rozmiestnených cez prízemie, prvé poschodie a komplet upravené podkrovie.
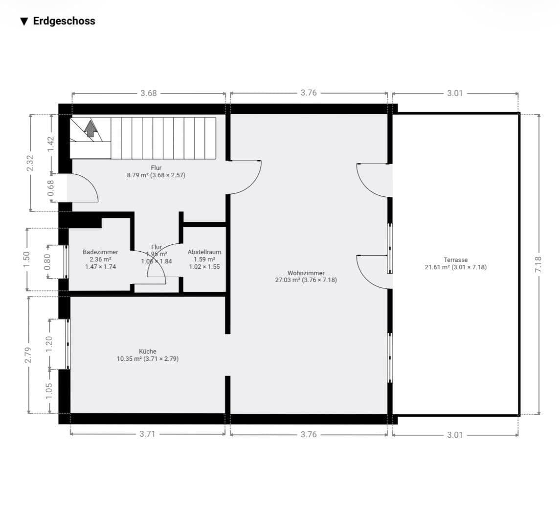
V prízemí vás privíta svetlý obývací a jedálenský priestor s priamym vstupom na juhozápadne orientovanú terasu. Samostatná kuchyňa je plne vybavená a je zahrnutá v kúpnej cene. Kúpeľňa so sprchou, praktický úložný priestor a chodba so vstupujúcimi drevenými schodmi dopĺňajú prízemie.
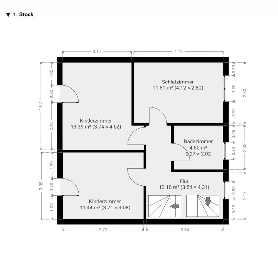
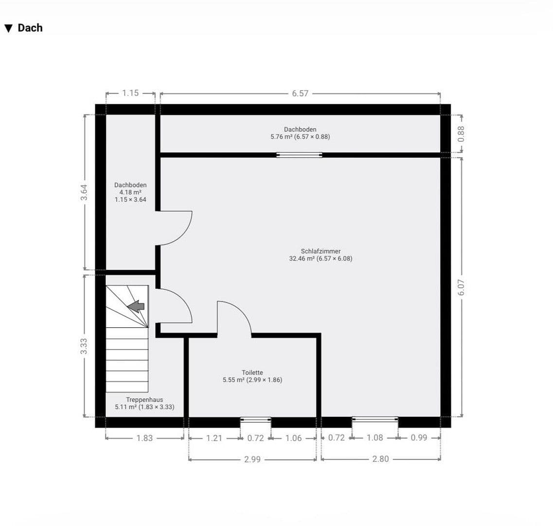
Na prvom poschodí sa nachádzajú tri izby, ideálne využiteľné ako rodičovská spálňa a detské izby, a tiež kúpeľňa s vaňou. Ďalšími drevenými schodmi sa dostanete do upraveného podkrovia, kde nájdete priestrannú miestnosť, ktorá je vynikajúca ako izba pre mládež, domáca kancelária či hobby miestnosť. Samostatná toaleta a ďalší úložný priestor kompletizujú ponuku priestoru.
Hlavnou atrakciou domu je starostlivo upravená záhrada s drevenou terasou, trávnatou plochou a bazénom, ktorý je ideálny pre odpočinok počas letných dní. Juhozápadná orientácia zabezpečuje, že slnko svieti až do večerných hodín.
K domu patrí garáž s elektrickými segmentovými dverami a prístrešok na auto, takže dve vozidlá môžu byť pohodlne uskladnené.
Nehnuteľnosť je okamžite k dispozícii a ponúka sa bez provízie.
Dom sa nachádza v pokojnej obytné ulici v Ludwigsfelde, rastúcom meste s približne 25 000 obyvateľmi v okrese Teltow-Fläming, južne od Berlína.
Okolie je charakterizované rodinnými a radovými domami, poskytujúcimi prostredie vhodné pre rodiny s krátkymi vzdialenosťami.
Obchodné možnosti sú dostupné pešo: supermarket Rewe sa nachádza približne desať minút chôdze. V bezprostrednej blízkosti je aj materská škola a v danej oblasti sa práve stavia nová základná škola – jasný signál rastúcej rodinnej prívetivosti štvrte.
Dopravné spojenie je veľkým plusom tejto lokality. Regionálnym vlakom sa dostanete na berlínsku letisko za približne 10 minút. Prostredníctvom blízkych prístupov na diaľnicu A10 (berlínsky obchvat) a cestu B101 sa rýchlo dostanete do Berlína alebo Potsdamu. Aj mestská autobusová sieť je dobre rozvinutá.
Samo Ludwigsfelde ponúka kompletnú infraštruktúru s viacerými materskými, školami všetkých stupňov, hudobnou a umeleckou školou, lekármi, lekáreňami a bohatou ponukou záujmových krúžkov. Zároveň mesto ako regionálny rastový stred využíva silný pracovný trh, najmä v oblastiach automobilového priemyslu, logistiky a remesiel. Kto chce bývať v okolí Berlína, bez toho aby musel obetovať mestskú infraštruktúru, nájde túto lokalitu ideálnou.
Dom je v udržiavanom stave a od jeho výstavby bol v niekoľkých oblastiach modernizovaný.
V spálňach boli inštalované klimatizačné jednotky, ktoré zabezpečujú príjemné teploty aj počas horúcich letných dní. Podlahy boli čiastočne vymenené – v obytných priestoroch dominuje moderný laminát, v kuchyni, kúpeľniach a chodbách kvalitná dlažba.
Okná sú všade dvojsklové s plastovými rámami. Vonkajšie rolety, čiastočne ovládané elektricky, poskytujú ochranu pred slnkom a zrakom.
Otváracie drevené schodisko zo svetlého prírodného dreva spája všetky tri poschodia a dodáva domu teplý, príjemný charakter.
V prízemí sa nachádza kúpeľňa s bezbariérovou sprchou, na prvom poschodí kúpeľňa s vaňou – praktické riešenie pre rodinný každodenný život. V podkroví je umiestnená dodatočná toaleta.
Zabudovaná kuchyňa s drevenými frontami, rúrou, keramickou doskou, drezom a dostatočným úložným priestorom je zahrnutá v kúpnej cene.
Exteriér bol upravený: Drevená terasa so vstavaným bazénom tvorí srdce záhrady.
Garáž je vybavená elektrickými segmentovými dverami, zatiaľ čo prístrešok na auto poskytuje ďalšie parkovacie miesto.
Kúrenie zabezpečuje zemný plyn. Energetický preukaz uvádza konečnú energetickú spotrebu 136,32 kWh/(m²·a) a energetickú triedu E.
Parametre nehnuteľnosti
| Vek | Nad 50 rokov |
|---|---|
| Stav | Dobrý |
| Číslo inzerátu | 1007361 |
| Úžitková plocha | 137 m² |
| Celkové poschodia | 3 |
| Dostupné od | 31. 3. 2026 |
|---|---|
| Dispozícia | 5+1 |
| PENB | E - Nehospodárne |
| Plocha pozemku | 156 m² |
| Cena za jednotku | 3 066 € / m2 |
Čo táto nehnuteľnosť ponúka?
| Garáž | |
| MHD 1 minúta pešo |
| Parkovanie | |
| Terasa |
V okolí nehnuteľnosti nájdete
Stále hľadáte to pravé?
Nastavte si strážneho psa. Ponuky vybrané na mieru dostanete súhrnne 1× denne e-mailom. S Premium profilom máte po ruke rovno 5 strážcov a keď sa niečo objaví, informujú vás obratom.

















