
Prenájom kancelárie • 75 m² bez realitkyHöchster Straße 18, , Hesensko
Nasleduje preklad textu do slovenčiny:
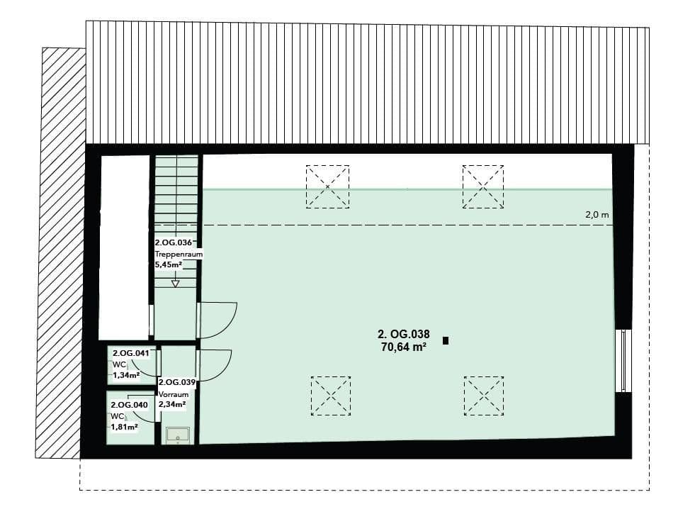
Na prenájom je k dispozícii svetlý a všestranne využiteľný obchodný priestor na podkroví udržiavaného objektu v centrálnom umiestnení Groß-Umstadtu.
Jednotka ponúka približne 75 m² otvoreného priestoru, ktorý je ideálny pre rôzne podnikateľské využitia, napríklad ako kancelária, priestory pre koučing alebo poradenstvo, ordinácia, štúdio či vyučovacie miestnosti.
Vďaka viacerým strešným oknám a veľkému oknu od podlahy po strop vzniká veľmi svetlá a príjemná pracovná atmosféra. Otvorená dispozícia umožňuje flexibilné využitie priestoru.
Existujúca konštrukcia a okná navyše poskytujú dobré predpoklady pre intenzívnejšie využitie, napríklad pre školenia alebo hudobné využitie.
Osobitnou výhodou je úložný priestor v šikmých častiach podkrovia, ktorý je ideálny na použitie ako skladovací priestor, archív alebo miesto na uskladnenie vecí.
Vybavenie
• približne 75 m² obchodného priestoru
• veľký otvorený priestor
• 4 strešné okná
• veľké okno od podlahy po strop
• veľmi svetlé priestory
• praktický úložný priestor v šikmých častiach podkrovia
• 2 oddelené WC
• vlastné parkovacie miesta pri budove
• rôzne možnosti využitia
Priestor sa nachádza na podkroví (2. poschodie) budovy.
Nájomné podmienky
• Základný nájom: 750 € mesačne
• Provízne náklady: cca 180 €
Priestor bude k dispozícii od 01.06.2026.
Ďalšie informácie
Obchodný priestor je ideálny pre rôzne využitia, napríklad:
• kancelária
• koučing / poradenstvo
• ordinácia / terapia
• výučba / školenia
• hudobné alebo kreatívne využitie
• ateliér / štúdio
Obhliadky sú možné po dohode.
Nehnuteľnosť sa nachádza v centrálnom umiestnení Groß-Umstadtu s dobrou infraštruktúrou. Nákupné možnosti, gastronómia a ďalšie služby sú v bezprostrednej blízkosti.
Lokalita je dobre dostupná ako pre zákazníkov, tak aj pre zamestnancov.
Parametre nehnuteľnosti
| Vek | Nad 50 rokov |
|---|---|
| Stav | Dobrý |
| Číslo inzerátu | 1007282 |
| Cena za jednotku | 10 € / m2 |
| Dostupné od | 1. 6. 2026 |
|---|---|
| Poschodie | 2. poschodie z 2 |
| Plocha kancelárie | 75 m² |
Čo táto nehnuteľnosť ponúka?
| MHD 1 minúta pešo |
V okolí nehnuteľnosti nájdete
Stále hľadáte to pravé?
Nastavte si strážneho psa. Ponuky vybrané na mieru dostanete súhrnne 1× denne e-mailom. S Premium profilom máte po ruke rovno 5 strážcov a keď sa niečo objaví, informujú vás obratom.






