Predaj pozemku • 1000 m² bez realitky, Dolné Sasko
, Dolné SaskoMHD 8minút pešo- Priamy kontakt: Dieter Büge 01728118000
- Pre súkromných kupujúcich bez provízie! Pre obchodných kupujúcich, ktorí napr. chcú postaviť viacrodinný dom (prvých záujemcov o prenájom je k dispozícii) 3 % plus 19 % DPH. Tvoja stavebná parcela v exkluzívnej novej štvrti v jedinečnej 1a-lokalite pri jazere!
- Tieto atraktívne parcely (napr. č. domu 21) môžu byť vrátane mestskej vily ako dom na dokončenie – pozri https://www.allkauf-ausbauhaus.de/de/haeuser/hausserie/city-villa/city-villa-4 – zakúpené za celkovú cenu od 595 000 EUR. Inkluzívne služby pre túto mestskú vilu (kúpna cena od 355 999 € ako dom na dokončenie) s 250 m² zahŕňajú: architektonické služby, stavebno-bezpečnostný balík, balík pre vykurovaciu a elektrickú inštaláciu, trojsklo vrátane hliníkových rolovacích strán, vzduch-voda tepelné čerpadlo, schody z masívneho dreva, podlahové krytiny a tapety, meranie vzduchotesnosti, výšku miestnosti s prirodzeným osvetlením 2,75 m, izolačný a opláštený balík, domovú techniku vrátane potrubia, kontrolovaný systém vetrania s rekuperáciou tepla, sanitárne zariadenia, vnútorné dvere, obložky a dlaždice, zásuvky!
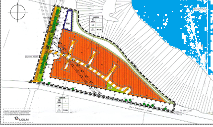
Iba niekoľko parciel pre rodinné, dvojdomové a viacrodinné domy je k dispozícii. Pravdepodobne najexkluzívnejšia novostavba v Hemmoor s výhľadom na jazero je vzdialená len niekoľko minút autom či bicyklom od centra mesta Hemmoor (okres Cuxhaven).
Zaisti si ešte dnes svoju favoritu, lebo už nebude vyhlásená či schválená žiadna nová stavebná štvrť s výhľadom na jazero! Počet parciel je obmedzený na 18.
9 voľných parciel pre súkromnú výstavbu rodinného domu (pozri WA 1): 839 až 1 990 m². Samostatné a dvojdomy, jednopodlažné (+ prístavkové poschodie) so šikmou stenou do výšky 8,50 m.
Parcely pre jedno- a viacrodinné domy (WA2, WA3) od 1 000 m². Výška šikmej steny 10 m (WA 2) a 11,50 m (WA 3) so 2 resp. 3 plnými podlažiami. Pomer zastavanosti (GFZ): 0,4.
Už čoskoro zaži privilegium a kúzlo dychberúceho panoramatického výhľadu na krištáľovo čisté jazero Kreidesee, ktorý si môžeš vychutnať ako náročný majiteľ luxusnej nehnuteľnosti alebo ako nájomník exkluzívneho bytu v najlepšej lokalite!
Postav si podľa svojich predstáv na priestrannej parcele o rozlohe 810 – 1 990 m² svoj dom snov v štýle Bauhaus, mestskú vilu, dvojdom alebo ako developér či investor vybuduj viacbytový dom na parcele od 1 000 m²!
Stavebné pozemky v prvej línii pri jazere môžu byť zastavané s jednopodlažnými, dvojpodlažnými aj dvojdomami s 1 plným podlažím + 1 prístavkovým poschodím s výškou až 8,50 m, a parcely pre jedno- a viacrodinné domy v druhej línii môžu byť zastavané 2 až 3 podlažiami do výšky 10 resp. 11,50 m.
Ak hľadáš ako súkromný alebo obchodný kupujúci parcelu v centrálnej a pokojnej 1a-lokalite pri jazere, mal by si si včas dohodnúť termín prehliadky! K dispozícii je len niekoľko parciel! Upozornenie: V tejto oblasti pri jazere už nebudú schvaľované ďalšie stavebné parcely.
Kontaktperson pre nájomcov, súkromných i obchodných kupujúcich je Dieter Büge. Telefónna dostupnosť denne (aj v sobotu a nedeľu) od 9.30 do 20.00 hod.!
Telefón: 01728118000 alebo info@win-marketing.de
Internet: www.wain-marketing.de
Výhradný predaj / kontakt: Dieter Büge – realitný maklér a posudkový znalec
WIN-MARKETING INH. DIETER BÜGE
EXKLUZÍVNE PARCELOVÉ A NEHNUTEĽNOSTNÉ MARKETING OD 1992!
Tešíme sa, že vás môžeme sprevádzať už od začiatku pri hľadaní stavebnej parcely, kúpe domu či bytu, alebo pri nájme bytu, a pomôcť vám tak realizovať váš zámer.
Jazero Kreidesee sa nachádza v Dolnom Sasku, v okrese Cuxhaven. Jazero leží v západnej časti mesta Hemmoor-Warstade. Objavte Hemmoor – idylickú oázu na západnom brehu rieky Oste v malebnom okrese Cuxhaven, Dolné Sasko! Toto pôvabné mestečko, obklopené nedotknutou prírodou, vám ponúka nielen vysokú kvalitu života, ale aj ideálnu polohu pre váš nový domov.
Len kameň hod od obľúbeného jazera Kreidesee sa na vás teší parcela s rozlohou cca 1 000 m² a jedinečným panoramatickým výhľadom na jazero, ideálna pre milovníkov prírody a nadšencov voľného času. Jazero Kreidesee nie je len obľúbeným potápačským kúpaliskom, ale aj miestom oddychu a relaxácie – tu si môžete naozaj oddýchnuť a vychutnať krásu prírody.
S približne 8 700 obyvateľmi ponúka Hemmoor srdečnú komunitu a príjemné životné prostredie. Mesto leží strategicky výhodne medzi Stade a okresným mestom Cuxhaven, a preto je ideálnym východiskovým bodom pre výlety v okolí.
Centrum Hemmoor, vzdialené len približne 3000 m, ti ponúka množstvo nákupných možností. V bezprostrednej blízkosti nájdeš lekárov, autobusové zastávky, materskú školu aj všetky druhy škôl. Všetko, čo potrebuješ pre každodenný život, je pohodlne a rýchlo dostupné.
Dopravné spojenie s cestou B73 vám umožňuje rýchly prístup do miest Cuxhaven (cca 45 km), Stade (cca 30 km), Bremerhaven (cca 55 km) a Hamburgu (cca 83 km). Železničná stanica v Hemmoore je dostupná len za 15 minút autobusom alebo na bicykli a zabezpečuje vynikajúce spojenie s verejnou dopravou.
Využite príležitosť stať sa súčasťou tohto pôvabného malomesta a splňte si sen o vlastnom bývaní v Hemmoore – mieste, ktoré spája kvalitu života, prírodu a komunitu!
Informácie podľa § 5 TMG
WIN-MARKETING Inh. Dieter Büge
Obchodná jednotka DBI – DIETER BÜGE NEHNUTEĽNOSTI
Povolenie podľa § 34c GewO.
Adresa
Süderende 12
D - 21782 Bülkau
Kontakt D/A/CH
info(at)win-marketing.de
https://www.win-marketing.de
Telefón: 0172/8118000
DIČ pre DPH podľa §27a zákona o DPH: DE204939419.
Riešenie sporov
Európska komisia poskytuje platformu na online riešenie sporov (OS): https://ec.europa.eu/consumers/odr.
Našu e-mailovú adresu nájdete vyššie v impressu.
Nie sme pripravení ani povinní zúčastňovať sa riešenia sporov pred spotrebiteľskou arbitrážnou komisiou.
Zodpovednosť za obsah
Ako poskytovatelia služieb sme podľa § 7 ods.1 TMG zodpovední za vlastný obsah na týchto stránkach podľa všeobecných právnych predpisov. Podľa §§ 8 až 10 TMG však nie sme povinní sledovať prenesené alebo uložené cudzie informácie ani zisťovať okolnosti, ktoré by naznačovali nezákonnú činnosť.
Povinnosti odstránenia alebo blokovania používania informácií podľa všeobecných zákonov týmto nedotknuté. Zodpovednosť v tejto súvislosti je však možná až od momentu, keď bude známe konkrétne porušenie zákona. Akonáhle sa o takýchto právnych porušeniach dozvieme, tieto obsahy okamžite odstránime.
Zodpovednosť za odkazy
Naša ponuka obsahuje odkazy na externé webové stránky tretích strán, na ktorých obsah nemáme vplyv. Preto za tento cudzí obsah nezodpovedáme. Za obsah prepojených stránok je vždy zodpovedný príslušný poskytovateľ alebo prevádzkovateľ. Prepojené stránky boli pri ich zverejnení preverené na možné právne porušenia – nezákonné obsahy neboli pri odkázaní zjavné.
Trvalá kontrola obsahu prepojených stránok však nie je bez konkrétnych podnetov porušenia zákona rozumná. Akonáhle zistíme právne porušenia, takéto odkazy okamžite odstránime.
Autorské práva
Obsahy a diela vytvorené prevádzkovateľmi týchto stránok podliehajú nemeckému autorskému zákonu. Rozmnožovanie, úprava, distribúcia a akékoľvek využitie mimo medze autorských práv vyžaduje písomný súhlas príslušného autora či tvorcu. Sťahovanie a kopírovanie tejto stránky je povolené iba pre súkromné, nekomerčné účely.
Pokiaľ obsah na tejto stránke nebol vytvorený prevádzkovateľom, budú rešpektované autorské práva tretích strán. Obsahy tretích strán budú výslovne označené ako také. Ak napriek tomu zaznamenáte porušenie autorských práv, prosíme vás o príslušné upozornenie. Po zistení takýchto právnych porušení tieto obsahy okamžite odstránime.
Parametre nehnuteľnosti
| Dostupné od | 5. 4. 2026 |
|---|---|
| Plocha pozemku | 1 000 m² |
| Číslo inzerátu | 1007078 |
|---|---|
| Cena za jednotku | 170 € / m2 |
Čo táto nehnuteľnosť ponúka?
| MHD 8 minút pešo |
V okolí nehnuteľnosti nájdete
Stále hľadáte to pravé?
Nastavte si strážneho psa. Ponuky vybrané na mieru dostanete súhrnne 1× denne e-mailom. S Premium profilom máte po ruke rovno 5 strážcov a keď sa niečo objaví, informujú vás obratom.
























