Predaj bytu 3+1 • 103 m² bez realitkyObinger Str. 1A Eggstätt Eggstätt Bayern 83125
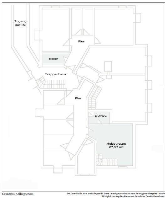
Táto pôvabná bytosť sa nachádza v mimoriadne udržiavanom viacrodinnom dome na tichej lokalite. Exkluzívny dojem pokračuje aj vo vnútri 8-by vacného domu s podzemnou garážou. Byt sa v prízemí delí na dve spálne, kúpeľňu, hosťovskú toaletu, predsieň a chodbu, ako aj na oddelenú kuchyňu a priestranný obývací a jedálenský priestor. Na juh a západ obklopujú priestory vlastná záhrada a terasa. Biele okná s prerámovaním, biele vnútorné dvere a vlastná biela lakovaná drevená schodisko do suterénu podčiarkujú priateľskú, svetlom zalitú atmosféru bytu. Upravená plocha v suteréne o približne 28 m² je zahrnutá s 14 m² v údajoch o obytnom priestore. Tento priestor má svetlú výšku 2,36 m a okno s nakloneným rámom s rozmerom v múrovine približne 1,34 m². Z obývacej izby vedú veľké sklenené dvere do záhrady upravenej v štýle parku. Vonkajšie parkovacie miesto a dve miesta v podzemnej garáži (s hodnotou 25 000 EUR za každé) sú už zahrnuté v kúpnej cene. Byt sa predáva kompletne ako balík vrátane parkovacích miest.
Len päť kilometrov severozápadne od jazera Chiemsee leží, medzi miernymi kopčekmi a množstvom jazier, mesto Eggstätt. Eggstätter-Hemhofer-Seenplatte je celou pýchou Eggstättu, pretože patrí medzi najstaršie chránené prírodné územia v Bavorsku (1939). Už pred 100 rokmi si prví "letní osviežení" uvedomili pôvab tohto miesta.
Kúzelné turistické a cyklistické trasy vedú cez očarujúcu a jedinečnú krajinu jazier. Mnoho kultúrnych a zábavných podujatí v Eggstätte a jeho okolí vás pozýva: V Dome hostí alebo na iných podujatiach sa počas roka koná pestrý program – od Hoagascht až po večer domácej kultúry a tradícií, od komorových po stánkové koncerty, od vidieckeho divadla až po lesný festival. Pre aktívne trávenie voľného času ponúkajú jazero Chiemsee a Eggstätter-Seenplatte optimálne možnosti na kúpanie a plachtenie. Pešia turistika, horolezectvo, bicyklovanie a všetky varianty zimných športov sú dostupné v blízkych Chiemgauer Alpách. Aj pre milovníkov golfu a jazdy na koni je v blízkosti niečo ponúknuté. Mesto Bad Endorf (8 km), Prien am Chiemsee (10 km), Rosenheim a Traunstein (každý 23 km) sa nachádzajú v blízkom okolí. V Bad Endorfe nájdete železničné spojenie smerom do Mníchova aj Salzburgu. Okrem toho mesto ponúka nákupné možnosti, materské školy a základnú školu. Všetky stredné školy sú dostupné v Prien a Chiemsee, Traunsteine a Rosenheime. Letisko v Salzburgu je dosiahnuteľné približne za 40 minút, letisko v Mníchove za približne 90 minút. Eggstätt je očarujúce mesto s bavorským šarmom a skutočnou pohostinnosťou.
V posledných rokoch boli v byte vykonané nasledujúce rekonštrukčné práce: dubový parketový podlahový systém v obývacej izbe a chodbe, nová kvalitná vstavaná kuchyňa (zahrnutá v kúpnej cene).
Parametre nehnuteľnosti
| Vek | Nad 50 rokov |
|---|---|
| Dispozícia | 3+1 |
| Úžitková plocha | 103 m² |
| Stav | Dobrý |
|---|---|
| Číslo inzerátu | 1007029 |
| Cena za jednotku | 5 388 € / m2 |
Čo táto nehnuteľnosť ponúka?
| Pivnica | |
| Parkovanie | |
| Terasa |
| Garáž | |
| MHD 2 minúty pešo |
V okolí nehnuteľnosti nájdete
Stále hľadáte to pravé?
Nastavte si strážneho psa. Ponuky vybrané na mieru dostanete súhrnne 1× denne e-mailom. S Premium profilom máte po ruke rovno 5 strážcov a keď sa niečo objaví, informujú vás obratom.












