
Predaj bytu 2+1 • 75 m² bez realitkyBremen Mitte Bremen 28203
Byt – 2026 úplne prekoncipovaný
Približne 75 m² boli komplexne zrekonštruované:
+ nová elektroinštalácia
+ nová, moderná séria vypínačov
+ nové podlahy
+ nové steny
+ nové kúpeľňa
+ otvorený, mimoriadne svetlý pôdorys
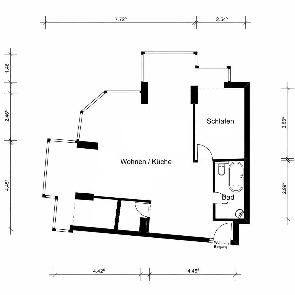
+ malá práčovňa v byte
+ malý home office kútik za kuchyňou
+ samostatná suterénna miestnosť / sklad
Výsledok: Nasťahujte sa, prineste si nábytok a užívajte si pocit domova.
Žiadne oneskorené investície. Žiadny stres z rekonštrukcie.
Byt sa nachádza v 2. poschodí udržiavaného domu z roku 1982 a vyniká otvoreným usporiadaním s množstvom slnečného svetla – ráno aj večer.
Môj tip pre individuálne zariadenie kuchyne: moderná kuchyňa s varnou alebo pracovnou ostrovčekom – ideálna pre spoločenské večery.
(Príkladové obrázky boli vizualizované s podporou umelej inteligencie.)
Malý home office kútik za kuchyňou vytvára premyslene oddelený pracovný priestor, bez úkorom obytného priestoru.
Dom a spoločenstvo vlastníkov:
+ Veľmi udržiavaný viacrodinný dom
+ Rok výstavby: 1982
+ Skvelá, funkčná spoločenstvo vlastníkov
+ Ústredné kúrenie z roku 2019
+ Ekonomicky stabilné
+ Žiadne väčšie opatrenia nie sú plánované
Skutočný unikát:
Spoločenstvo vlastníkov disponuje obrovskou záhradnou plochou na spoločné využitie – priamo v štvrti Bremer Viertel – takmer jedinečné.
Priestor na:
+ hry pre deti
+ grilovanie v lete
+ oddych po pracovnom dni
+ stretnutia s priateľmi
+ zelený úkryt v mestskom prostredí
Mesačné náklady (vrátane kúrenia podľa ekonomického plánu na rok 2025):
Celkom: 327,00 € mesačne
Z toho:
približne 300,00 € prenosných nákladov
približne 27,00 € nenávratných nákladov
Kúrenie je už zahrnuté.
Taktiež ideálne na prenájom – výborná lokalita s výraznou nájomnou dynamikou
Byt je vynikajúcou investíciou v absolútnej "top lokalite" štvrte.
Novo zrekonštruované 2-izbové byty, ako tento, dosahujú aktuálne v oblasti Ostertor / Steintor veľmi dobré ceny za meter štvorcový.
Finančný príklad:
Kúpna cena: 329 000 €
100 % financovanie
3,8 % úroková sadzba
1,0 % splátka istiny
329 000 € × 4,8 % / 12 = približne 1 316 € mesačná splátka
Lokalita – nemôže byť viac mestská
Ráno: zostúpte a nakúpte čerstvé produkty v bio supermarkete.
Naprávproti, v Harbour Café si dajte cappuccino.
Večer ešte rýchlo v kiosku v dome zakúpte obľúbený časopis – všetko máte doslova pred dverami.
Tu bývate v Ostertor/Steintor – absolútna najlepšia lokalita.
Reštaurácie, bary, kultúra, divadlo, električka – všetko v pešej vzdialenosti.
A napriek tomu: v samotnom dome panuje príjemný pokoj.
Kľúčové fakty na prvý pohľad:
75 m² obytná plocha
2 izby
2. poschodie
Rok výstavby: 1982
komplexne zrekonštruované v roku 2026
kvalitné Schüco okná z roku 2009
malý home office kútik
práčovňa priamo v byte
suterénna miestnosť
veľká záhradná plocha (spoločný pozemok)
ústredné kúrenie z roku 2019
mesačné náklady vrátane kúrenia: 327 €
žiadne oneskorené investície
okamžite k nastěhovaniu
Bez provízie od súkromného predajcu.
Žiadny poplatok za sprostredkovanie.
Záujem maklérov nie je vítaný.
Parametre nehnuteľnosti
| Vek | Nad 50 rokov |
|---|---|
| Stav | Po rekonštrukcii |
| Poschodie | 2. poschodie |
| PENB | E - Nehospodárne |
| Cena za jednotku | 3 987 € / m2 |
| Dostupné od | 30. 3. 2026 |
|---|---|
| Dispozícia | 2+1 |
| Číslo inzerátu | 1007024 |
| Úžitková plocha | 75 m² |
Čo táto nehnuteľnosť ponúka?
| Pivnica |
| MHD 2 minúty pešo |
V okolí nehnuteľnosti nájdete
Stále hľadáte to pravé?
Nastavte si strážneho psa. Ponuky vybrané na mieru dostanete súhrnne 1× denne e-mailom. S Premium profilom máte po ruke rovno 5 strážcov a keď sa niečo objaví, informujú vás obratom.






























