
Predaj bytu 4+1 • 98 m² bez realitkyAllerseeweg 14, , Bavorsko
Ušetríte 11.780 eur na maklérskych províziách!
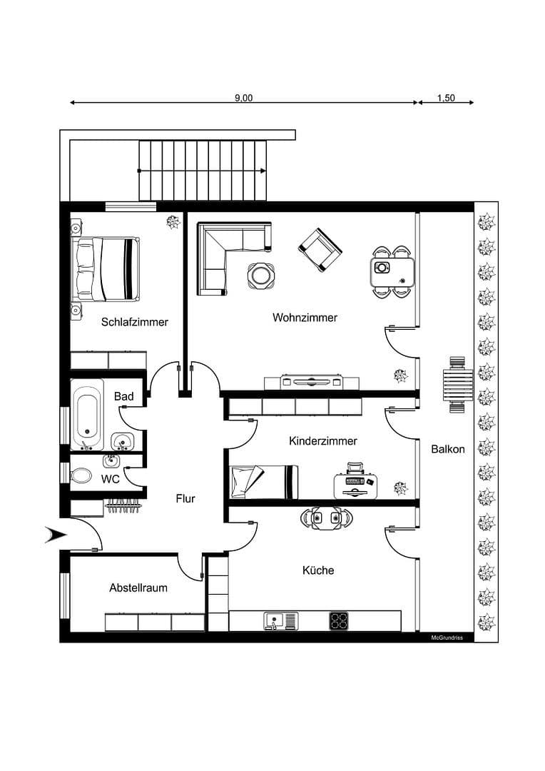
V žiadanej lokalite Höchberg Hexenbruch pri Würzburgu sa nachádza tento priestranne rozdelený, bezbariérový byt v prízemí. Jednotka bola pôvodne plánovaná ako 4-izbový byt, no nakoniec realizovaná ako 3-izbová varianta. Tým vznikol mimoriadne otvorený, svetlom naplnený pocit priestoru s nadpriemernými obytnými časťami.
V prípade potreby je možné byt opäť využívať ako 4-izbový: V úložnom priestore už sú k dispozícii pripojenia na kuchyňu, pretože tam sa pôvodne nachádzala kuchyňa. Súčasná kuchyňa bola pôvodne plánovaná ako spálňa, a preto ju možno opäť využiť aj ako spálňu. Týmto spôsobom ponúka byt flexibilné využitie – buď ako 3- alebo 4-izbový, v závislosti od životnej situácie.
Rozloženie priestoru a výnimočnosti:
Už pri vstupe do bytu zaujme priestranný vstupný priestor s veľkorysým úložným priestorom a množstvom miesta na uskladnenie – čo je u podobných nehnuteľností zriedkavosťou.
Obývacia izba, kuchyňa aj detská izba majú každý jednu celú stenu s oknami od podlahy až po strop. Tie nielen zabezpečujú vynikajúce osvetlenie, ale umožňujú aj priamy prístup na veľký, prístrešený balkón.
Balkón je umiestnený na boku domu, je príjemne tichý a ponúka výhľad do zelene – ideálny na relaxáciu na čerstvom vzduchu s vysokou mierou súkromia.
Sanitárne vybavenie:
• Samostatné WC s denným svetlom
• Kúpeľňa s vaňou a denným svetlom
Obe miestnosti profitujú z prirodzeného osvetlenia a vetrania.
Stav a vybavenie:
Byt bol zrekonštruovaný a prezentuje sa vo veľmi upravenom stave. Čiastočný nábytok je zahrnutý v kúpnej cene, čo je obzvlášť zaujímavé pre investorov alebo pre tých, ktorí si želajú rýchle nasťahovanie.
Lokalita v prízemí umožňuje úplne bezbariérový prístup – pohodlné pre všetky vekové kategórie.
Parkovacie miesta (voliteľne):
• Vonkajšie parkovacie miesto: 10.000 €
• Miesto v podzemnej garáži: 15.000 €
Obe parkovacie miesta je možné zakúpiť aj ako voliteľné príplatkové vybavenie.
Allerseeweg 14 Höchberg. Byt sa nachádza v žiadanej lokalite Höchberg–Hexenbruch pri Würzburgu – jednej z najžiadanejších a najkvalitnejších lokalít v okolí Würzburgu. Okolie sa vyznačuje udržiavanou výstavbou, príjemným susedstvom a množstvom zelene. Obchody, materská škola, školy a ďalšie zariadenia dennej potreby sú ľahko dostupné. Aj spojenie s Würzburgu a diaľnicou je veľmi dobré. Kombinácia pokojného bývania, dobrej infraštruktúry a prírodného prostredia robí z tejto lokality mimoriadne atraktívne miesto.
Parametre nehnuteľnosti
| Vek | Nad 50 rokov |
|---|---|
| Stav | Po rekonštrukcii |
| Číslo inzerátu | 1006888 |
| Úžitková plocha | 98 m² |
| Dostupné od | 31. 3. 2026 |
|---|---|
| Dispozícia | 4+1 |
| PENB | E - Nehospodárne |
| Cena za jednotku | 3 366 € / m2 |
Čo táto nehnuteľnosť ponúka?
| MHD 1 minúta pešo |
V okolí nehnuteľnosti nájdete
Stále hľadáte to pravé?
Nastavte si strážneho psa. Ponuky vybrané na mieru dostanete súhrnne 1× denne e-mailom. S Premium profilom máte po ruke rovno 5 strážcov a keď sa niečo objaví, informujú vás obratom.




















