Predaj bytu 2+kk • 64 m² bez realitkyDlouhá, Tišnov - Tišnov, Jihomoravský kraj
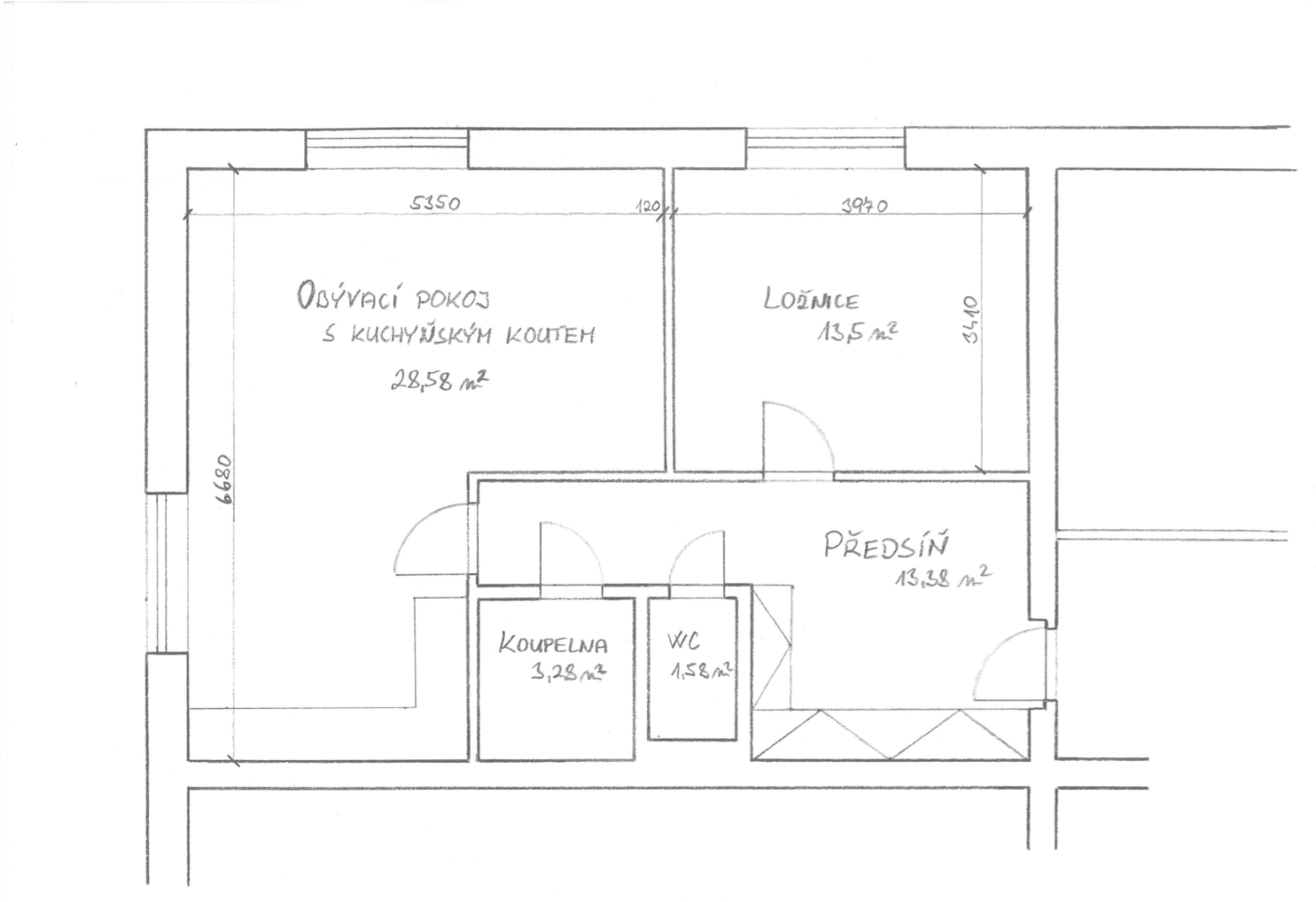
Nabízím k převodu družstevní podíl k bytu o dispozici 2+kk o celkové výměře 64,08 m² včetně zděného sklepa, situovanému v klidné lokalitě na ulici Dlouhá v Tišnově.
Byt se nachází v 1. nadzemním podlaží zděného bytového domu z keramických tvárnic a je orientován na jihovýchod a jihozápad, což zajišťuje dostatek denního světla.
Byt je přibližně 21 let starý, ve velmi zachovalém původním stavu. V uplynulé době došlo k částečné modernizaci – byly instalovány nové sanitární prvky a některé části vybavení, které zůstávají součástí bytu. Okna jsou plastová s dvojskly. Anuita je plně splacena, převod do osobního vlastnictví zatím není možný.
Lokalita a občanská vybavenost:
V okolí domu se nachází dostatek zeleně, park, dětské hřiště i možnosti pro volnočasové aktivity v přírodě. Parkování je bezproblémové přímo před domem. Město Tišnov nabízí kompletní občanskou vybavenost – školy, školky (v docházkové vzdálenosti do 10 minut), obchody, restaurace, kino i výborné dopravní spojení vlakem a autobusem do Brna i okolních obcí.
Cena zahrnuje veškeré poplatky spojené s převodem, včetně poplatku družstvu za zápis nového člena. Byt bude k dispozici dle dohody.
V případě zájmu o více informací nebo domluvení osobní prohlídky mě prosím kontaktujte telefonicky.
Upozornění: Tato nabídka není návrhem na uzavření smlouvy ve smyslu § 1731 zákona č. 89/2012 Sb. a nezavazuje k uzavření převodu práv. Inzerát je určen pouze přímým zájemcům, realitní kanceláře prosím nekontaktovat.
I am offering for conversion the cooperative share in an apartment with a 2+kk layout and a total area of 64.08 m², including a brick cellar, located in a quiet area on Dlouhá Street in Tišnov.
The apartment is situated on the first floor of a masonry apartment building made of ceramic blocks and is oriented to the southeast and southwest, ensuring plenty of natural light.
The apartment is approximately 21 years old and in very well-preserved original condition. Recently, a partial modernization has taken place – new sanitary fixtures have been installed and some parts of the equipment, which remain part of the apartment, have been updated. The windows are plastic with double glazing. The annuity is fully paid off, but conversion to personal ownership is not currently possible.
Location and Local Amenities:
In the vicinity of the building, there is plenty of greenery, a park, a playground, and opportunities for leisure activities in nature. Parking is hassle-free right in front of the house. The town of Tišnov offers complete local amenities – schools, kindergartens (within a 10-minute walk), shops, restaurants, a cinema, as well as excellent transport connections by train and bus to Brno and the surrounding municipalities.
The price includes all fees related to the conversion, including the fee charged by the cooperative for registering a new member. The apartment will be available by arrangement.
If you would like more information or wish to schedule a personal viewing, please contact me by phone.
Disclaimer: This offer is not a proposal to conclude a contract as defined in § 1731 of Act No. 89/2012 Coll. and does not obligate either party to complete the transfer of rights. The advertisement is intended solely for direct buyers; real estate agencies, please do not contact me.
Parametre nehnuteľnosti
| Dostupné od | 28. 3. 2026 |
|---|---|
| Konštrukcia budovy | Tehla |
| Vybavené | Čiastočne |
| Číslo inzerátu | 1006577 |
| PENB | C - Hospodárne |
| Umiestnenie | Tichá lokalita |
| Úžitková plocha | 64 m² |
| Stav | Veľmi dobrý |
|---|---|
| Dispozícia | 2+kk |
| Poschodie | 1. poschodie z 3 |
| Vlastníctvo | Družstevné |
| Prevod do osobného vlastníctva | Nie |
| Anuita | 0 CZK |
| Cena za jednotku | 77 344 CZK / m2 |
Čo táto nehnuteľnosť ponúka?
| Bezbariérový prístup | |
| Parkovanie |
| Pivnica 6 m² |
V okolí nehnuteľnosti nájdete
Stále hľadáte to pravé?
Nastavte si strážneho psa. Ponuky vybrané na mieru dostanete súhrnne 1× denne e-mailom. S Premium profilom máte po ruke rovno 5 strážcov a keď sa niečo objaví, informujú vás obratom.













