
Predaj bytu 2+1 • 43 m² bez realitkyCoventrystraße 57 Frankfurt am Main Nied Hessen 65934
Coventrystraße 57 Frankfurt am Main Nied Hessen 65934MHD 3 minúty pešo • Výťah • ParkovanieNa predaj je čerstvo zrekonštruovaný 2-izbový byt v udržiavanom viacfamilijnom dome z roku 1971 vo Frankfurt-Nied.
Byt zaujme vďaka svojej kompaktnosti, dobre prenajímateľnej rozlohe približne 43 m², premyslenej dispozícii a stabilným príjmom z prenájmu. Vďaka už existujúcemu prenájmu je tento objekt ideálny pre kapitálových investorov, ktorí chcú okamžité príjmy.
K ponuke sa pridáva miesto pre auto v carport (extra za 10 000), čo navyše zvyšuje atraktivitu pre nájomcov.
Ekonomickosť / Výnos
Chladný nájom: 850 € / mesiac
Ročný chladný nájom: 10 200 €
Poplatok za dom: 351 € / mesiac
Prepočítateľná časť: 235 €
Neprepočítateľná časť: 116 €
Kúpne ceny:
Byt: 169 000 €
Carport: 10 000 €
Celková kúpna cena: 179 000 €
Hrubý výnos: cca 5,7 % – 6 %
Solídna investícia s stabilným cashflow a potenciálom rastu.
Základné údaje na prvý pohľad
• Rok výstavby: 1971
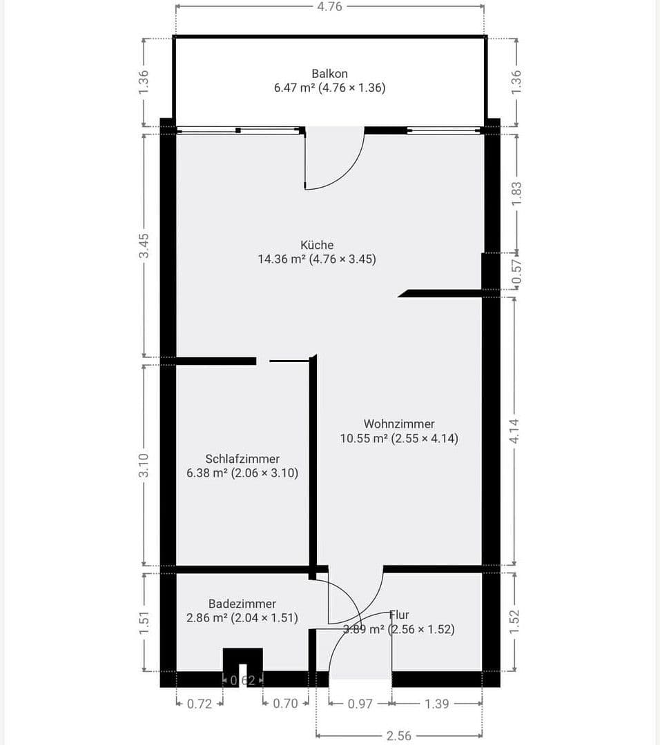
• Obytová plocha: cca 43 m²
• Izby: 2
• Stav: čerstvo zrekonštruovaný
• Prenajaté: Áno
• Parkovacie miesto: Carport (oddelene)
Byt sa nachádza v obľúbenej štvrti Frankfurt-Nied, žiadanej lokalite s veľmi dobrou infraštruktúrou.
• Obchody v bezprostrednej blízkosti
• Dobrá dostupnosť verejnej dopravy
• Rýchly prístup do centra Frankfurtu
• Blízkosť k priemyselným a obchodným zónam (vysoký dopyt po prenájme)
Obzvlášť atraktívny pre pendľajúcich a pracujúcich – zaručená stabilná prenajímateľnosť
• Svetlé a priateľské miestnosti
• Funkčná 2-izbová dispozícia
• Zmodernizované vybavenie po rekonštrukcii
• Kúpeľňa so súčasným vybavením
• Podlahy, ktoré sa ľahko udržiavajú
• K dispozícii je aj sklepové priestory
• Vstavaná kuchyňa s kompletne zariadeným nábytkom
• Parkovacie miesto v carport-e
Táto nehnuteľnosť je vynikajúca pre investorov, ktorí hľadajú solídnu a dlhodobú kapitálovú investíciu v ekonomicky silnom regióne.
Prehliadka je možná aj v krátkom čase. Radi Vám poskytneme ďalšie dokumenty.
Realitní makléri nie sú vítaní!
Podľa § 7 UWG je nevyžiadaný kontakt maklérov bez výslovného súhlasu príjemcu zakázaný!
Parametre nehnuteľnosti
| Vek | Nad 50 rokov |
|---|---|
| Stav | Po rekonštrukcii |
| Poschodie | 2. poschodie z 4 |
| PENB | E - Nehospodárne |
| Cena za jednotku | 3 930 € / m2 |
| Dostupné od | 30. 3. 2026 |
|---|---|
| Dispozícia | 2+1 |
| Číslo inzerátu | 1005855 |
| Úžitková plocha | 43 m² |
Čo táto nehnuteľnosť ponúka?
| Balkón | |
| Výťah | |
| MHD 3 minúty pešo |
| Pivnica | |
| Parkovanie |
V okolí nehnuteľnosti nájdete
Stále hľadáte to pravé?
Nastavte si strážneho psa. Ponuky vybrané na mieru dostanete súhrnne 1× denne e-mailom. S Premium profilom máte po ruke rovno 5 strážcov a keď sa niečo objaví, informujú vás obratom.







