
Predaj bytu 4+1 • 93 m² bez realitkyHamburg Stellingen Hamburg 22527
Diese gepflegte, oberste Etagenwohnung wird als solide, lukrative und wertbeständige Kapitalanlage provisionsfrei verkauft und ist nach langjähriger Eigennutzung seit 2019 zuverlässig vermietet. Das bestehende Mietverhältnis (Staffelmietvertrag) sorgt für planbare, steigende Mieteinnahmen.
Táto upravená bytosť na najvyššom poschodí sa predáva bez provízie ako solídna, lukratívna a hodnotovo stabilná kapitálová investícia a po dlhoročnom vlastnom užívaní je spoľahlivo prenajatá od roku 2019. Existujúci nájomný pomer (stupňovitá nájomná zmluva) zabezpečuje plánovateľné, rastúce príjmy z prenájmu.
Die Wohnung befindet sich in einer sehr gepflegten Wohnanlage mit guter Bausubstanz auf einem großen Grundstück. Sie hat einen Süd-Balkon mit breiter Markise.
Bytosť sa nachádza vo veľmi udržiavanom obytnom komplexe s dobrou stavebnou konštrukciou na veľkom pozemku. Disponuje južným balkónom so širokou markízou.
Der Fußboden in den Wohnräumen und im Flur ist einheitlich mit Multilayer Eiche Natur LHD neu ausgelegt und mit Sockelleisten HH-Profil umrandet.
Podlahy v obytných priestoroch a na chodbách boli jednotne zmodernizované s použitím nové inštalácie z multilayer dubového dreva v prirodzenej farbe LHD a orámované profily HH ako prahy.
Zur Wohnung gehört ein trockener Kellerraum mit 24 m2 Nutzfläche.
K bytu patrí suchá pivnica o využiteľnej ploche 24 m².
Die Wohnanlage ist überwiegend von Eigentümern bewohnt.
Obytný komplex je prevažne obývaný vlastníkmi.
Die Wandstärke des Mauerwerks beträgt 42 cm, dadurch kaum Wärmeverluste durch die Außenhülle. Energetisch ist die Wohnanlage in einem guten Zustand. Ein energetischer Sanierungsbedarf besteht nicht ( --> Energieklasse D).
Hrúbka muriva je 42 cm, čo takmer eliminuje tepelné straty cez obvodové plášte budovy. Energeticky je obytný komplex v dobrom stave. Energetická rekonštrukcia nie je potrebná ( --> Energetická trieda D).
Es gibt keinen Reparaturstau; kostenintensive Maßnahmen und evtl. Sonderumlagen stehen nicht bevor. Notwendige Maßnahmen wurden jeweils durchgeführt.
Neexistujú žiadne nahromadené opravy; nákladné zásahy a prípadné mimoriadne príspevky nie sú v dohľade. Všetky potrebné zákroky boli realizované.
Die Rücklagen betragen 230.000.- EUR (Anteil Whg. = 5.635,- EUR) und sind ein gutes Polster für Instandhaltungen.
Rezervný fond dosahuje 230 000 EUR (podiel bytu = 5 635 EUR) a predstavuje solídny vankúš pre údržbu.
Informationen für Kapitalanleger:
Informácie pre kapitálových investorov:
Kaufpreis: 429.000.- € (4.612.- EUR/m2)
Kúpna cena: 429 000 € (4 612 € / m²)
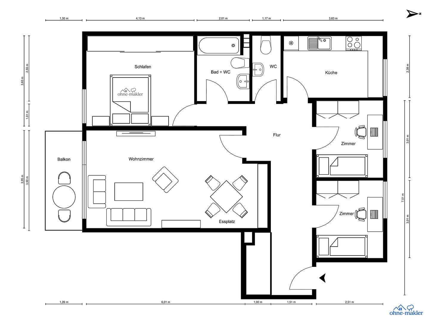
Baujahr 1972 Wohnfläche: 93 m2
Rok výstavby: 1972 Obytná plocha: 93 m²
Jahresnettokaltmiete: 15.720.- EUR vermietet seit 06/2019
Ročný čistý nájom: 15 720 € – prenajaté od 06/2019
Bruttorendite 3,7 %
Hrubá výnosnosť: 3,7 %
Hausgeld gesamt: 296.- EUR (davon umlagefähig: 202,- EUR)
Spolkové poplatky celkom: 296 € (z toho prenosné: 202 €)
Mietsteigerungspotenzial: 420.- EUR p.a. (Staffelmietvertrag)
Potenciál zvyšovania nájmu: 420 € ročne (stupňovitá nájomná zmluva)
Erlösanteil aus Garagen-/Stellplatzmiete: rd. 450.- EUR p.a.
Podiel príjmu z prenájmu garáží/parkovacích miest: približne 450 € ročne
Rücklagen der WEG : 230.0000,- EUR ; davon für Eigentümer rd.5.630.- EUR
Rezerva spoločenstva vlastníkov: 230 000 €; z toho podiel na vlastníka približne 5 630 €
Grundstücksgröße: 6.646 m2 ; davon Anteil der Wohnung: rd. 160 m2
Rozloha pozemku: 6 646 m²; z toho podiel bytu približne 160 m²
Durchgeführte Instandhaltungen und Verbesserungen:
Realizované opravy a zlepšenia:
1986 Fenster erneuert; 2001 Flachdach erneuert: 2004 neue Öl-Heizung
1986: Vymenené okná; 2001: Rekonštruované plochá strecha; 2004: Nové olejové kúrenie
2010 Fassade saniert (gereinigt, Klinker tw. ersetzt, Gebäudefugen erneuert, Wände tw. hydrophobiert)
2010: Sanovaná fasáda (vyčistená, čiastočne vymenené klinker obklady, obnovené spáry a miestami hydrofóbne ošetrené steny)
Vordächer an 6 Hauseingängen neu eingedeckt mit Edelstahl
Predkrovy pri 6 vstupech do domu boli novozakrytované z nehrdzavejúcej ocele
Balkonsanierung im Innenbereich; u.a. Balkonboden gefliest
Rekonštrukcia balkóna v interiéri; okrem iného zaplavená dlažbou balkónová podlaha
Grundstück mit Zaun eingefriedet, Gartentor erneuert
Pozemok bol ohradený plotom, záhradné brány boli vymenené
Mauerbrüstungen an Garageneinfahrt mit Edelstahlblechen abgedeckt
Oporné múry pri vstupe do garáže boli prekryté oceľovými plechmi
Mauern auf Pergola verkürzt, Umrandungen mit Edelstahlblechen abgedeckt
Mury nad pergolou boli skrátené, orámovanie prekryté oceľovými plechmi
Pumpen an Drainagen erneuert; Abflüsse an Kelleraußentreppen erneuert,
Čerpadlá v drenážach boli vymenené; odtoky pri vonkajších schodoch do pivnice boli obnovené
Türanlage eines Hauses erneuert; Haustürklingelanlage erneuert
Dverový systém jednej budovy bol vymenený; tiež bol obmenený domový zvonček
Müllcontainerboxen erneuert (7 Stck.) für Mülltrennungskonzept
Kryty na odpadkové kontajnery boli vymenené (7 ks.) pre systém triedenia odpadu
Fahrradständer erneuert mit Edelstahlbügeln (13 x)
Držiaky na bicykle boli vymenené s oceľovými konzolami (13x)
2022 Erneuerung aller Armaturen an Wasserleitungsrohren im Kellerbereich
2022: Vymenenie všetkých príslušenstiev na vodovodných potrubiach v pivničnej oblasti
2022 Erneuerung aller Ventile und hydraulischer Abgleich an den Heißwasserleitungen
2022: Vymenenie všetkých ventilov a vykonanie hydraulickej regulácie na rozvodoch teplej vody
2025 Malerarbeiten an Balkonen (Straßenseite)
2025: Maliarske práce na balkónoch (strana smerom k ulici)
2024 Dichtheitsprüfung aller Abflußleitungen im Kellerboden
2024: Tesnostná kontrola všetkých odtokových potrubí v pivničnej podlahe
2025 Sanierung defekter Schmutzwasserrohre; Dichtigkeitsnachweis bestätigt
2025: Rekonštrukcia poškodených potrubí pre špinavú vodu; preukázaná tesnosť
Die Wohnung wird ausschließlich als Kapitalanlage verkauft. Sie ist zuverlässig vermietet.
Bytosť sa predáva výlučne ako kapitálová investícia. Je spoľahlivo prenajatá.
Die Wohnung befindet sich in einer gehobenen Wohnanlage mit 6 versetzt gebauten, zusammenhängenden Häusern auf einem großen Grundstück. Die Wohnstraße ist verkehrsberuhigt.
Bytosť sa nachádza v luxusnej obytnom komplexe, ktorý zahŕňa 6 vzájomne spojených, posunutých domov na veľkom pozemku. Obytná ulica je v zóne obmedzenej premávky.
Das nahe Niendorfer Gehege und die Wiesen am Kollau-Wanderweg bieten Gelegenheit für Spaziergänge u.a. Der Tierpark Hagenbek ist in der Nähe. Verkehrsanbindung besteht über 2-Buslinien zur U-bahn Hagenbek. Der BAB-Anschluss zur A 7 in Stellingen liegt ganz in der Nähe. Die A 7 verläuft unter dem Stellinger Deckel.
V blízkosti sa nachádza Niendorfer prales a lúky pri turistickej ceste Kollau, ktoré ponúkajú príležitosti na prechádzky. Zvieraťník Hagenbek je taktiež v blízkosti. Dopravné spojenie zabezpečujú 2 autobusové linky smerom na metro Hagenbek. Prístup k diaľnici (BAB) A7 v Stellingen je veľmi blízko, pričom A7 prechádza pod Stellinger Deckel.
Zwei Einkaufszentren (Eidelstedt und Niendorf/Tibarg) liegen ganz nah.
Dva nákupné centrá (Eidelstedt a Niendorf/Tibarg) sa nachádzajú veľmi blízko.
Zum Gemeinschaftseigentum gehören zwei gut ausgestattete Waschküchen mit Miele-Geräten sowie 5 Trockenräume.
K spoločenstevnému majetku patria dve dobre vybavené práčovne s Miele spotrebičmi a 5 miestností určených na sušenie.
Hervorzuheben ist das 6.646 m2 große Grundstück. Die Wohnung liegt somit abseits der Straße in die Gartenanlage eingebettet.
Je potrebné zdôrazniť, že pozemok o rozlohe 6 646 m² zabezpečuje, že bytosť leží oddelene od ulice, začlenená do záhradného areálu.
Bei Interesse freuen wir uns über Ihre Kontaktaufnahme und stellen Ihnen gerne weitere Informationen zur Verfügung.
V prípade záujmu nás neváhajte kontaktovať – radi vám poskytneme ďalšie informácie.
Parametre nehnuteľnosti
| Vek | Nad 50 rokov |
|---|---|
| Poschodie | 2. poschodie z 2 |
| PENB | D - Menej hospodárne |
| Cena za jednotku | 4 613 € / m2 |
| Dispozícia | 4+1 |
|---|---|
| Číslo inzerátu | 1005539 |
| Úžitková plocha | 93 m² |
Čo táto nehnuteľnosť ponúka?
| Balkón | |
| Garáž | |
| MHD 3 minúty pešo |
| Pivnica | |
| Parkovanie |
V okolí nehnuteľnosti nájdete
Stále hľadáte to pravé?
Nastavte si strážneho psa. Ponuky vybrané na mieru dostanete súhrnne 1× denne e-mailom. S Premium profilom máte po ruke rovno 5 strážcov a keď sa niečo objaví, informujú vás obratom.
















