Predaj domu 6+1 • 220 m² bez realitky, Severné Porýnie - Westfálsko
FREIESLEBEN-IMMOBILIEN vám predstavuje tento všestranne využiteľný trojrodinný dom, rozdelený na tri vlastnícke byty, v upravenom prostredí Recklinghausen Süd / König-Ludwig.
Trojrodinný dom bol postavený približne v roku 1900 masívnou stavbou a s úplným suterénom na vlastnom pozemku s rozlohou približne 360 m².
Ponúka približne 220 m² obytných plôch, rozdelených na dva byty v prízemí s približne 63 m² resp. 60 m² obytných plôch, a jeden byt v podkroví s približne 97 m² obytných plôch.
Už existuje plán delenia a pre každý z bytov je vyhotovený výpis z katastra nehnuteľností. Už teda existujú tri samostatné vlastnícke byty, ktoré je možné po nadobudnutí buď sami využívať, prenajímať, alebo aj individuálne predať.
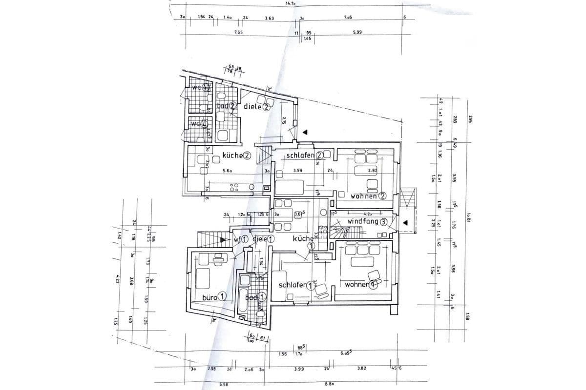
Väčší byt s približne 63 m² v prízemí ponúka obývaciu izbu, spálňu, kuchyňu s rozlohou približne 12 m², kanceláriu, sprchovaciu kúpeľňu, predsieň a vstupnú halu.
Menší byt s približne 60 m² v prízemí ponúka obývaciu izbu, spálňu, kuchyňu s rozlohou približne 16 m², predsieň s rozlohou približne 11 m² a kúpeľňu s denným svetlom.
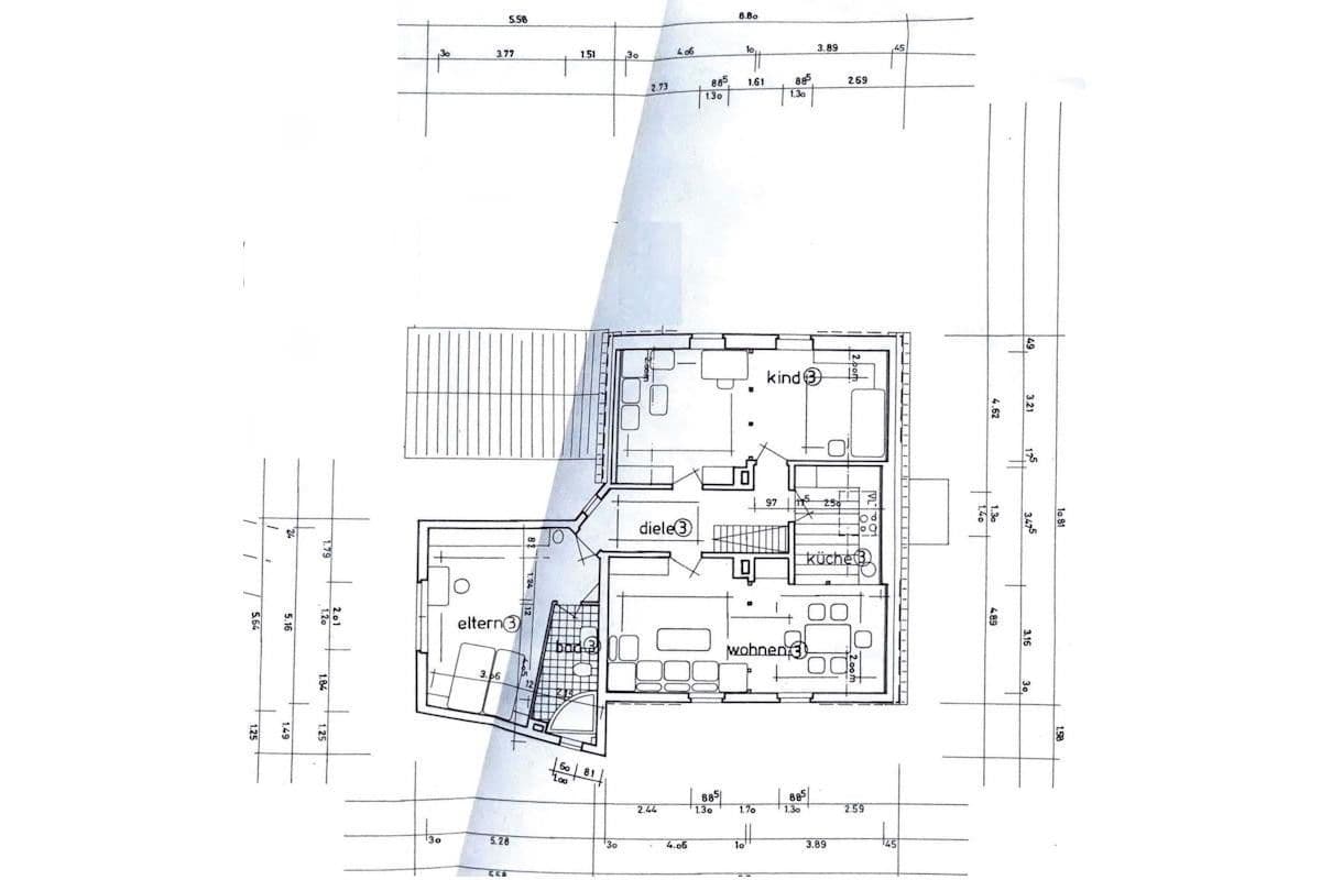
Byt v podkroví ponúka približne 97 m² obytných plôch, rozdelených na obývaciu izbu s rozlohou približne 27 m², spálňu s rozlohou približne 21 m², detskú izbu s rozlohou približne 23 m², kuchyňu, kúpeľňu s denným svetlom so štýlovou rohovou vaňou, priestrannú predsieň a vstupnú halu.
Všetky tri byty sú prístupné cez schodisko a majú samostatné vchody.
V suteréne sa nachádza práčovňa s kúrením a domovými prípojkami, sušiareň, tri samostatné suterénne miestnosti, priechodová miestnosť a chodba.
Pre automobily sú k dispozícii tri parkovacie miesta.
Dom je vykurovaný plynovým centrálnym vykurovaním z roku 2015.
V súčasnosti je dom prázdny.
Priamo na juhu priľahlá obytná a obchodná budova bude v blízkej budúcnosti taktiež ponúknutá našou spoločnosťou na predaj. Preto existuje možnosť nadobudnúť obe nehnuteľnosti spoločne.
Chcete si objekt ihneď pozrieť?
Pošlite nám prosím dopyt prostredníctvom kontaktného formulára alebo e-mailom na: info@immobilienmakler12.de, a my vás budeme okamžite kontaktovať.
Písomné dopyty sa vybavujú podstatne rýchlejšie ako telefonické!
BEZ PROVÍZIE PRE KÚPEŇA
Atraktívny trojrodinný dom v upravenom zmiešanom prostredí obľúbenej časti Recklinghausenu, König-Ludwig.
V okolí nájdete školy, materské školy, lekárov, lekárne a možnosti nákupov pre bežné dennodenné potreby.
Pešo dostupný južný bazén (vonkajší aj krytý bazén na Pappelallee) a prechádzkové cesty pozdĺž rieky Emscher lákajú na voľnočasové aktivity.
Zastávky autobusov z dobre rozvinutej siete verejnej dopravy sú taktiež dostupné pešo.
Automobilom sa dostanete do centra Recklinghausenu približne za 15 minút. Cez blízke diaľnice A43 a A2 ste výborne prepojení na mestá Ruhrgebiets a Münsterlandu.
- Všestranne využiteľný trojrodinný dom
- Približne 220 m² obytných plôch
- Už rozdelený na tri vlastnícke byty
- Rok výstavby približne 1900
- Masívna konštrukcia
- Úplne suterénny
- Vlastný pozemok s rozlohou približne 360 m²
- Samostatný vstup pre každý byt
- 3 parkovacie miesta
Toto je nezáväzná ponuka spoločnosti
FREIESLEBEN GmbH,
Steinstraße 14
45657 Recklinghausen
Tel.: 02361 - 90 61 030
Internet: www.immobilienmakler12.de
e-mail: info@immobilienmakler12.de
Môžete nás kontaktovať telefonicky od PONDIELKA do NEDELE od 7:00 do 22:00. Víkendy vám navyše ponúkame naše služby v oblasti oceňovania nehnuteľností, prehliadok objektov a osobných stretnutí.
Pokiaľ ide o objekt, sme závislí na informáciách od vlastníkov a úradov. Za správnosť a úplnosť údajov neberieme žiadnu zodpovednosť. Okrem toho nie je poskytovaná žiadna záruka na objekt a za likviditu zmluvných partnerov sa nepreberá zodpovednosť.
Chcete, aby bola vaša nehnuteľnosť profesionálne zpropagovaná?
- Využite náš bezplatný servis a nechajte si zhodnotiť aktuálnu hodnotu vašej nehnuteľnosti jedným z našich špecialistov na nehnuteľnosti.
- Optimalizujte predajné možnosti vašej nehnuteľnosti tým, že vytvoríme marketingový plán presne prispôsobený vášmu objektu.
- Využite našu vynikajúcu celonárodnú sieť, ktorá vám rýchlo zabezpečí záujemcov o kúpu. Stovky záujemcov na vás čakajú!
Zavolajte nám, tešíme sa na vás!
Centrála Münsterland: Tel.: 0251 - 39 444 998
Centrála Ruhrgebiet: Tel.: 0234 - 92 56 98 00
Parametre nehnuteľnosti
| Vek | Nad 50 rokov |
|---|---|
| Stav | Dobrý |
| Číslo inzerátu | 1005225 |
| Úžitková plocha | 220 m² |
| Celkové poschodia | 2 |
| Dostupné od | 25. 3. 2026 |
|---|---|
| Dispozícia | 6+1 |
| PENB | D - Menej hospodárne |
| Plocha pozemku | 360 m² |
| Cena za jednotku | 1 363 € / m2 |
Čo táto nehnuteľnosť ponúka?
| Pivnica | |
| MHD 1 minúta pešo |
| Parkovanie |
V okolí nehnuteľnosti nájdete
Stále hľadáte to pravé?
Nastavte si strážneho psa. Ponuky vybrané na mieru dostanete súhrnne 1× denne e-mailom. S Premium profilom máte po ruke rovno 5 strážcov a keď sa niečo objaví, informujú vás obratom.



















