
Prenájom bytu 2+1 • 64 m² bez realitky, Bádensko-Wurttembersko
Táto zmodernizovaná bytosť zaujme vďaka svojej vysoko kvalitnej výbave a komplexnej energetickej rekonštrukcii. Nehnuteľnosť bola pôvodne postavená v roku 1965 a momentálne prechádza sériovou rekonštrukciou, ktorá prebehne v rokoch 2025/2026, takže spĺňa dnešné bývacie a energetické normy.
Poznámka: Zobrazené fotografie interiéru bytu sú vizualizácie vytvorené umelou inteligenciou. Keďže sa byt ešte nachádza vo fáze výstavby, obrázky slúžia výlučne na ilustrovanie možného pôsobenia priestorov a vybavenia. Byt sa prenajíma bez nábytku.
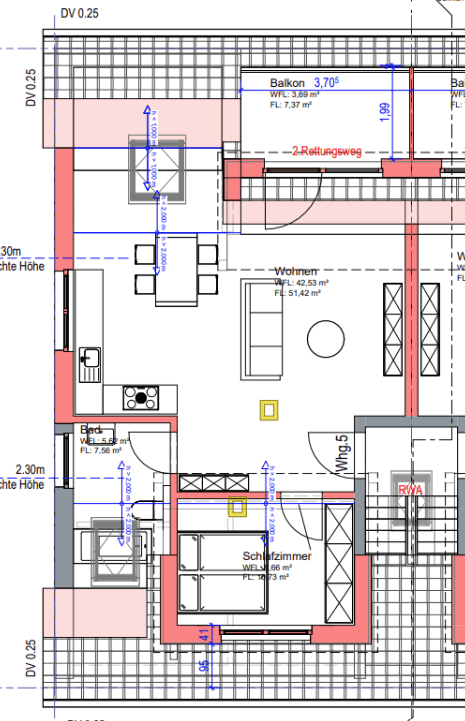
Byt disponuje parketovou podlahou a novou zabudovanou kuchyňou, čo vytvára moderné a útulné bývanie. Balkón na západnej strane ponúka dostatok miesta pre sedenie.
Pre dodatočný komfort zabezpečuje moderný ventilačný systém, tepelné čerpadlo a podlahové kúrenie vo všetkých obytných miestnostiach. Všetky strešné okná sú vybavené rolietami alebo markízami, čím poskytujú optimálnu ochranu pred slnečnými lúčmi a tepelným ziskom.
K bytu patrí aj sklepný úložný priestor a parkovacie miesto, ktoré poskytujú ďalší úložný priestor a komfort.
Byt bude pripravený na nasťahovanie v polovici až na konci marca 2026 a je ideálny pre nájomníkov, ktorí kladú dôraz na moderné, energeticky efektívne bývanie s vysoko kvalitným vybavením.
Nachádza sa na okraji obce Erdmannhausen, v blízkosti školy a materskej školy, v tichom prostredí. Samotné centrum obce s obchodmi, lekáreňou, ordináciou lekára a radnicou je veľmi dobre dostupné pešo a za krátky čas.
Obývacia izba vrátane kuchyne a spálňa sú vybavené kvalitnou dubovou parketou, ktorá vytvára príjemnú, modernú atmosféru bývania. Kúpeľňa zaujme štýlovými dlaždicami v elegantnej béžovo-sivej farbe a disponuje vysoko kvalitnou sprchovou kýmou z pravého skla. Moderná zabudovaná kuchyňa s umývačkou riadu a značkovými spotrebičmi kompletizuje atraktívny koncept bývania.
Parametre nehnuteľnosti
| Vek | Nad 50 rokov |
|---|---|
| Stav | Novostavba |
| Poschodie | 2. poschodie |
| PENB | A - Mimoriadne úsporné |
| Cena za jednotku | 16 € / m2 |
| Dostupné od | 15. 3. 2026 |
|---|---|
| Dispozícia | 2+1 |
| Číslo inzerátu | 1005175 |
| Úžitková plocha | 64 m² |
Čo táto nehnuteľnosť ponúka?
| Balkón | |
| MHD 2 minúty pešo |
| Parkovanie |
V okolí nehnuteľnosti nájdete
Stále hľadáte to pravé?
Nastavte si strážneho psa. Ponuky vybrané na mieru dostanete súhrnne 1× denne e-mailom. S Premium profilom máte po ruke rovno 5 strážcov a keď sa niečo objaví, informujú vás obratom.















