Predaj domu 7+1 • 135 m² bez realitkyGeltinger Straße 3 Wolfratshausen Wolfratshausen Bayern 82515
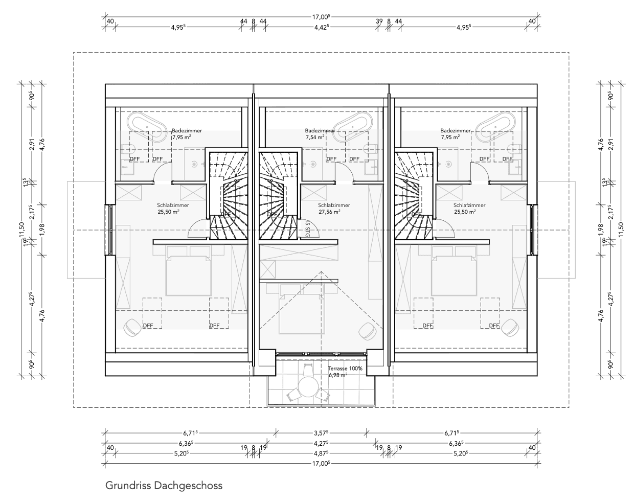
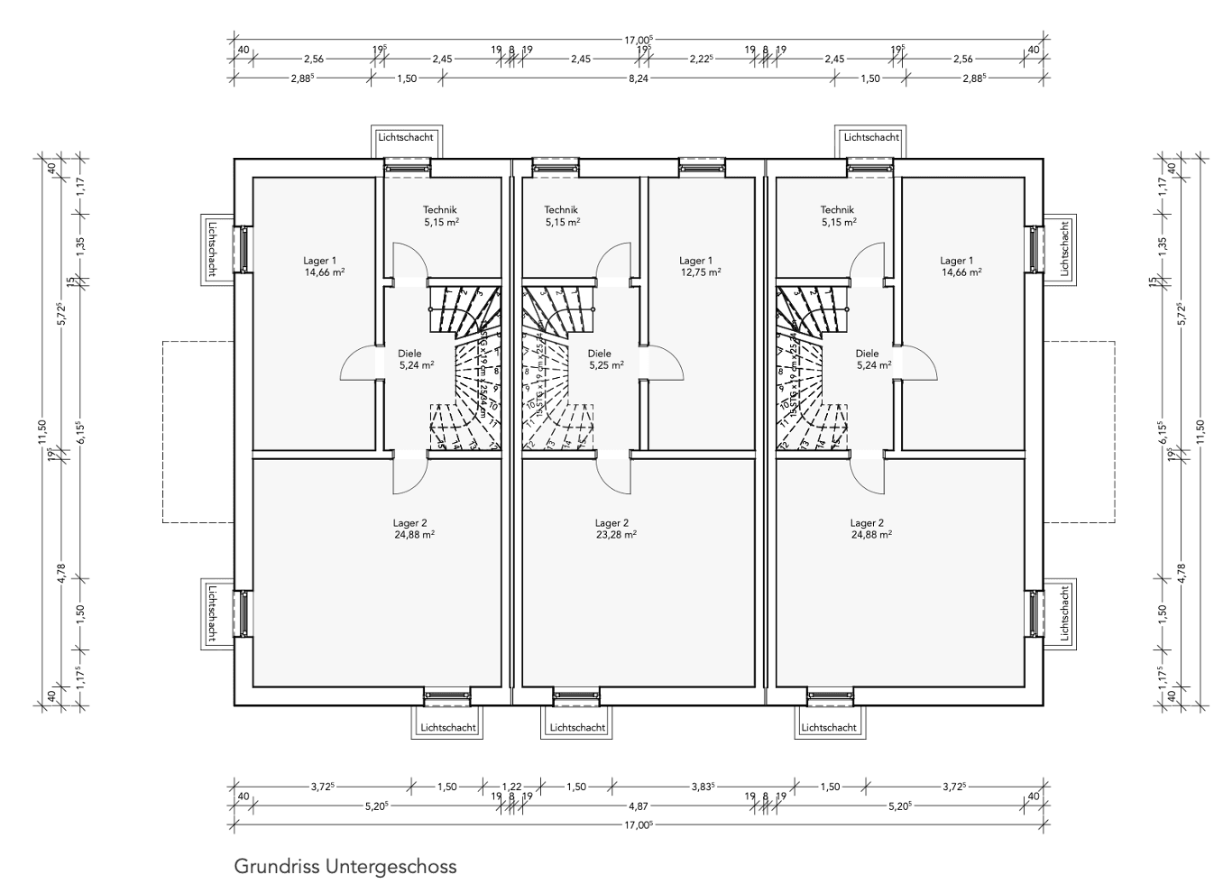
Geltinger Straße 3 Wolfratshausen Wolfratshausen Bayern 82515MHD 3 minúty pešo • ParkovanieV centrálnom umiestnení vo Wolfratshausene vzniká tento rok kvalitný trojdom v masívnej tehlicovej konštrukcii. Tri domy ponúkajú každý približne 135–142 m² obytného priestoru na reálne oddelených pozemkoch a zaujmú premysleným pôdorysom s až 7 izbami na štyroch úrovniach.
Domy budú odovzdané kľúčom so zvýšeným vybavením. Moderné tepelné čerpadlo, podlahové kúrenie na všetkých podlažiach (vrátane pivnice) a trojsklo zabezpečujú budúci komfort bývania.
Štědré výšky stropov nad 2,50 m, kvalitné sanitárne zariadenia a možnosť individuálneho výberu materiálov vám ponúkajú slobodu aktívne si podieľať na vytvorení vášho nového domova.
Prvý nasťahovanie je plánované na 01.10.2027.
Ako rodinná spoločnosť s regionálnymi koreňmi realizujeme naše stavebné projekty spoločne s vlastnými zamestnancami a miestnymi remeselníkmi – osobne, transparentne a spoľahlivo.
Detailné pôdorysy a prehľad cien nájdete v expozícii ako stiahnuteľný súbor.
Wolfratshausen, nachádzajúce sa v bavorskej predalpínskej oblasti, zaujme atraktívnou polohou pri rieke Loisach. Mesto ponúka výbornú infraštruktúru s množstvom obchodov, lekárov a škôl. Napojenie na verejnú dopravu je dobré, s pravidelnými vlakovými a autobusovými spojeniami do Mníchova a do okolitých obcí. Množstvo možností na rekreáciu ako sú turistické trasy a cyklotrasy pozdĺž Loisachu vás pozývajú k oddychu. Blízkosť k prírode a kúzelná historická časť robia z Wolfratshausenu príjemné miesto na život.
Ponúkame množstvo bezplatných úprav vybavenia a zmien pôdorysu pred začiatkom výstavby, čím sa dom stáva skutočne vaším domovom.
- masívna tehlicová stavba
- parkety z masívneho dreva
- kvalitné sanitárne zariadenia
- 2,50 m výška stropov
- podlahové kúrenie v celom dome (aj v pivnici)
- kvalitné a tiché vzduchové tepelné čerpadlo
- individuálne dohody o výbere materiálov
Časť našich referencií vám radi poskytneme na našej webovej stránke. Predaj prebieha bez provízie priamo od vlastníka!
beck-wohnbau.de
Parametre nehnuteľnosti
| Vek | Nad 50 rokov |
|---|---|
| Stav | Novostavba |
| Číslo inzerátu | 1004768 |
| Plocha pozemku | 260 m² |
| Cena za jednotku | 6 956 € / m2 |
| Dostupné od | 1. 10. 2027 |
|---|---|
| Dispozícia | 7+1 |
| Úžitková plocha | 135 m² |
| Celkové poschodia | 4 |
Čo táto nehnuteľnosť ponúka?
| Parkovanie |
| MHD 3 minúty pešo |
V okolí nehnuteľnosti nájdete
Stále hľadáte to pravé?
Nastavte si strážneho psa. Ponuky vybrané na mieru dostanete súhrnne 1× denne e-mailom. S Premium profilom máte po ruke rovno 5 strážcov a keď sa niečo objaví, informujú vás obratom.





