Predaj domu 6+1 • 160 m² bez realitky, Bavorsko
, BavorskoMHD 3 minúty pešo • ParkovanieNa predaj je ponúkaný pôvabný rodinný dom so slnečnou skleníkovou oázou (od WEINOR) na juhu.
Výnimočne široký výhľad do Maintalu vzbudzuje pocit slobody.
Slnečná poloha v kombinácii s veľkými oknami robí náklady na kúrenie viac než priaznivé.
Podlahové kúrenie v kúpeľni, vkusné obklady a parketová podlaha v celom objekte vytvárajú dokonalú atmosféru pohody.
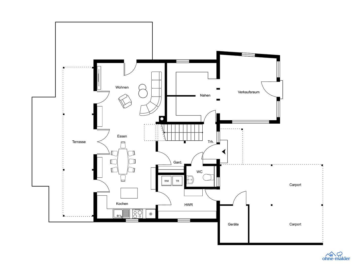
Obývacia časť (kuchyňa, jedáleň a obývačka) je otvorená a tvorí stredobod domu. Elektrika bola čiastočne vybavená aj systémom EIB. Prípojky pre telefón, sieť a TV sú inštalované v niekoľkých izbách.
Kuchyňa je vybavená najbežnejšími spotrebičmi (vrátane spotrebičov – rúra/Siemens, keramická varná doska/NEFF, vstavaná chladnička/Siemens, parný varný box/BOSCH, umývačka riadu/NEFF, digestor/Siemens).
Vedľa kuchyne sa nachádza práčovňa, kde je umiestnená poistková skriňa, kohútiky a rozvody hlavného vodovodného prívodu a možnosť uzavretia záhradnej vody. Rovnako je tu priestor a prípojky pre mrazničku, práčku a sušičku.
Niektoré okná sú vybavené kvalitnými proti-hmyzu sieťami (inštalácia/montáž zabezpečená firmou) a elektrickými rolietovými rolety (vrátane diaľkového ovládania) od spoločnosti WAREMA.
Vstup do domu je oddelený predsieňou. Odtiaľ majú hostia priamy vstup na hosťovské WC s integrovanou sprchou.
Na severe sa nachádza aj prístavka (cca 16 m²) s vlastným vstupom, ktorá môže byť využitá napríklad ako kancelária alebo malý obchodný priestor.
Priestranný carport (takmer upravený ako garáž) s elektrickým motorovým vratom poskytne vašim vozidlám potrebné útočisko.
Nehnuteľnosť sa predáva so vstavanou kuchyňou (vrátane vstavaného reverzného osmózneho systému) a šatníkmi bzw. vstavanými skriňami.
Veľká terasa (cca 31 m²) a ďalšie terasové plochy okolo domu (cca 23 m²) vás pozývajú na oddych a opaľovanie.
Okrem toho sú k dispozícii aj robustná prístavová budova (12 m²) a záhradný domček z plechu, ktoré slúžia ako ďalší úložný priestor.
Krásna záhradná brána na východe umožňuje jednoduchý prístup do záhrady.
V cene je zahrnutý aj vysoký záhon z hliníka (297 cm x 119 cm x 77 cm (D׊×V)) s príslušenstvom pre vysoký záhon.
Aktuálny energetický preukaz (Energetická spotreba trieda B / 56,98 kWh/(m²*a)) je k dispozícii.
Ak vás naša nehnuteľnosť oslovila, neváhajte nás kontaktovať.
Zeil am Main je podfranský malomesto situovaný na južných svahoch Haßberge neďaleko od Mains. Toto stredoveké mestečko má čo ponúknuť – množstvo historických domov okolo jedinečného trhoviska, "Zeiler Hexenturm" (dokumentačné centrum venované prenasledovaniu čarodejníc), čiastočne zachovanú mestskú múr, zrúcaniny Schmachtenbergu alebo Zeiler Käppele s krásnym výhľadom do Maintalu. Okolie je obklopené vinicami a je preto známe nielen vďaka vínnym produktom, ale aj tradičnej pivovarní.
Všetko, čo potrebujete na život, je tu a ešte oveľa viac.
Dobre zabezpečené spojenie s diaľnicou (cca 5 km) (A70) zároveň umožňuje rýchly prístup do väčších miest, ako sú Bamberg (cca 27 km) alebo Schweinfurt (cca 25 km).
Ďalšie informácie nájdete na frankentourismus.de, zeil-am-main.de alebo na Wikipédii.
V obývacej/jedálenskej časti sa v centrálnom umiestnení nachádza pekná švédska pec (drevená pec) od CONTURA, ktorá v zime zabezpečuje príjemné rozloženie tepla po celom dome.
Hosťovské WC bolo zrekonštruované v roku 2020 a bola v ňom zainštalovaná sprcha.
V roku 2024 bol kompletne vymenený existujúci kondenzačný plynový kotol (kondenzačné vykurovaciu zariadenie Vitodens 300-W + zásobník teplej vody Vitocell 100-V + pumpa + expanzná nádoba) vrátane všetkých potrubí spoločnosťou VIESSMANN.
Dom bol postavený ako KFW60 dom.
Veškerá komunikácia/správy s nami prebiehajú prostredníctvom notifikačnej funkcie tejto platformy.
Prosíme vás, aby ste sa zdržali volaní alebo spontánnych návštev na mieste.
Ďakujeme veľmi pekne.
Prijímame iba záujemcov s existujúcou/dokázateľnou bonitou – to je podmienka, ktorú je potrebné predložiť predložením príslušných dokumentov (bankový výpis, úverové schválenie banky atď.).
Príslušný vzor (Bonitné potvrdenie kupujúceho) nájdete vyššie na stiahnutie. Tento dokument môžete využiť.
Až potom je možná prehliadka nehnuteľnosti.
Prvé prehliadky sa môžu uskutočniť od mája/júna 2026.
Ďakujeme veľmi pekne za pochopenie.
Parametre nehnuteľnosti
| Vek | Nad 50 rokov |
|---|---|
| Stav | Dobrý |
| Číslo inzerátu | 1004734 |
| Úžitková plocha | 160 m² |
| Celkové poschodia | 2 |
| Dostupné od | 11. 9. 2026 |
|---|---|
| Dispozícia | 6+1 |
| PENB | B - Veľmi úsporné |
| Plocha pozemku | 563 m² |
| Cena za jednotku | 3 619 € / m2 |
Čo táto nehnuteľnosť ponúka?
| Balkón | |
| MHD 3 minúty pešo |
| Parkovanie | |
| Terasa |
V okolí nehnuteľnosti nájdete
Stále hľadáte to pravé?
Nastavte si strážneho psa. Ponuky vybrané na mieru dostanete súhrnne 1× denne e-mailom. S Premium profilom máte po ruke rovno 5 strážcov a keď sa niečo objaví, informujú vás obratom.




























