
Prenájom bytu 2+1 • 40 m² bez realitkyHernalser Hauptstraße 22 Wien 17. Bezirk Wien 1170
Hernalser Hauptstraße 22 Wien 17. Bezirk Wien 1170MHD 2 minúty pešo • Výťah • GarážSlnečný, dobre rozdelený 2-izbový byt v blízkosti AKH – v okolí U6 pri Alserstraße – centrálna poloha
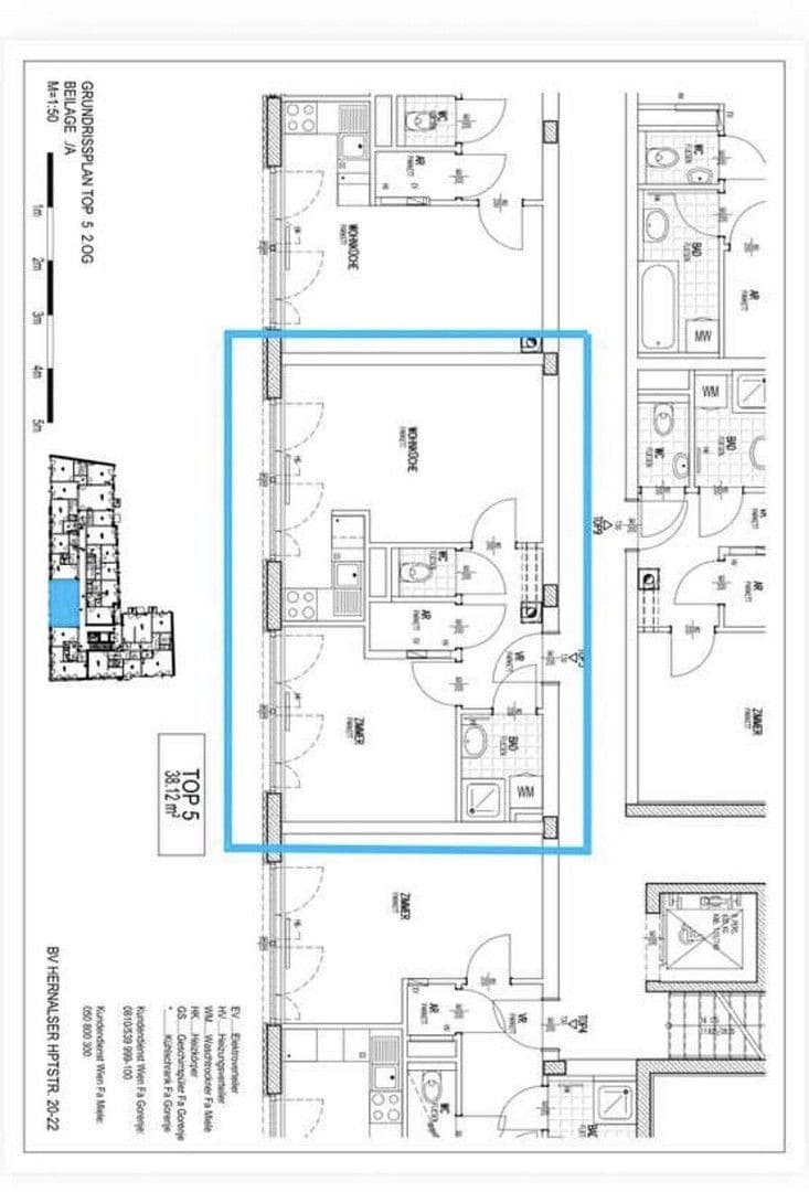
Tento dokonale navrhnutý dvojizbový byt o rozlohe približne 40 m² sa nachádza v dome postavenom v roku 2002 vo 4. poschodí (s výťahom). Všetky miestnosti sú samostatne prístupné. Obývacia izba disponuje malou otvorenou kuchyňou so všetkými potrebnými spotrebičmi. Z predsiene vstúpite do spálne a kúpeľne. Samostatne z chodby je prístupné aj WC a úložný priestor. Vďaka južnej orientácii vo 4. poschodí je byt svetlý a slnečný. K dispozícii je aj suterénna miestnosť o rozlohe 2 m². V prípade potreby je možné si prenajať parkovacie miesto (garážové miesto v dome).
Rozloženie izieb:
Obývacia izba s otvorenou kuchyňou, spálňa, kúpeľňa, WC, chodba, úložný priestor, suterénna miestnosť
Vybavenie:
Podlahové dielne, dlaždice, kuchyňa s umývačkou riadu, chladnička, rúra, keramická varná doska, vonkajšie rolety, kúpeľňa so sprchou a pripojením pre práčku
Infraštruktúra:
U6 v pešej vzdialenosti, taktiež AKH, rôzne autobusové linky, rovnako električky, množstvo obchodov, supermarkety, lekári atď., všetko je dosiahnuteľné za pár minút chôdze.
V celkovom nájomnom poplatku sú už zahrnuté náklady na kúrenie a teplú vodu. Elektrina, TV a internet sa platia zvlášť.
Parametre nehnuteľnosti
| Vek | Nad 50 rokov |
|---|---|
| Dispozícia | 2+1 |
| Číslo inzerátu | 1004326 |
| Cena za jednotku | 21 € / m2 |
| Stav | Veľmi dobrý |
|---|---|
| Poschodie | 2. poschodie |
| Úžitková plocha | 40 m² |
Čo táto nehnuteľnosť ponúka?
| Pivnica | |
| Výťah |
| Garáž | |
| MHD 2 minúty pešo |
V okolí nehnuteľnosti nájdete
Stále hľadáte to pravé?
Nastavte si strážneho psa. Ponuky vybrané na mieru dostanete súhrnne 1× denne e-mailom. S Premium profilom máte po ruke rovno 5 strážcov a keď sa niečo objaví, informujú vás obratom.














