
Predaj pozemku • 601 m² bez realitkyMnichovo Hradiště - Sychrov nad Jizerou, Středočeský kraj
Pozemek 601 m² s hotovým projektem a „parťákem“ v záloze – MH
Stavební pozemek s projektem a „parťákem“ v záloze.
Lokalita: Mnichovo Hradiště – Hněvousice (oblast „za zámkem“) se sítěmi, optikou a bonusem pro stavbu.
Časově omezená nabídka: (ZVÝHODNĚNÁ JARNÍ CENA)
Sleva 200 000 Kč: "Cena 4,5 mil. je včetně projektu a servisu, ale při rychlém jednání do konce května je možná dohoda na 4,3 mil."
Hledáte místo pro klidný rodinný život v jedné z nejžádanějších lokalit Mnichovohradišťska a někoho, kdo Vám pomůže proplout začátkem stavby?
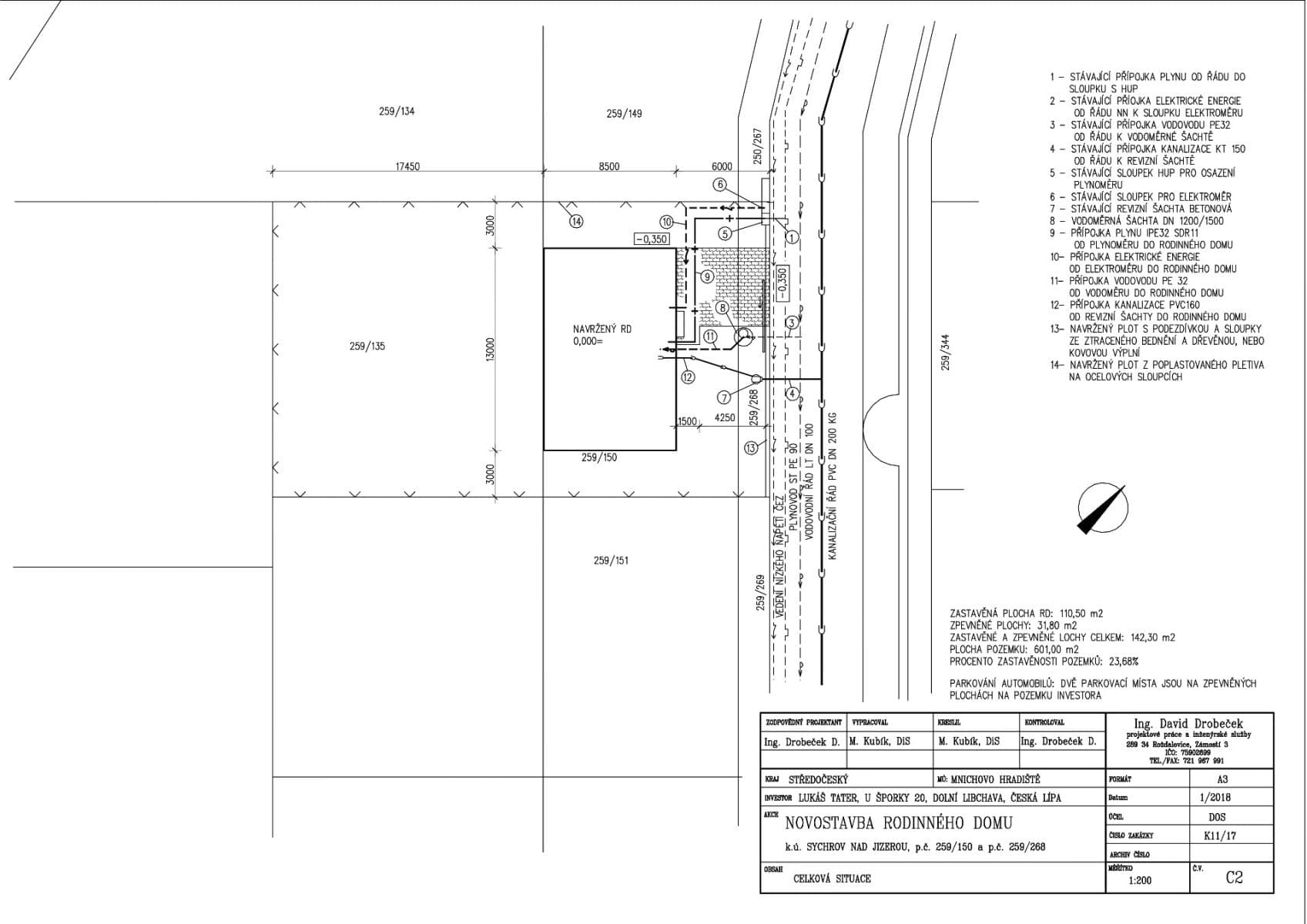
Nabízím k prodeji slunný, kompletně zasíťovaný pozemek o výměře 601 m2, který se nachází v žádané lokalitě „Za Zámkem“. Vybudujte si nízkoenergetický domek do nejistých časů. Máte jednu z posledních šancí, navázanou na přímou spolupráci při výstavbě. (Určitá forma sousedské rady, případně výpomoci.) Jsem přímý majitel, váš budoucí soused a zkušený svépomocník, který má celou stavbu domu v této lokalitě za sebou.
Proč si vybrat právě tento pozemek?
• Kompletní sítě: Elektřina, voda, plyn i kanalizace jsou k dispozici přímo na pozemku.
• Vysokorychlostní internet: Na pozemku je dostupná optická síť – ideální pro nerušený home-office.
• Lokalita: Hněvousice kombinují klid přírody s perfektní dostupností do centra města a na dálnici D10 (Trasa: Liberec – Turnov – Mladá Boleslav – Praha)
• Orientace: Pozemek je ideálně situován pro maximální využití solární energie (ideální pro budoucí FVE). Vjezd na pozemek je situován na východ, je to jedna z nejlepších možných variant. Což znamená „ zajišťuje slunné snídaně a klidná, soukromá odpoledne na terase chráněné domem".
Bonus a podpora pro Vaši stavbu (v ceně):
Jsem majitel, zkušený svépomocník (voda, topení, elektro) a soused, kterému záleží na tom, co v okolí vyroste. K pozemku Vám zdarma přidám:
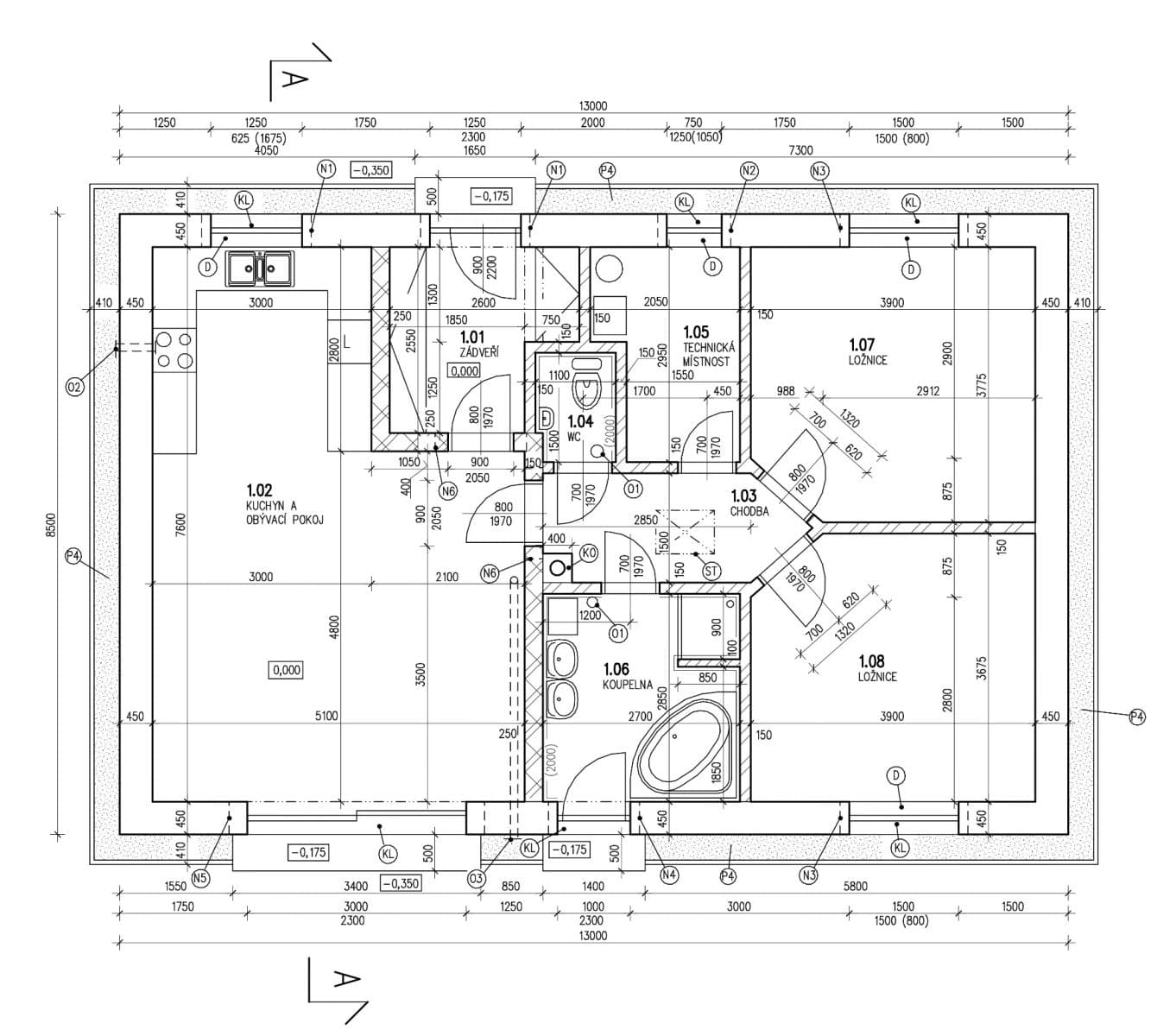
1. Kompletní projektovou dokumentaci na přízemní bungalov – ušetříte statisíce a měsíce čekání u projektanta. Projekt byl již projednáván na SÚ v MH. Projektová dokumentace je tak velmi příjemný bonus (zdarma).
2. Odbornou záštitu: Jako budoucí soused a svépomocník v oboru TZB (voda, topení, elektro) vám rád poskytnu nezávaznou konzultaci a radu. Pokud byste měli zájem o mou „řemeslnou“ pomoc, je možnost a lze se domluvit na standardní spolupráci. (Určitá forma sousedské výpomoci a konzultací.)
Prodej probíhá napřímo od majitele, neplatíte žádnou provizi realitní kanceláři. Právní servis (notářská úschova a kupní smlouvy) je zajištěn notářskou kanceláří v mé režii. Finální cenu tak tvoří 601 m2 + projektová dokumentace + v případě sympatií nezávazná sousedská konzultace.
Doplňující informace:
K projektové dokumentaci, přepošlu emailem, včetně bližších informaci.
Ale 70% podkladů je hotovách a připravených. Což výrazně šetří čas, administrativu a finance.
Stavební povolení (ohlášení) je díky tomu na dosah ruky.
Nečekejte, až ceny materiálů a pozemků v regionu opět vzrostou – začněte stavět na pevných základech ještě letos. S přímou podporou zkušeného svépomocníka.
Parametre nehnuteľnosti
| Dostupné od | 22. 3. 2026 |
|---|---|
| Typ pozemku | Stavebný |
| Plocha pozemku | 601 m² |
| Číslo inzerátu | 1004206 |
|---|---|
| Vlastníctvo | Osobné |
| Cena za jednotku | 7 155 CZK / m2 |
V okolí nehnuteľnosti nájdete
Stále hľadáte to pravé?
Nastavte si strážneho psa. Ponuky vybrané na mieru dostanete súhrnne 1× denne e-mailom. S Premium profilom máte po ruke rovno 5 strážcov a keď sa niečo objaví, informujú vás obratom.









