
Prenájom bytu 2+1 • 46 m² bez realitkyBahnstrasse 36 Bad Vöslau Bad Vöslau Niederösterreich 2540
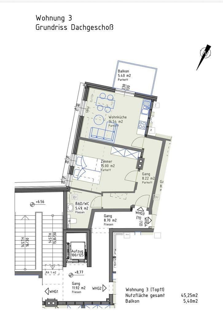
Bahnstrasse 36 Bad Vöslau Bad Vöslau Niederösterreich 2540MHD 2 minúty pešo • Výťah • ParkovanieTento moderný podkrovný byt (č. 11) na ulici Bahnstraße 36 v Bad Vöslau je súčasťou podkrovného prístavby postavenej v roku 2026 a je prvýkrát ponúkaný na prenájom – skutočne prvé nasťahovanie. Na približne 45,25 m² obytného priestoru vás čaká svetlá obytná kuchyňa s rozlohou cca 16,5 m², spálňa s cca 15 m², moderná kúpeľňa/WC a praktický predsálie podľa priloženého pôdorysu.
Výťah ide priamo až na podkrovie, čo zabezpečuje pohodlný prístup do bytu aj v každodennom živote. Kvalitné parketové podlahy, moderné sanitárne zariadenie a podlahové kúrenie vo všetkých miestnostiach prispievajú k príjemnému pocitu zo bývania. Domáca technika vybavená tepelným čerpadlom a fotovoltaickým systémom na streche ponúka veľmi dobré energetické hodnoty a nízku spotrebu energie.
Balkón s rozlohou približne 5,4 m² rozširuje obytný priestor smerom von a je ideálny na oddych po práci. Byt bude pravdepodobne dostupný od septembra, pričom na požiadanie je možná aj zariadená prenájom. Kellerská miestnosť je zahrnutá v cene prenájmu, pričom parkovacie miesto priamo pred domom je možné prenechať za 60 € mesačne.
Priamo vedľa stanice Bad Vöslau – Wien Meidling, do 30 minút dostupné. Nakupovanie, gastronomia a lekáreň sú v pešej vzdialenosti. Pokojná obytná ulica s vysokou kvalitou života v termálnej oblasti.
• Výťah až na podkrovie
• Prvý nasťahovací byt z novej podkrovnej výstavby
• Obytná plocha cca 45,25 m², 2 izby
• Balkón cca 5,4 m²
• Podlahové kúrenie vo všetkých miestnostiach
• Tepelné čerpadlo + fotovoltaický systém na streche, veľmi dobré energetické údaje (HWB 38,7 kWh/m²a, trieda B; fGEE 0,71, trieda A)
• Kvalitné parketové a obkladové podlahy, moderné sanitárne zariadenie
• Kellerská miestnosť zahrnutá
• Parkovacie miesto pre auto, voliteľné (60 €/mesiac)
• Zariadený prenájom na požiadanie možný
Parametre nehnuteľnosti
| Vek | Nad 50 rokov |
|---|---|
| Dispozícia | 2+1 |
| Číslo inzerátu | 1002971 |
| Úžitková plocha | 46 m² |
| Stav | Novostavba |
|---|---|
| Poschodie | 3. poschodie |
| PENB | A - Mimoriadne úsporné |
| Cena za jednotku | 20 € / m2 |
Čo táto nehnuteľnosť ponúka?
| Balkón | |
| Výťah | |
| MHD 2 minúty pešo |
| Pivnica | |
| Parkovanie |
V okolí nehnuteľnosti nájdete
Stále hľadáte to pravé?
Nastavte si strážneho psa. Ponuky vybrané na mieru dostanete súhrnne 1× denne e-mailom. S Premium profilom máte po ruke rovno 5 strážcov a keď sa niečo objaví, informujú vás obratom.




