Predaj domu 6+1 • 174 m² bez realitkyLeverkusen Lützenkirchen Nordrhein-Westfalen 51381
Predávame udržiavaný a moderný radový dom v Leverkusene-Lützenkirchene. Dom zaujme svojím nadčasovým vybavením, priestranným rozložením izieb a prostredím prepojeným s prírodou.
Dom ponúka moderný, svetlý a otvorený dizajn s kvalitnými materiálmi.
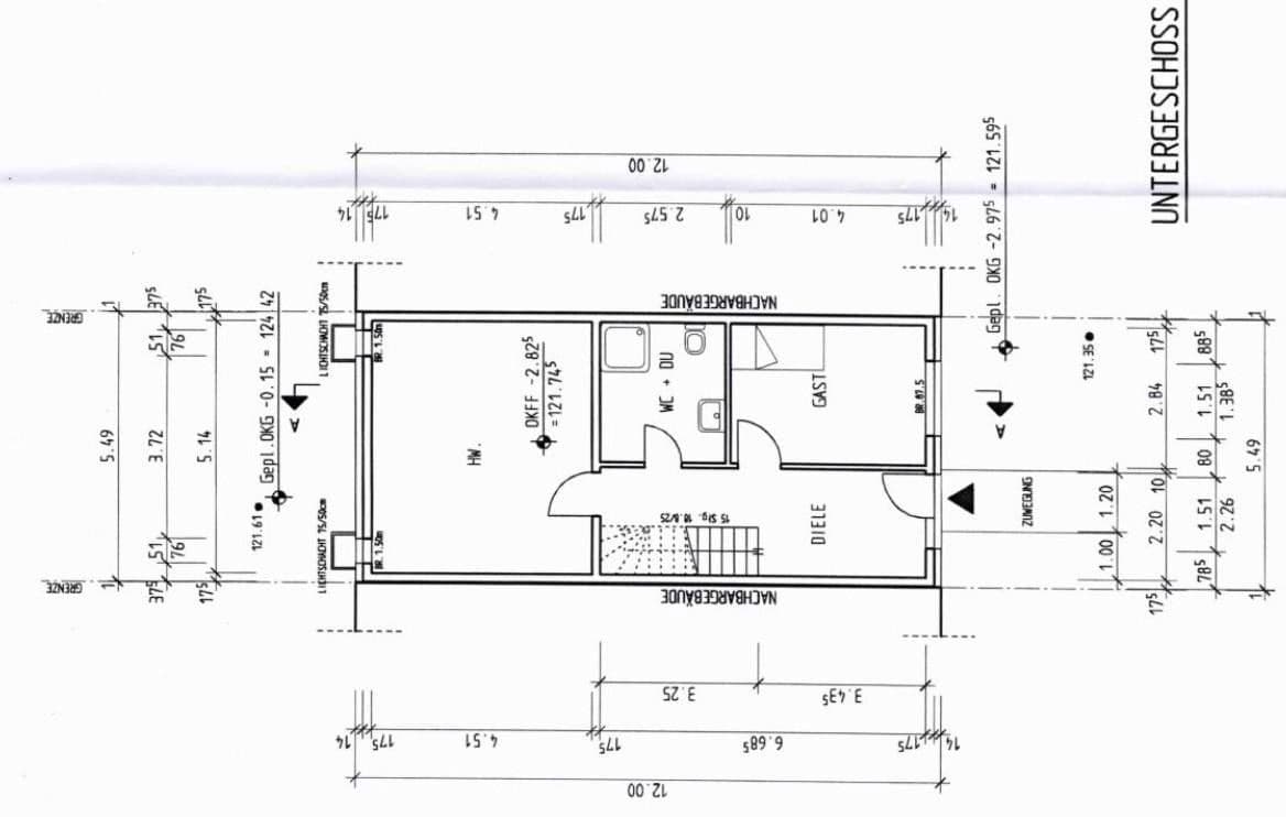
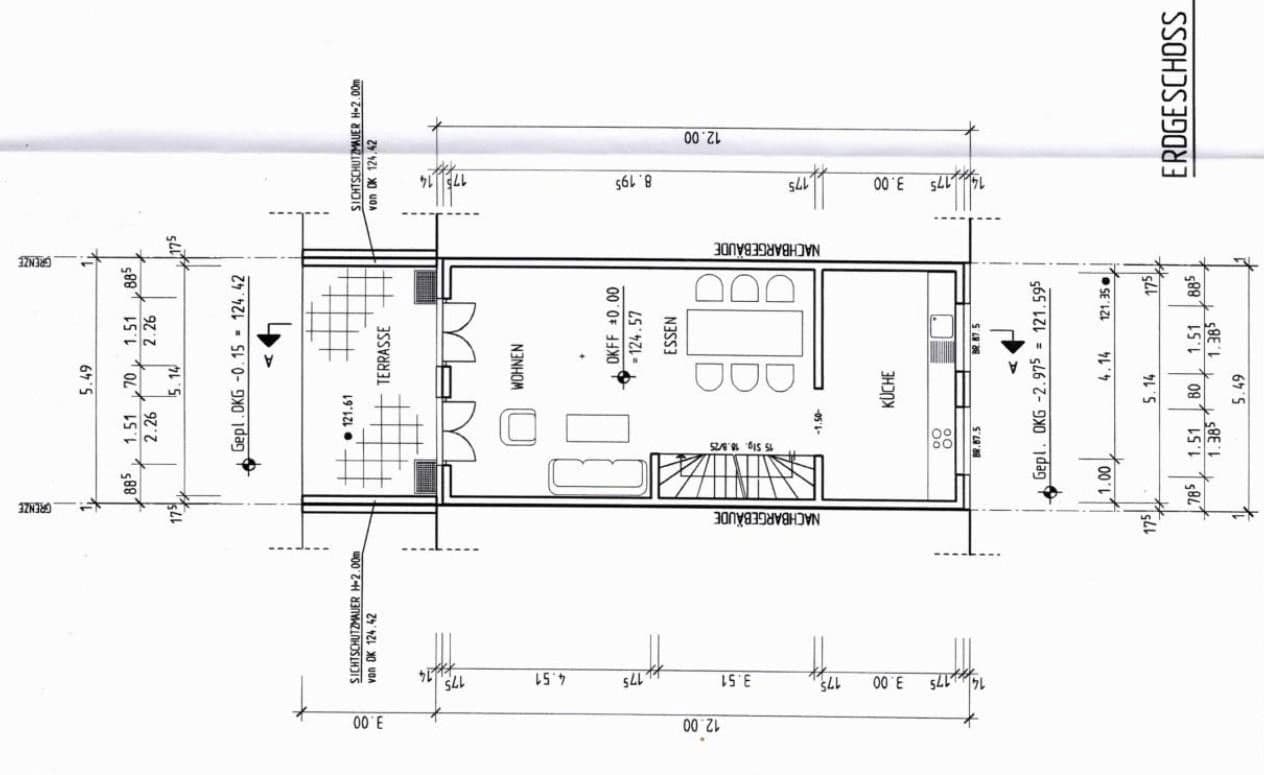
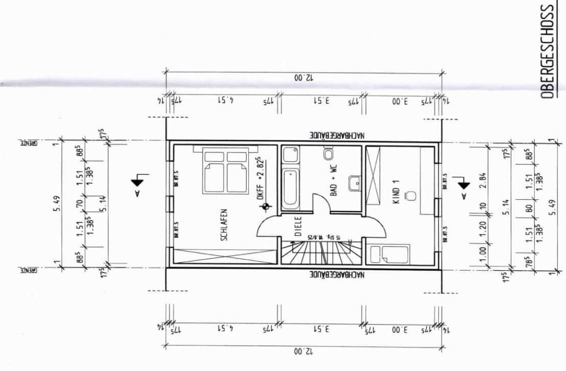
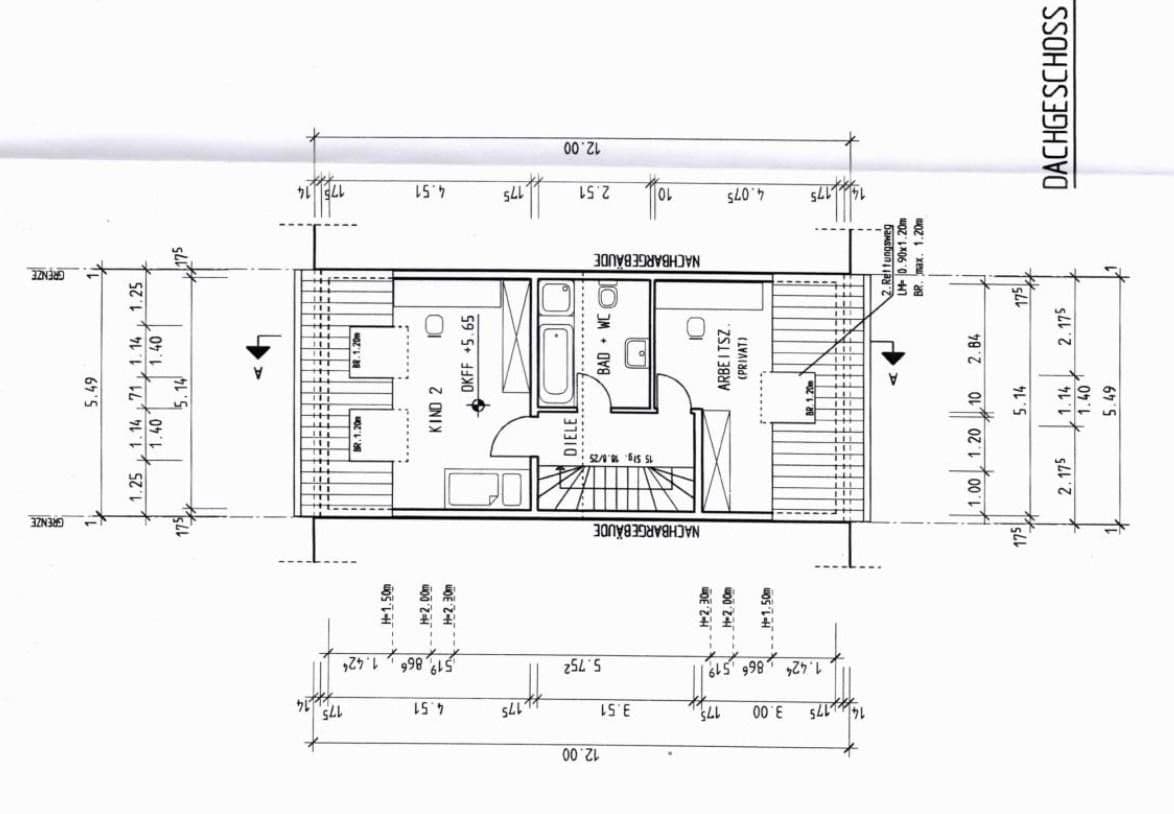
Otvorená obývacia a jedálenská časť a upravená záhrada pozývajú na oddych. Tri kúpeľne poskytujú dostatočný komfort pre celú rodinu. Vo všetkých miestnostiach zabezpečuje prízemné kúrenie príjemné teplo a komfortný pocit zo bývania. Vďaka garáži a parkovaciemu miestu je k dispozícii dostatok priestoru pre vozidlá. Navyše je k dispozícii praktický pivničný priestor.
Radový dom sa nachádza v Leverkusene-Lützenkirchene. Materská škôlka, základná škola a stredné školy sa nachádzajú v bezprostrednej blízkosti. Nákupné možnosti pre každodenné potreby, ako aj možnosti voľnočasových aktivít sú rýchlo dostupné. Len niekoľko metrov od domu začínajú turistické a cyklistické trasy – ideálne pre milovníkov prírody a rodiny.
Plne vybavená vstavaná kuchyňa s modernými elektrospotrebičmi sa dobre hodí do otvorenej obývacej a jedálenskej časti a je zahrnutá v kúpnej cene.
Všetky miestnosti sú vybavené podlahovým kúrením a žalúzie sú všade ovládané elektricky.
Táto nehnuteľnosť ponúka ideálny domov pre rodiny, ktoré ocenia moderné bývanie v tichej lokalite s dobrou infraštruktúrou.
K dispozícii od leta 2026.
Pri záujme alebo ďalších otázkach nás neváhajte kontaktovať. Prehliadky domov si dohodneme individuálne.
Parametre nehnuteľnosti
| Vek | Nad 50 rokov |
|---|---|
| Dispozícia | 6+1 |
| PENB | A - Mimoriadne úsporné |
| Plocha pozemku | 203 m² |
| Stav | Dobrý |
|---|---|
| Číslo inzerátu | 1002618 |
| Úžitková plocha | 174 m² |
| Cena za jednotku | 3 190 € / m2 |
Čo táto nehnuteľnosť ponúka?
| Pivnica | |
| Parkovanie | |
| Terasa |
| Garáž | |
| MHD 0 minút pešo |
V okolí nehnuteľnosti nájdete
Stále hľadáte to pravé?
Nastavte si strážneho psa. Ponuky vybrané na mieru dostanete súhrnne 1× denne e-mailom. S Premium profilom máte po ruke rovno 5 strážcov a keď sa niečo objaví, informujú vás obratom.




















