
Predaj bytu 3+1 • 139 m² bez realitkyJustinastraße 37, , Severné Porýnie - Westfálsko
Justinastraße 37, , Severné Porýnie - WestfálskoMHD 3 minúty pešo • Výťah • GarážPri plánovaní objektu sa bralo do úvahy, že sa cielene podporí najlepší potenciál ďalšieho využitia nevyužívaných pozemkov v blízkosti mesta. Preto sa pre tento pozemok rozhodol pre výstavbu viacrodinného domu. Zmenou územného plánu bolo možné zrealizovať budovu s modernou plochou strechou, na ktorej bola navyše inštalovaná fotovoltaická elektráreň s výkonom 18 kW. Výsledkom je súčasný a ekologický obytný koncept s premyslenými a komfortnými pôdorysmi. Takmer všetky okná sú podlahové a zaisťujú mimoriadne svetlé priestory. Výťah spája podzemnú garáž (suterén) až po stavané poschodie – všetky podlažia sú úplne bezbariérové a prístupné.
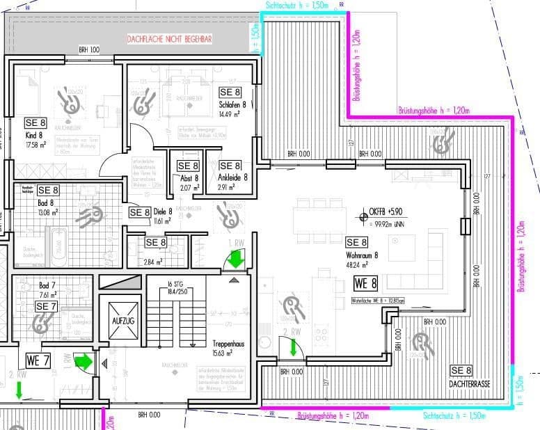
Na približne 964 m² veľkom pozemku vzniká samostatne stojaci viacrodinný dom s celkovou obytnou plochou okolo 752,5 m², rozložený do 8 obytných jednotiek. Tieto sa rozprestierajú na dvoch plne osídlených poschodiach a na stavanom poschodí. Objekt disponuje 5 podzemnými garážovými parkovacími miestami a 3 vonkajšími parkovacími miestami. Šiesty podzemný parkovací priestor bude spoločenstvu domu k dispozícii ako miesto na uskladnenie bicyklov. V suteréne sa nachádza aj spoločná práčovňa a ku každému bytu samostatný suterénny priestor, kde pravdepodobne bude možnosť umiestniť práčku a sušičku.
Vznikajú tri 2-izbové byty vrátane otvorenej kuchyne, štyri 3-izbové byty vrátane otvorenej kuchyne a jeden 4-izbový byt vrátane otvorenej kuchyne. Obytná plocha jednotiek sa pohybuje medzi približne 69 m² a 138 m². Byty v prízemí – ľavý a stredný – majú každý terasu so záhradným časťou. Prízemný byt na pravej strane je vybavený balkónom. Všetky byty v 1. nadzemnom podlaží, ako aj byt na strešnej úrovni na ľavej strane, disponujú priestrannými balkónmi. Penthouse na strešnej úrovni v pravej časti ponúka obkolesujúcu strešnú terasu, ktorá takmer úplne obopína celý byt. 50 % jednotiek je už rezervovaných – predaj prebehne až po takmer úplnom dokončení objektu, preto pracujeme s rezerváciami. Jednotku zakúpite až po takmer úplnej dokončenosti objektu.
Prehľad niektorých výbavových prvkov:
• bezbariérové 2-, 3- a 4-izbové byty (vrátane otvorenej kuchyne)
• 5 podzemných garážových parkovacích miest a 3 vonkajšie parkovacie miesta, pričom jeden podzemný priestor bude premenený na miesto na uskladnenie bicyklov
• bezbariérový prístup do domu – výťah spája suterén až so stavaným poschodím
• príjemné pôdorysy s otvoreným kuchynským priestorom
• byty s podlahovými oknami (v obytnom priestore vybavenými nastaviteľnými žaluziami alebo v spálni roletami)
• priestranné terasy, balkóny resp. loggie
• miesto pre umiestnenie práčky a sušičky v práčovni v suteréne (voliteľne aj práčka a sušička v samostatnom suterénnom priestore)
• kúpeľne s vyšším štandardom, s bezbariérovým vstupom do sprchy (prízemný prístup)
• podlahové kúrenie v celom byte
• rozsiahla elektroinštalácia, zvonček s video domofónom
• vzduchovo-tepelné čerpadlo pre vykurovanie a ohrev teplej vody
• možnosti uskladnenia bicyklov v podzemnej garáži
• priestranná podzemná garáž
• voliteľný domovnícky servis a čistenie schodiska
• pripojenie na optickú sieť je zabezpečené
Štyri z ôsmich bytov sú už rezervované, aktuálne sú na predaj tieto byty:
• Prízemie – 3 izbový vrátane otvorenej kuchyne – 85,32 m² – kúpna cena: 337.014,00 €
• 1. nadzemné podlažie – 4 izbový vrátane otvorenej kuchyne – 105,13 m² – kúpna cena: 415.263,50 €
• 1. nadzemné podlažie – 2 izbový vrátane otvorenej kuchyne – 86,30 m² – kúpna cena: 340.885,00 €
Pri ďalšom záujme nás neváhajte kontaktovať.
Nehnuteľnosť sa nachádza v atraktívnej lokalite na adrese Justinastraße 37, 52428 Jülich. Obytné prostredie je charakterizované pokojným, udržiavaným susedstvom a príjemnou kombináciou obytných a rekreačných kvalit. Poloha spája bývanie v blízkosti centra s vysokou kvalitou života.
Jülicher centrum je dosiahnuteľné za pár minút a ponúka široký výber nákupných možností, kaviarní, reštaurácií a kultúrnych podujatí. Všetky zariadenia dennej potreby – supermarkety, lekári, lekárne, školy a škôlky – sú v bezprostrednej blízkosti.
Vďaka výbornej dopravnej dostupnosti sú rýchlo prístupné ako verejná doprava, tak aj regionálne a nadregionálne cestné komunikácie. Mesta Aachen, Köln a Düsseldorf sú výhodne prepojené prostredníctvom blízkych diaľnic a rýchlostných ciest, čo robí lokalitu obzvlášť atraktívnou pre dochádzajúcich do práce.
Mnohé možnosti voľnočasových a rekreačných aktivít ako zelené plochy, prechádzkové a cyklistické trasy či športové zariadenia sú v bezprostrednom okolí, a vyzývajú k aktívnemu tráveniu voľného času. Kombinácia mestskej infraštruktúry a bývania blízko prírody robí túto lokalitu mimoriadne žiadanou.
Daňová výhoda prostredníctvom KfW-40 špeciálnej odpočítateľnosti:
Nehnuteľnosť spĺňa energeticky efektívny štandard KfW-40 a ponúka investorom atraktívne daňové výhody. Okrem bežnej ročnej odpisovej sadzby budovy vo výške 3 % je za určitých podmienok možné využiť aj dodatočný špeciálny odpis podľa §7b EStG vo výške 5 % ročne počas štyroch rokov.
Vďaka tomu je možné v prvých rokoch po nadobudnutí zabezpečiť vyššie odpisy, čo môže viesť k výraznému zníženiu daňovej záťaže z príjmov z prenájmu. Podmienkou je okrem iného prenájom bytu na bývanie na aspoň desať rokov.
Poznámka: Daňové využitie závisí od individuálnej situácie kupujúceho. Odporúča sa využiť daňové poradenstvo.
Radi Vám pri ďalšom záujme poskytneme naše expoé. Neváhajte nás kontaktovať. Prehliadka objektu je takmer kedykoľvek možná.
Impressum
Názov spoločnosti:
Jonas Roeben Immobilien
Evidované sídlo:
Jülich
Kontaktné informácie:
Tel.: +49 2463-9997948
Mobil: +49 173-7585805
Email: roeben@roeben-immobilien.de
DIČ pre DPH:
DE316372687
Regulačný orgán:
Povolenie vydané okresom Düren podľa §34c ods. 1 veta 1 č. 1 GewO (činnosť realitného makléra)
Parametre nehnuteľnosti
| Vek | Nad 50 rokov |
|---|---|
| Stav | Novostavba |
| Poschodie | 1. poschodie z 3 |
| PENB | A - Mimoriadne úsporné |
| Cena za jednotku | 3 927 € / m2 |
| Dostupné od | 1. 6. 2026 |
|---|---|
| Dispozícia | 3+1 |
| Číslo inzerátu | 1002606 |
| Úžitková plocha | 139 m² |
Čo táto nehnuteľnosť ponúka?
| Bezbariérový prístup | |
| Garáž | |
| MHD 3 minúty pešo |
| Pivnica | |
| Výťah |
V okolí nehnuteľnosti nájdete
Stále hľadáte to pravé?
Nastavte si strážneho psa. Ponuky vybrané na mieru dostanete súhrnne 1× denne e-mailom. S Premium profilom máte po ruke rovno 5 strážcov a keď sa niečo objaví, informujú vás obratom.


























