
Predaj bytu 4+1 • 89 m² bez realitkyAmselweg 27, , Bádensko-Wurttembersko
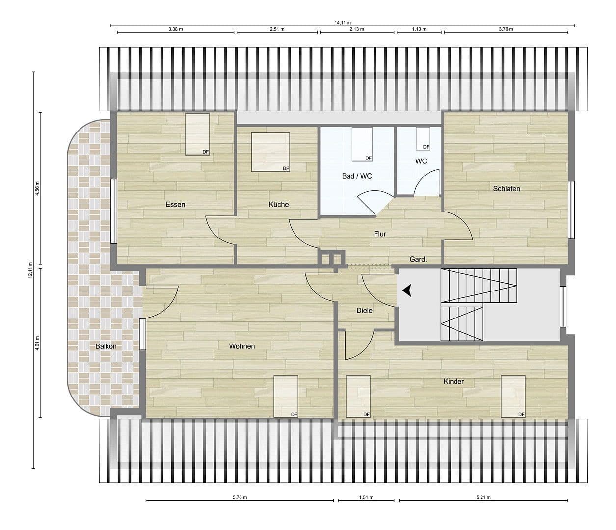
Byt s rozlohou cca 89 m² sa vyznačuje nádherne veľkou a veľmi slnečnou južnou balkónou a krásnou polohou na okraji centra mesta Welzheim. Byt disponuje kúpeľňou s denným svetlom a veľkou sprchou a je vybavený samostatnou toaletou. K bytu patria dve veľké samostatné pivnice a mimoriadne veľká spoločná práčovňa a sušiareň.
Štvorizbový byt sa nachádza len niekoľko minút chôdze od centra liečebného mesta Welzheim. Na týždenné nákupy si môžete pohodlne vydať pešo: v okruhu iba 800 metrov sa nachádzajú tri moderné supermarkety (Edeka, Aldi, Lidl), ktoré zabezpečia najvyššiu kvalitu života a krátke vzdialenosti. Welzheim je vďaka svojej polohe v Národnom parku Schwäbisch-Fränkischer Wald rajom pre outdoorové aktivity – turistika, beh, cyklistika, vodné športy a oveľa viac sú možné v “šampanském vzduchu”. Ponuku dopĺňa pestrá klubová scéna s dobre vybudovanou infraštruktúrou pre mnohé športy. Welzheim, s približne 11 500 obyvateľmi, je dostupný vďaka kvalitnej autobusovej doprave a autom zo Schorndorfu za cca 15 minút. Odtiaľ môžete využiť vynikajúce železničné spojenie do Štutgartu.
• Austroflamm drevený krb v obývacej izbe ponúka príjemné teplo. Je vybavený systémom Heat-Memory (pamäťový kameň), ktorý zabezpečuje rýchle absorbovanie tepla a jeho dlhodobé uvoľňovanie.
• Južný balkón poskytuje ideálnu ochranu pred slnkom vďaka dvom pevne namontovaným markízam.
• Velux plastové strešné okná s Thermo-Star zasklením majú vo vnútri žalúzie a vonkajšie markízy s ochranou proti teplu.
• Okná a priechodové dvere na balkón v obývačke a kancelárii majú vysokoizolačné trojité tepelnoochranné zasklenie. Dvere sú navyše vybavené dodatočnými protihmyzovými otočnými dverami.
• Dva pivničné priestory patriace bytu majú rozlohu 18 m².
• Ponuku dopĺňa praktická garáž, ktorá je vybavená osvetlením aj elektrickou prípojkou.
Parametre nehnuteľnosti
| Vek | Nad 50 rokov |
|---|---|
| Dispozícia | 4+1 |
| Číslo inzerátu | 1002592 |
| Úžitková plocha | 89 m² |
| Stav | Dobrý |
|---|---|
| Poschodie | 2. poschodie |
| PENB | E - Nehospodárne |
| Cena za jednotku | 3 191 € / m2 |
Čo táto nehnuteľnosť ponúka?
| Balkón | |
| Garáž |
| Pivnica | |
| MHD 2 minúty pešo |
V okolí nehnuteľnosti nájdete
Stále hľadáte to pravé?
Nastavte si strážneho psa. Ponuky vybrané na mieru dostanete súhrnne 1× denne e-mailom. S Premium profilom máte po ruke rovno 5 strážcov a keď sa niečo objaví, informujú vás obratom.
























