
Prenájom kancelárie • 380 m² bez realitkyDieselstr. 10, , Bádensko-Wurttembersko
Dieselstr. 10, , Bádensko-WurttemberskoMHD 4 minúty pešo • Výťah • ParkovanieNa prenájom sú k dispozícii 2 poschodia v exkluzívnej kancelárskej nehnuteľnosti v obchodnej štvrti Ditzingen tesne pri centre, ktorá sa vyznačuje vysokokvalitným a moderným vybavením.
Vďaka rozsiahlemu vybaveniu ponúkajú tieto dve poschodia možnosť ihneď sa nastahať a začať pracovať. K dispozícii je špičkové sieťové káblovanie, WLAN a na požiadanie aj pracovné počítače.
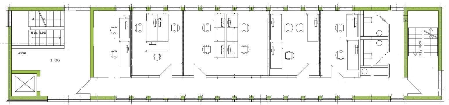
Obzvlášť je na slovu kvalitný nábytok značky USM Haller, ktorý si môžete podľa potreby prevziať – čo je jasnou výhodou pre vaše zariadenie aj pracovný komfort. Rozloženie kancelárskych priestorov podporuje pokojné pracovné prostredie.
Pracoviská zakreslené v pôdoryse sú len príkladom. Rozloženie môže byť upravené individuálne.
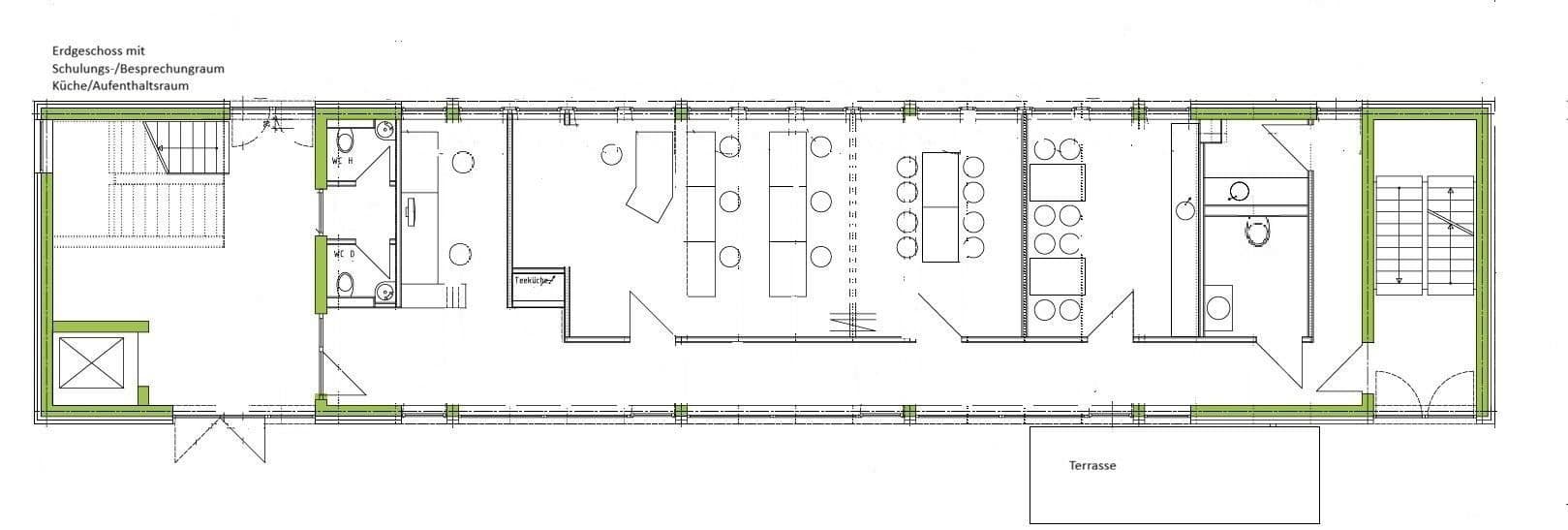
Podlahy sú vybavené kvalitnou kobercovanou krytinou a dlažbou, čím vytvárajú profesionálnu, modernú atmosféru. Plne vybavená kuchyňa v prízemí, ako aj ďalšia čajovňa v prízemí a v 1. poschodí sú vám k dispozícii a dokonale dopĺňajú celkovú ponuku. K odpočívaciemu priestoru v prízemí náleží terasa vedúca do upravenej záhrady.
V prízemí sa nachádza veľká moderná a plne vybavená školiteľská/konferenčná miestnosť, ktorú je možné rozšíriť variabilnou priečkou a ktorá je vybavená modernou online konferenčnou technikou.
Vášich hostí privítate v reprezentatívnej recepcii.
Priamo pred budovou sa nachádzajú parkovacie miesta pre automobily aj kryt pre bicykle, čo uľahčuje prístup zamestnancom a návštevníkom.
Táto kancelárska plocha vám ponúka okamžité riešenie, moderné a funkčne navrhnuté. Ekologická a udržateľná vďaka využitiu geotermálnej energie, fotovoltaiky a spracovaniu dažďovej vody.
Nachádza sa v obchodnej štvrti Ditzingen blízko centra s optimálnym spojením na verejnú dopravu a diaľnicu.
Vysokokvalitné, moderné vybavenie s prehľadným a jednotným dizajnom.
Špičkové elektronické vybavenie s BUS systémami a najnovšou IT technikou.
Moderná a vybavená školiteľská/konferenčná miestnosť, ktorú je možné rozšíriť variabilnou priečkou.
Dve konferenčné miestnosti s veľkými obrazovkami pre školenia alebo videokonferencie.
Kompletné dátové káblovanie v súlade s najnovšími technológiami umožňuje okamžité nasadenie práce.
Na požiadanie ponúkame profesionálne spravovanie vašej siete a ďalšie IT služby.
Moderné a rozsiahle bezpečnostné systémy na ochranu budovy aj pozemku.
Vybavené nábytkom USM Haller, ktorý je možné v prípade potreby aj prenajať.
Plne vybavená kuchyňa plus dve plne vybavené kávové zóny v prízemí a 1. poschodí.
Veľké terasové priestory v upravenej záhrade.
Podlahy s kvalitnými koberčekmi a dlažbou.
Výtah.
Parkovacie miesta priamo pred budovou je možné si tiež prenajať.
Priestor pre bicykle.
Parametre nehnuteľnosti
| Stav | Veľmi dobrý |
|---|---|
| Plocha kancelárie | 380 m² |
| Číslo inzerátu | 1002412 |
|---|---|
| Cena za jednotku | 0 € / m2 |
Čo táto nehnuteľnosť ponúka?
| Balkón | |
| Parkovanie | |
| Terasa |
| Výťah | |
| MHD 4 minúty pešo |
V okolí nehnuteľnosti nájdete
Stále hľadáte to pravé?
Nastavte si strážneho psa. Ponuky vybrané na mieru dostanete súhrnne 1× denne e-mailom. S Premium profilom máte po ruke rovno 5 strážcov a keď sa niečo objaví, informujú vás obratom.















