Predaj domu 4+1 • 170 m² bez realitky, Dolné Sasko
, Dolné SaskoMHD 2 minúty pešo • ParkovanieTento pôvabný dom s doškovou strechou sa nachádza v srdci Luhmühlen.
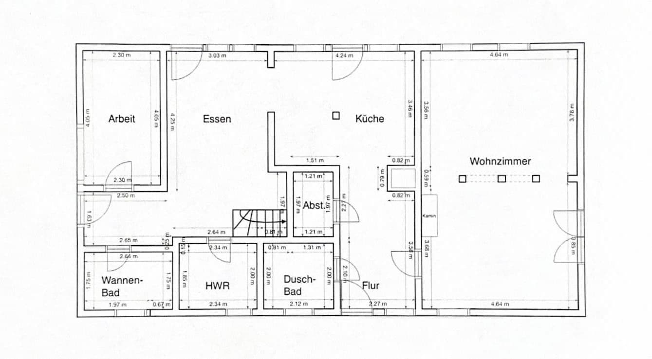
V roku 2007 bol dom z dvojdomu premenený na rodinný dom. Pôdorys bol zmenený a vytvorené boli veľké, rodinne príjemné miestnosti.
V centre domu sa nachádza jeho srdce – veľká obývacia kuchyňa. Kuchyňa v jemne zelenej rustikálnej výbave bola nová inštalovaná v roku 2018 a ponúka veľa úložného priestoru. Odtiaľto sa dostanete priamo na južnú terasu a do peknej záhrady.
Kuchyňa je vybavená sporákom s indukčnou doskou, umývačkou riadu a chladničkou. Práčovňa ponúka dostatočný priestor pre mrazák, práčku a sušičku.
V prízemí sa nachádza nádherná široká podlaha z dubových dosiek, s výnimkou kúpeľní a obývacej izby (dlažba a laminát). V celom prízemí, s výnimkou obývacej izby, je podlahové kúrenie.
Sprchovňa aj vaňa sú svetlé a moderné.
Na šikmej strane smerom na západ sa nachádza veľká, útulná obývacia izba s pecou. Čiastočne boli inštalované až od podlahy siahajúce okná.
Ďalšia malá izba, momentálne slúžiaca ako šatník, sa nachádza smerom na východ.
Cez pekné drevené schody sa dostanete do poschodia. Tu nájdete ešte dve ďalšie priestranné miestnosti a veľkorysý priechod. Na poschodiach sú nainštalované radiátory.
V záhrade sa nachádza drevený domček pre saunu, ktorý bol postavený približne pred 7 rokmi.
Celá nehnuteľnosť je ohradená. Na streche je bleskozvod.
Na začiatku roku 2023 bol dom dodatočne vybavený alarmovým systémom. Na konci roku 2023 bol inštalovaný nový plynový kotol. Na začiatku roku 2024 bol postavený nový veľký carport, ktorý ponúka 3 parkovacie miesta, malú miestnosť pre odpadkové nádoby a veľkú miestnosť pre záhradné náradie a záhradný nábytok. Na začiatku roku 2025 bol doškový strešný kryt upravený a opravený.
Dom nie je chránený ako pamätihodnosť.
Luhmühlen je malá vidiecka lokalita, ktorá patrí do obce Salzhausen. Samotné centrum obce je vzdialené približne 2 km a ponúka množstvo nákupných možností, niekoľko malých obchodov, lekárov aj lekárne. Vonkajší bazén sa nachádza taktiež v blízkosti a je dostupný aj na bicykli.
Salzhausen disponuje školským centrom, v ktorom nájdete základnú aj strednú školu a gymnázium.
Pre jazdcov je v Luhmühlen k dispozícii AZL a niekoľko ďalších stajní, ktoré sú rovnako dostupné aj na bicykli.
Parametre nehnuteľnosti
| Vek | Nad 50 rokov |
|---|---|
| Stav | Veľmi dobrý |
| Číslo inzerátu | 1002208 |
| Plocha pozemku | 943 m² |
| Cena za jednotku | 3 706 € / m2 |
| Dostupné od | 15. 11. 2025 |
|---|---|
| Dispozícia | 4+1 |
| Úžitková plocha | 170 m² |
| Celkové poschodia | 1 |
Čo táto nehnuteľnosť ponúka?
| Parkovanie | |
| Terasa |
| MHD 2 minúty pešo |
V okolí nehnuteľnosti nájdete
Stále hľadáte to pravé?
Nastavte si strážneho psa. Ponuky vybrané na mieru dostanete súhrnne 1× denne e-mailom. S Premium profilom máte po ruke rovno 5 strážcov a keď sa niečo objaví, informujú vás obratom.
























