
Predaj domu 4+1 • 128 m² bez realitkyEisenbahnstraße 4a, , Porýnie-Falcko
Eisenbahnstraße 4a, , Porýnie-FalckoMHD 3 minúty pešo • Parkovanie • GarážBei diesem Angebot handelt es sich um ein kompaktes, vollständig saniertes und sehr gemütliches Einfamilienhaus in Steinwenden. Das Anwesen eignet sich für einen Single-Haushalt oder maximal zwei Personen.
V tejto ponuke ide o kompaktný, kompletný zrekonštruovaný a veľmi útulný rodinný dom v obci Steinwenden. Nehnuteľnosť je vhodná pre jednu domácnosť alebo maximálne pre dve osoby.
In den vergangenen Jahren wurde das Objekt stetig saniert und befindet sich heute in einem sehr guten und gepflegten Zustand. Die an dem Objekt durchgeführten Arbeiten finden Sie in der separaten Sanierungsübersicht.
V uplynulých rokoch bola nehnuteľnosť priebežne renovovaná a dnes sa nachádza vo veľmi dobrom a udržiavanom stave. Informácie o vykonaných prácach nájdete v samostatnom prehľade rekonštrukcie.
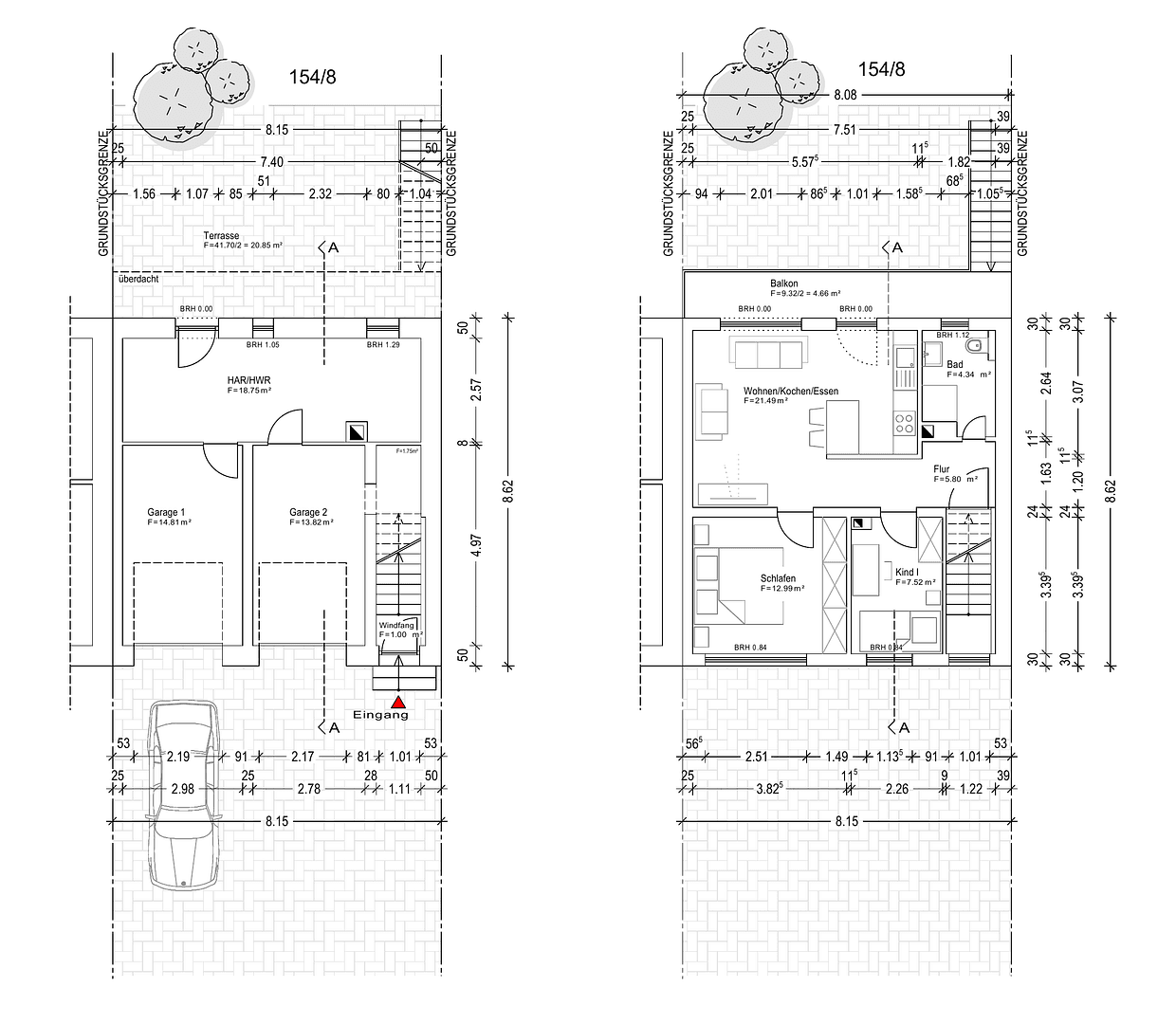
Die Aufteilung des Anwesens ist wie folgt:
Rozloženie nehnuteľnosti je nasledovné:
Erdgeschoss - 70qm:
- Garage 1
- Garage 2
- Abstellraum
- Hauswirtschaftsraum
- Terrasse mit Treppe zum Balkon (1.OG)
Prízemie - 70 m²:
• Garáž 1
• Garáž 2
• Úložná miestnosť
• Domácnostná miestnosť
• Terasa so schodiskom vedúcim na balkón (1. poschodie)
Obergeschoss - 58qm:
- Wohnen/Essen/Kochen
- Balkon
- Schlafzimmer
- Büro
- Bad/Duschbad
- Flur
- Windfang
Poschodie - 58 m²:
• Obývacia izba / jedáleň / kuchyňa
• Balkón
• Spálňa
• Kancelária
• Kúpeľňa / sprchová miestnosť
• Chodba
• Vstupná hala
Dachgeschoss:
- Speicher mit Bodentreppe (nicht ausgebaut)
Podkrovie:
• Sklad s podlahovým schodiskom (nezetavaný)
Das Objekt liegt in der Ortsgemeinde Steinwenden. Steinwenden gehört zur Verbandsgemeinde Ramstein-Miesenbach und zählt ca. 2.500 Einwohner.
Nehnuteľnosť sa nachádza v obci Steinwenden. Steinwenden patrí do združenia obcí Ramstein-Miesenbach a má približne 2 500 obyvateľov.
Im Ort gibt es einen Kindergarten und eine Grundschule. Weiterführende Schulen sind im benachbarten Ramstein-Miesenbach sehr gut erreichbar.
V obci nájdete materskú školu a základnú školu. Stredné školy sú vo veľmi dobrom dosahu v susednom Ramstein-Miesenbach.
Eine Sparkassenfiliale, eine Filiale der Volksbank Glan-Münchweiler, zwei Bäckereien, sowie ein kleiner Gastronomiebetrieb sind in unmittelbarer Nähe vorhanden.
V bezprostrednej blízkosti sa nachádza pobočka Sparkassenbanky, pobočka Volksbank Glan-Münchweiler, dve pekárne a malý gastronomický prevádzkovateľ.
Der Anschluss an den öffentlichen Personen- und Nahverkehr ist durch den eigenen Zugbahnhof sehr gut.
Spojenie s verejnou osobnou a regionálnou dopravou je vďaka vlastnej železničnej stanici veľmi dobré.
Die Objektadresse des Objekts lautet: Eisenbahnstr. 4a, 66879 Steinwenden.
Adresa nehnuteľnosti znie: Eisenbahnstr. 4a, 66879 Steinwenden.
Für das Objekt liegt ein Mietangebot über 1.500,00 EUR/kalt vor.
Na nehnuteľnosť je k dispozícii ponuka prenájmu vo výške 1 500,00 EUR (bez zahrnutých nákladov na energie).
Aufgrund der sehr guten Makro- und Microlage eignet sich die Immobilie auch hervorragend als ein Kapitalanlageobjekt.
Vďaka veľmi dobrej makro- a mikrolokácii je nehnuteľnosť aj vynikajúcou investičnou príležitosťou.
Ein unverbindliches Finanzierungsangebot kann über unser Partnerbüro gerne angeboten werden:
Nezáväznú ponuku financovania vám môže ponúknuť naše partnerské kancelárie:
Finanzierungsbeispiel:
Finančný príklad:
300.000 EUR - Kaufpreis
300 000 EUR - Kúpna cena
19.500 EUR - Erwerbsnebenkosten
19 500 EUR - Vedľajšie náklady na obstaranie
319.500 EUR - Kaufpreis inkl. Erwerbsnebenkosten
319 500 EUR - Kúpna cena vrátane vedľajších nákladov na obstaranie
49.500 EUR - Eigenkapital
49 500 EUR - Vlastný kapitál
270.000 EUR - Darlehenssumme
270 000 EUR - Výška úveru
3,85 % - Sollzinssatz
3,85 % - Úroková sadzba
2,00 % - Tilgung
2,00 % - Splátka istiny (amortizácia)
5,85 % - Annuität
5,85 % - Anuita
1.316,25 EUR - Rückzahlungsrate/Darlehensrate
1 316,25 EUR - Mesačná splátka/úverová splátka
Laufzeit der Finanzierung: 10 Jahre
Doba financovania: 10 rokov
Restschuld nach Sollzinsbindung: 204.259,01 EUR
Zostávajúci zostatok po viazaní úrokovej sadzby: 204 259,01 EUR
Zinsen und Gebühren insgesamt: 92.209,01 EUR
Úroky a poplatky spolu: 92 209,01 EUR
Gesamtaufwand: 362.209,01 EUR
Celkové náklady: 362 209,01 EUR
Effektiver Jahreszinssatz: 3,919%
Efektívna ročná úroková sadzba: 3,919%
Parametre nehnuteľnosti
| Vek | Nad 50 rokov |
|---|---|
| Stav | Po rekonštrukcii |
| Číslo inzerátu | 1002170 |
| Úžitková plocha | 128 m² |
| Celkové poschodia | 2 |
| Dostupné od | 10. 4. 2026 |
|---|---|
| Dispozícia | 4+1 |
| PENB | B - Veľmi úsporné |
| Plocha pozemku | 306 m² |
| Cena za jednotku | 2 343,75 € / m2 |
Čo táto nehnuteľnosť ponúka?
| Balkón | |
| Garáž | |
| MHD 3 minúty pešo |
| Pivnica | |
| Parkovanie | |
| Terasa |
V okolí nehnuteľnosti nájdete
Stále hľadáte to pravé?
Nastavte si strážneho psa. Ponuky vybrané na mieru dostanete súhrnne 1× denne e-mailom. S Premium profilom máte po ruke rovno 5 strážcov a keď sa niečo objaví, informujú vás obratom.




































