Predaj nebytového priestoru • 2000 m² bez realitky, Hesensko
, HesenskoMHD 2 minúty pešoNa predaj od súkromného vlastníka, * BEZ PROVÍZIE *
k dispozícii je multifunkčný obytný a obchodný objekt v priemyselnej zóne Dieburg.
Či už ako sklad, internetový obchod, autoopravňa, remeslá, maloobchod, gastro, šport, rekreačné zariadenie atď., tu je množstvo možností. Máte tu priestor na rozvoj. Parkovacie miesta sú hojne k dispozícii. Navyše tento objekt ponúka aj možnosti bývania, takže práca a bývanie sú zlúčené. Dom nie je prenajatý a bude odovzdaný ako voľný.
Veľkosť pozemku: 2000 m²
Druh stavby: Ytong, rok dokončenia: 1985
Hala: so sekčnými valnými dverami (4 x 3,7 m), strop je momentálne zavesený,
osvetlená výška: cca 3,67 m, výška strechy pri okraji: cca 4,87 m, výška hrebeňa: cca 5,02 m
Bez pivnice
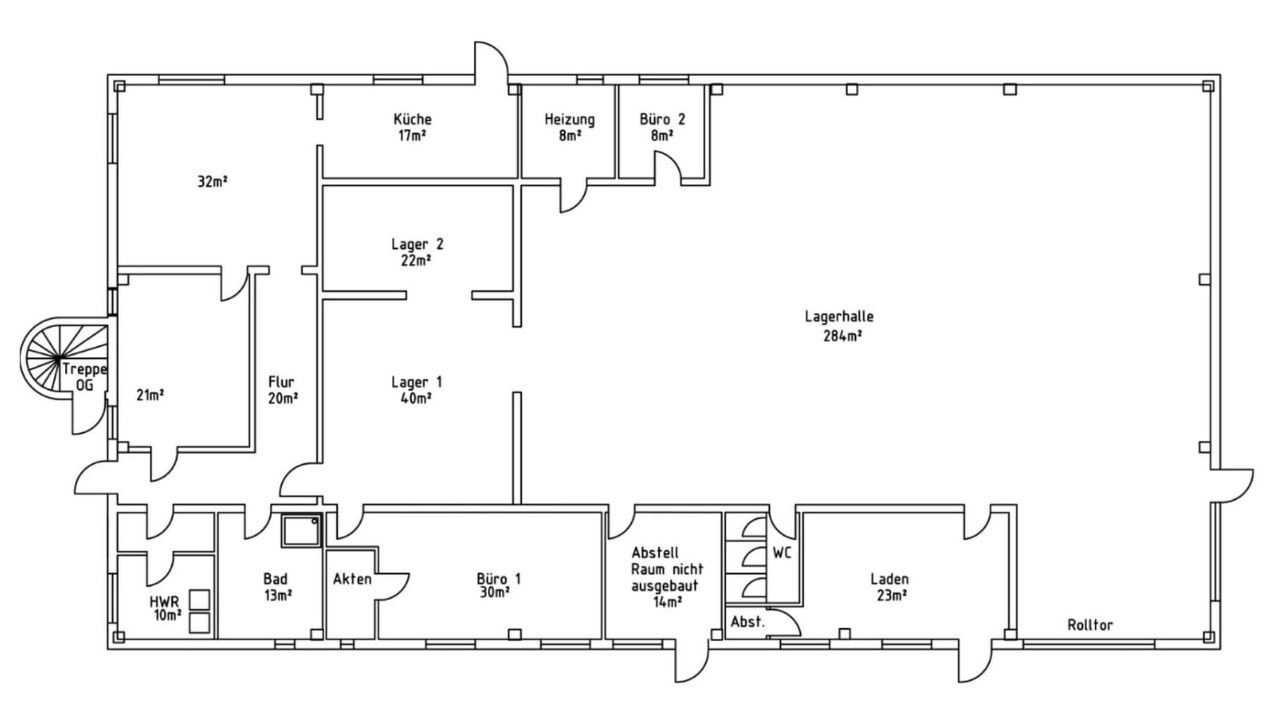
Celková skladová plocha: 346 m² – vykurovaná
Kancelária: 30 m²
Miestnosť pre personál (prestávková miestnosť): 7,5 m²
Toalety pre personál
Miestnosť kotla
Predajná miestnosť: 23 m²
Úložná miestnosť: 15 m² (nevybudovaná)
Doplnkovo:
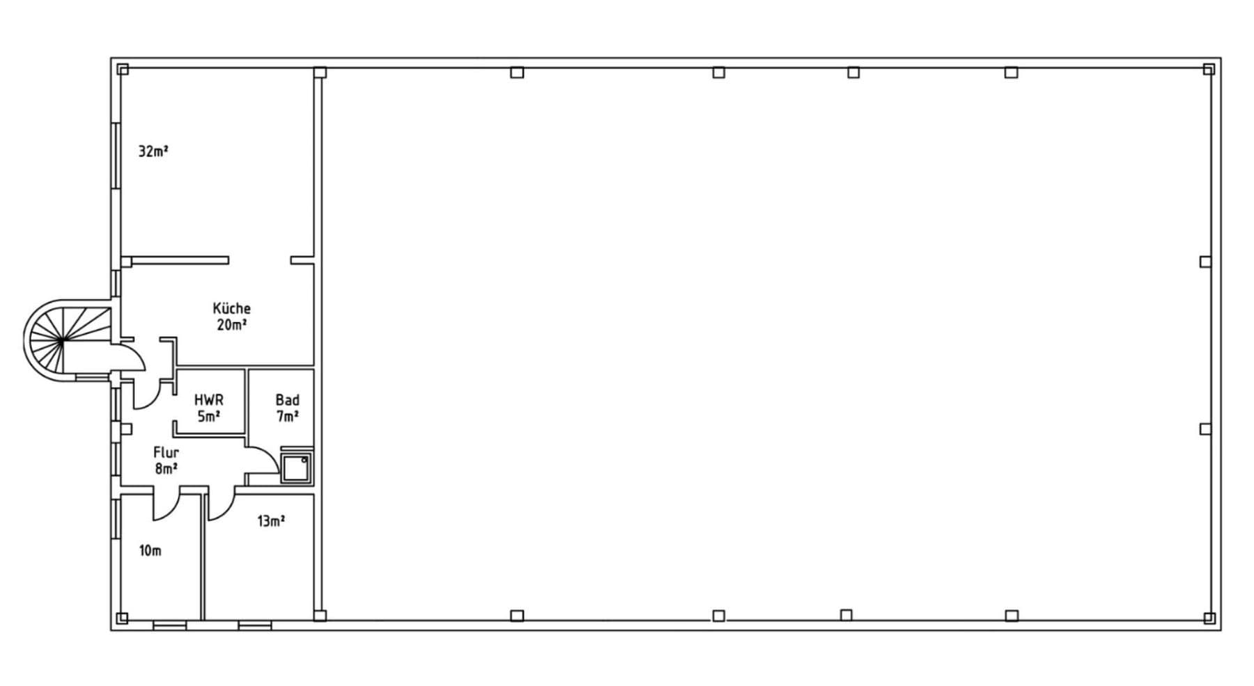
- Suterén: kancelárske priestory s kuchyňou, WC, oddychovými miestnosťami, prízemie cca 110 m²
- Nadzemie: byt s kuchyňou, kúpeľňou s WC, kanceláriou, cca 95 m²
Pozemok je úplne oplotený s posuvnou bránou s dĺžkou 6 m
cca 26 parkovacích miest pre autá
Zadná časť pozemku sa momentálne využíva ako záhrada (cca 480 m²)
Prípadná ďalšia výstavba môže byť možná
Tekutý plynový nádrž s kapacitou 4200 litrov
Kúrenie: plynová kotolňa z 08/2010 so systémom centrálneho zásobovania teplou vodou (200 L),
spotreba energie cca 89 kWh/m²
Novinka v rokoch 2024/25: prívod vody a 2x balkónové elektrárne
Energetický preukaz je k dispozícii
Všetky údaje uvádzame bez záruky správnosti a úplnosti.
Podrobné expozé s adresou objektu a kontaktnými údajmi obdržíte po doručení vašich kompletných kontaktných údajov.
Výborná dopravná dostupnosť v Dieburg, priemyselná zóna Sever, priamo s dobrou prístupovou cestou.
Pred podaním dopytu prosím preverte, či je objekt v zásade vhodný pre vaše účely a či vám môže byť schválené financovanie pre komerčný majetok.
Prehliadky vnútorných priestorov sú možné len po predložení aktuálneho potvrdenia o financovaní.
Prosím o pochopenie.
Parametre nehnuteľnosti
| Vek | Nad 50 rokov |
|---|---|
| Číslo inzerátu | 1002169 |
| Plocha pozemku | 2 000 m² |
| Stav | Dobrý |
|---|---|
| Plocha nebytového priestoru | 2 000 m² |
| Cena za jednotku | 445 € / m2 |
Čo táto nehnuteľnosť ponúka?
| Bezbariérový prístup | |
| Terasa |
| MHD 2 minúty pešo |
V okolí nehnuteľnosti nájdete
Stále hľadáte to pravé?
Nastavte si strážneho psa. Ponuky vybrané na mieru dostanete súhrnne 1× denne e-mailom. S Premium profilom máte po ruke rovno 5 strážcov a keď sa niečo objaví, informujú vás obratom.














