
Prenájom bytu 2+1 • 66 m² bez realitkyRobensstraße XX, , Severné Porýnie - Westfálsko
Robensstraße XX, , Severné Porýnie - WestfálskoMHD 2 minúty pešoMesačné nájomné840 €
+ Poplatky za služby195 €
+ Vratná kaucia2 500 €
Preložené AI
Renovovaný dvojizbový byt v blízkosti centra Aachenu.
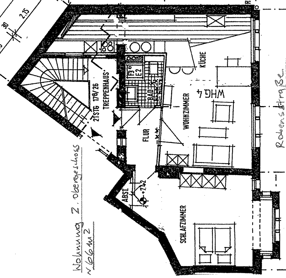
Byt sa nachádza v nádhernom secesnom staršej budove z predposledného storočia. Objekt disponuje približne 66 m² obytného priestoru a nachádza sa v druhej nadzemnej vrstve.
Byt obsahuje nasledujúce miestnosti:
obývaciu izbu, spálňu, kuchyňu, predsieň a sprchovaciu kúpeľňu.
Žiadny energetický preukaz z dôvodu ochrany pamiatok.
Telefonická dostupnosť je možná na čísle 0151 18405855 od pondelka do piatku od 8:30 do 17:00.
Parametre nehnuteľnosti
| Stav | Dobrý |
|---|---|
| Poschodie | 2. poschodie |
| Úžitková plocha | 66 m² |
| Dispozícia | 2+1 |
|---|---|
| Číslo inzerátu | 1002095 |
| Cena za jednotku | 13 € / m2 |
Čo táto nehnuteľnosť ponúka?
| Pivnica |
| MHD 2 minúty pešo |
V okolí nehnuteľnosti nájdete
MHDUngarnplatz (Carolus Thermen)
🚶 193 m (2 min)
PoštaPostamt & Postdienste
🚘 2 367 m (7 min)
ObchodBack with Mo
🚶 217 m (3 min)
BankaSparkasse Aachen
🚶 289 m (3 min)
ReštauráciaKruathai
🚶 260 m (3 min)
LekáreňGermania Apotheke
🚶 297 m (4 min)
ŠkolaKatholische Grundschule Passstraße
🚶 154 m (2 min)
Materská školaKindertagesstätte Passstraße 25
🚶 79 m (1 min)
ŠportoviskoSportstudio Samurai
🚶 372 m (4 min)
Ihrisko
🚶 132 m (2 min)
Vzdialenosť k:
Mesačné nájomné840 €
+ Poplatky za služby195 €
+ Vratná kaucia2 500 €
Stále hľadáte to pravé?
Nastavte si strážneho psa. Ponuky vybrané na mieru dostanete súhrnne 1× denne e-mailom. S Premium profilom máte po ruke rovno 5 strážcov a keď sa niečo objaví, informujú vás obratom.










