Prenájom bytu 3+1 • 75 m² bez realitkyKirchstraße 3, , Bádensko-Wurttembersko
Kirchstraße 3, , Bádensko-WurttemberskoMHD 5minút pešo • ParkovanieDiese einmalig schöne Wohnung befindet sich im rückwärtig gelegenen EG eines zentral in Langenargen gelegenen Mehrfamilienhauses.
Tento jedinečne krásny byt sa nachádza v zadnej časti prízemia centrálne umiestneného viacfamilijného domu v Langenargen.
Das Gebäude wurde 2022 intern wie extern komplett energetisch nach KfW-Standard saniert und ausgebaut (KfW 70 Effizienzhaus mit Luft‑Wärmepumpe).
Budova bola v roku 2022 kompletne energeticky zrekonštruovaná a prestavaná vo vnútri aj exteriéri podľa štandardu KfW (KfW 70 efektívny dom s vzduchovým tepelným čerpadlom).
Die Nebenkosten sind auf Grund der umfangreichen energetischen Sanierung äußerst gering.
Prevádzkové náklady sú vďaka rozsiahlej energetickej rekonštrukcii mimoriadne nízke.
Das Gesamtobjekt besteht aus einem Assemblee eines historischen Fachwerkhauses mit einem modernen und zeitgemäßen Neubau.
Celkový objekt tvorí spojenie historického domu s malovanou konstrukciou a modernej, súčasnej novostavby.
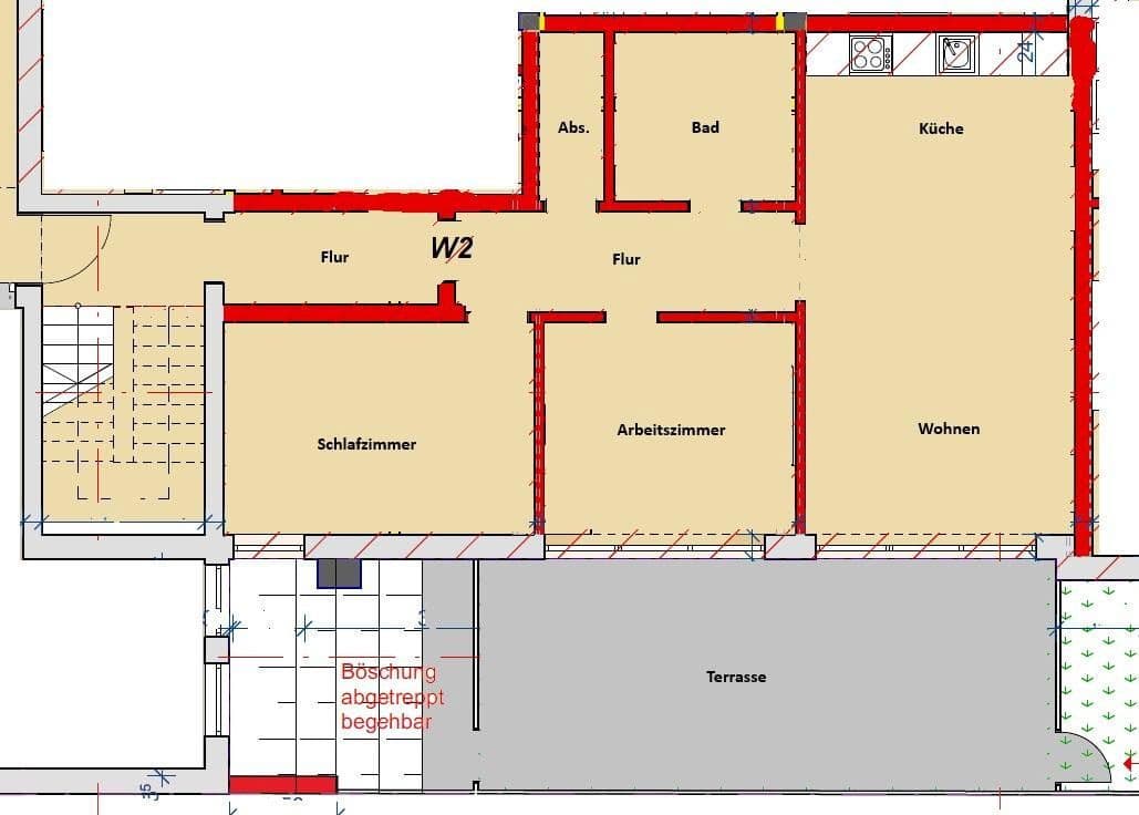
Die Wohnung besticht durch ihre einmalige Lage, die Ausstattung und große Terrasse, die sich vor dem Wohn- und Schlafzimmer befindet.
Byt vyniká svojou jedinečnou polohou, vybavenosťou a veľkou terasou, ktorá sa nachádza pred obývacou izbou a spálňou.
Zudem ist das Objekt barrierefrei und kann ebenerdig ohne Stufen begangen werden.
Okrem toho je objekt bezbariérový a je prístupný na rovine bez schodov.
Die Immobilie liegt im Herzen von Langenargen nur ca. 150m vom Gondelhafen und der beliebten Ufer- und Badepromenade entfernt.
Nehnuteľnosť sa nachádza v srdci Langenargen, iba približne 150 m od gondolového prístavu a obľúbenej pobrežnej a kúpeľnej promenády.
Fußläufig sind es keine 2 Minuten zum Baden, Surfen, Kaffee trinken oder Abendessen am See.
Pešo to trvá len 2 minúty na kúpanie, surfovanie, kávu alebo večeru pri jazere.
Restaurants, Bars und der Club im Schloss Montfort sind direkt am See innerhalb von 5 Gehminuten zu erreichen.
Reštaurácie, bary a klub v zámku Montfort sú priamo pri jazere a do 5 minút pešo.
Vom Anlegesteg aus legen mehrfach am Tag Schiffe der Weißen Flotte ab.
Zo pristávacej móla denne viackrát odplouvajú lode bielej flotily.
Der örtliche Bahnhof in ca. 300m Entfernung ermöglicht Ihnen direkt vor der Haustüre die Anbindung an das Schienennetz der Deutschen Bahn mit 10 Minuten nach Friedrichshafen oder 15 Minuten nach Lindau.
Miestna železničná stanica, vzdialená približne 300 m, vám umožní priamo pred dverami prístup k sieti nemeckej Železnice (Deutsche Bahn), s 10 minútami do Friedrichshafenu alebo 15 minútami do Lindau.
Die moderne 3-Zimmerwohnung mit ihren gut geschnittenen 90m² Nutzfläche ist innen und außen auf höchstem Niveau ausgestattet.
Moderný 3-izbový byt s dobre usporiadanou užitnou plochou 90 m² je vybavený na najvyššej úrovni, ako vo vnútri, tak aj z vonkajšej strany.
Neben einer vollflächigen Fußbodenheizung bestechen die moderne Einbauküche, das elegante Bad mit Badewanne und Regendusche sowie die große Terrasse.
Okrem plne pokrývajúceho podlahového kúrenia vyniká moderná vstavaná kuchyňa, elegantná kúpeľňa s vaňou a sprchou s dažďovým efektom, ako aj veľká terasa.
Alle Materialien sind hochwertig gewählt und verarbeitet.
Všetky materiály boli vybrané a spracované vo vysokej kvalite.
Haptisch ansprechende und strapazierfähige Vinylböden, anthrazitfarbene Badfliesen sowie Hochglanz Küchenfronten gehören ebenso zu den luxuriösen Ausstattungsmerkmalen wie die 3-fach verglasten und bodentiefen Terrassenfenster der Außenterrasse.
Hmatateľne príjemné a odolné vinylové podlahy, antracitové obklady kúpeľne a vysoko lesklé kuchynské fronty patria medzi luxusné vybavenie, rovnako ako trojitým zasklené a podlahové okná na vonkajšej terase.
In allen Räumen sind Deckenspots eingebaut, so dass Sie sich um keinerlei Leuchten kümmern müssen. Die Spots sind zudem dimmbar.
Vo všetkých miestnostiach sú zabudované stropné svetlá, takže sa nemusíte starať o žiadne dodatočné osvetlenie. Tieto svetlá sú navyše stmievateľné.
Die Küche besticht zudem mit hochwertigen Einbaugeräten in Hochglanz Schwarz.
Kuchyňa zároveň pôsobí vďaka vysoko kvalitným vstavaným spotrebičom v elegantnej čiernej úprave.
Am frühen Abend lädt die 20m² große Außenterrasse zum Entspannen sowie zum gemeinsamen Grillen mit Freunden ein.
Ranný večer vás 20 m² veľká vonkajšia terasa pozýva na oddych aj spoločné grilovanie s priateľmi.
Erholen Sie sich in Ihrer eigenen großen Freiluftoase bevor Sie die 100m zum See laufen um sich vom anstrengenden Tag bei einem Bad abzukühlen.
Oddýchnite si vo svojej vlastnej veľkej vonkajšej oáze, než sa 100 m prejdete k jazeru, kde sa po náročnom dni osviežite kúpaním.
Zur Wohnung gehört zudem ein Stellplatz vor dem Haus sowie Abstellmöglichkeiten im Hausinternen Fahrradraum.
Ku bytu patrí aj parkovacie miesto pred domom a možnosť uskladnenia v internom cyklistickom priestore.
Für eine verbindliche Vermietung benötige ich von Ihnen folgende Unterlagen:
Na uzatvorenie nájomnej zmluvy potrebujem od vás nasledujúce dokumenty:
1. Eine unterschriebene Mieterselbstauskunft
1. Podpísané samo-vyhlásenie nájomcu
2. Aktuelle SCHUFA Auskunft
2. Aktuálnu SCHUFA správu
3. Letzten 3 Gehaltsnachweise
3. Posledné 3 výplatové pásky
***** BESICHTIGUNGSTERMINE *****
***** TERMÍNY PREHLIADKY *****
Bitte melden Sie sich zur Vereinbarung eines Besichtigungstermins bei mir.
Prosím, ozvite sa mi na dohodnutie termínu prehliadky.
Ein Besichtigungstermin muss auch mit den aktuellen Mietern abgestimmt werden, weshalb die Terminauswahl etwas eingeschränkter sein wird.
Termín prehliadky musí byť dohodnutý aj s aktuálnymi nájomníkmi, preto bude výber termínov o niečo obmedzený.
Wir versuchen Termine am Wochenende oder Feierabend nach 18 Uhr zu bevorzugen.
Snažíme sa uprednostňovať termíny cez víkend alebo po pracovnej dobe, po 18. hodine.
Auf Ihre Anfrage freue ich mich bereits,
Už sa teším na vašu správu,
mit freundlichen Grüßen
S priateľským pozdravom
P. Frey
Parametre nehnuteľnosti
| Vek | Nad 50 rokov |
|---|---|
| Stav | Veľmi dobrý |
| Číslo inzerátu | 1002038 |
| Úžitková plocha | 75 m² |
| Dostupné od | 1. 6. 2026 |
|---|---|
| Dispozícia | 3+1 |
| PENB | A - Mimoriadne úsporné |
| Cena za jednotku | 19 € / m2 |
Čo táto nehnuteľnosť ponúka?
| Bezbariérový prístup | |
| MHD 5 minút pešo |
| Parkovanie | |
| Terasa |
V okolí nehnuteľnosti nájdete
Stále hľadáte to pravé?
Nastavte si strážneho psa. Ponuky vybrané na mieru dostanete súhrnne 1× denne e-mailom. S Premium profilom máte po ruke rovno 5 strážcov a keď sa niečo objaví, informujú vás obratom.














