
Predaj domu 6+1 • 110 m² bez realitkyVeldener Str. 116 München Pasing Bayern 81241
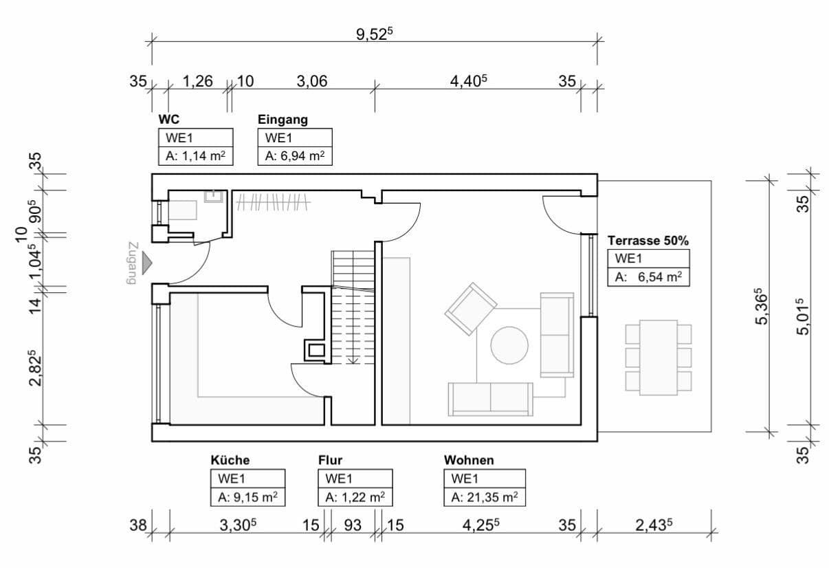
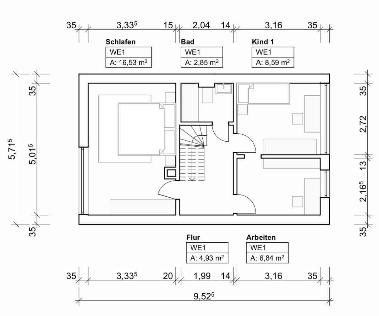
Na predaj je ponúkaný očarujúci radový dom v rodinne priaznivej štvrti Münchenu-Pasing, konkrétne na ulici Veldener Straße 116. Dom z roku 1961 ponúka obytnú plochu približne 110 m², rozdelenú do prízemia, nadzemia a zrekonštruovaného podkrovia, ako aj užitnú plochu okolo 41 m² v suteréne. Pozemok má celkovo 173 m².
Dom je už prázdny a je tak okamžite k dispozícii.
Dom bol postavený masívnou konštrukciou a disponuje klasickým rozložením izieb, ktoré ponúka priestor pre obývačku, kuchyňu, 5 spální, kúpeľňu a návštevné WC. Je potrebné zdôrazniť, že strecha bola v roku 2017 úplne nová. Okrem toho boli všetky okná už vymenené za plastové a vstupné dvere boli nahradené plastovými dverami s viacerým zamykacím mechanizmom.
Kúrenie domu zabezpečuje centrálne kúrenie z roku 1997 (naftou).
Samostatná garáž priamo pred domom je k dispozícii za prídavných 20 000,00 €. Celková kúpna cena za dom a garáž tak činí 749 000,00 €. Kúpna zmluva na garáž však nie je povinná!
Dom kupujete priamo od majiteľa a ušetríte si províziu sprostredkovateľa, ktorá by zvyčajne predstavovala 3,57 % z kupnej ceny (26 739,30 €).
Teším sa na Vašu správu:
M. Messner
+49 176 55981390
Poloha v čistej rezidenčnej oblasti zaujme vynikajúcou dopravnou infraštruktúrou Münchenu. V pešej vzdialenosti sa nachádzajú možnosti nákupov, ako sú Pasing Arcaden, školy, predškolskej zariadenia a zelené plochy, ako napríklad Westbad. Doprava je prvotriedna – stanica S-Bahn Pasing je vzdialená len pár minút a rýchlo Vás spojí s centrom mesta, zatiaľ čo blízkosť k Landsberger Straße a diaľnici A96 je pre vodičov praktická. Výborná lokalita s výhodou etablovaného susedstva v tzv. rakúskom štvrti.
Parametre nehnuteľnosti
| Vek | Nad 50 rokov |
|---|---|
| Stav | Dobrý |
| Číslo inzerátu | 1001777 |
| Úžitková plocha | 110 m² |
| Cena za jednotku | 6 627 € / m2 |
| Dostupné od | 16. 3. 2026 |
|---|---|
| Dispozícia | 6+1 |
| PENB | C - Hospodárne |
| Plocha pozemku | 174 m² |
Čo táto nehnuteľnosť ponúka?
| Pivnica | |
| MHD 2 minúty pešo |
| Garáž | |
| Terasa |
V okolí nehnuteľnosti nájdete
Stále hľadáte to pravé?
Nastavte si strážneho psa. Ponuky vybrané na mieru dostanete súhrnne 1× denne e-mailom. S Premium profilom máte po ruke rovno 5 strážcov a keď sa niečo objaví, informujú vás obratom.





















