
Predaj bytu 4+1 • 97 m² bez realitkyAllerseeweg 14, , Bavorsko
Ušetríte 11 780 eur provízie makléra!
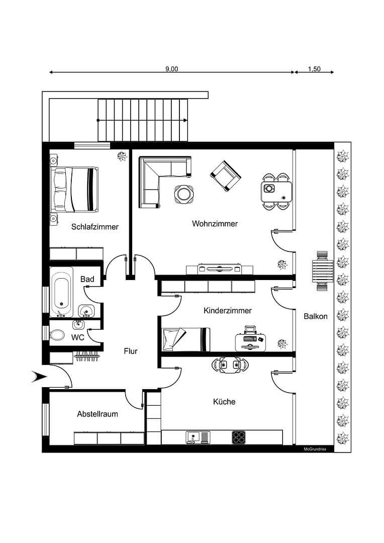
V žiadanej lokalite Höchberg–Hexenbruch pri Würzburgu sa nachádza tento priestranný, bezbariérový prízemný byt. Jednotka bola pôvodne plánovaná ako 4-izbový byt, avšak bol zrealizovaný variant 3-izbový. Tým vznikol obzvlášť otvorený, svetlom naplnený pocit priestoru s nadpriemernými obytnými plochami.
V prípade potreby môže byť byt opäť využitý ako 4-izbový: V úložnej miestnosti sú už pripravené prípojky na kuchyňu, keďže tam bola pôvodne plánovaná kuchyňa. Súčasná kuchyňa bola pôvodne určená ako spálňa a môže sa opäť využívať v tejto funkcii. Takto ponúka byt flexibilné využitie – ako 3- alebo 4-izbový, podľa aktuálnej životnej situácie.
Rozloženie miestností a hlavné prednosti:
Už pri vstupe do bytu zaujme priestranný vstupný priestor s veľkým úložným kútom a množstvom miesta na uskladnenie – čo je skutočnosťou nevšedná v porovnateľných objektoch.
Obývačka, kuchyňa aj detská izba majú každá jednu stenu vybavenú od podlahy až po strop rozľahými oknami. Tieto nielenže zabezpečujú výborné osvetlenie, ale umožňujú aj priamy prístup na veľký, prístreškovaný balkón.
Balkón je umiestnený bočne ku domu, príjemne tichý a ponúka výhľad do zelene – ideálny pre oddychové chvíle vonku s vysokou mierou súkromia.
Sanitárne vybavenie:
• Samostatné WC s denným svetlom
• Kúpeľňa s vaňou a denným svetlom
Obidve miestnosti ťažia z prirodzeného osvetlenia a vetrania – čo predstavuje jasnú výhodu oproti vnútorným riešeniam.
Stav a vybavenie:
Byt bol zrekonštruovaný a ponúka sa vo veľmi udržiavanom stave. Čiastočné zariadenie je zahrnuté v kúpnej cene, čo je najmä zaujímavé pre kapitálových investorov alebo pre tých, ktorí potrebujú rýchly presun.
Poloha v prízemí umožňuje úplne bezbariérový prístup – komfortné pre všetky vekové kategórie.
Parkovacie miesta (voliteľne):
• Vonkajšie parkovacie miesto: 10 000 €
• Miesto v podzemnej garáži: 15 000 €
Obe parkovacie miesta je možné zakúpiť aj samostatne.
Allerseeweg 14, Höchberg. Byt sa nachádza v žiadanej lokalite Höchberg–Hexenbruch pri Würzburgu – jednej z najvyhľadávanejších a najkvalitnejších rezidencií v okolí Würzburgu. Okolie sa vyznačuje udržiavanou zástavbou, príjemným susedstvom a množstvom zelene. Obchody, materská škola, školy a ďalšie zariadenia pre každodenné potreby sú dostupné v len krátkej vzdialenosti. Veľmi dobré spojenie s Würzburgom aj diaľnicou len dopĺňa atraktivitu tejto lokality.
Parametre nehnuteľnosti
| Vek | Nad 50 rokov |
|---|---|
| Stav | Po rekonštrukcii |
| Číslo inzerátu | 1001693 |
| Úžitková plocha | 97 m² |
| Dostupné od | 16. 3. 2026 |
|---|---|
| Dispozícia | 4+1 |
| PENB | E - Nehospodárne |
| Cena za jednotku | 3 401 € / m2 |
Čo táto nehnuteľnosť ponúka?
| MHD 1 minúta pešo |
V okolí nehnuteľnosti nájdete
Stále hľadáte to pravé?
Nastavte si strážneho psa. Ponuky vybrané na mieru dostanete súhrnne 1× denne e-mailom. S Premium profilom máte po ruke rovno 5 strážcov a keď sa niečo objaví, informujú vás obratom.
















