Predaj domu 6+kk • 136 m² bez realitkyZápadní, Kostomlaty nad Labem - Kostomlaty nad Labem, Středočeský kraj
Co když váš vysněný dům už někdo postavil?
Tento dvoupodlažní rodinný dům v Kostomlatech nad Labem nevznikl z katalogu ani jako developerský projekt — byl navržen, postaven a zařízen na míru rodinou s jasnou představou, jak v něm chtějí žít. Každý detail byl promyšlený: od rozvržení dispozic přes truhlářský nábytek vyrobený na zakázku až po venkovní terasu s posezením, kde se v létě griluje a posedává skoro každý den.
Dům stojí na konci klidné ulice nové zástavby, sousedy má jen z jedné strany a ze zahrady se otevírá nerušený výhled do přírody — na pole, stromy a občas i na srnky. Přitom v docházkové vzdálenosti je vše: vlak, škola, školka, obchody i cukrárna a restaurace. Do Prahy autem 30 minut, vlakem 48 minut přímý spoj.
Dům je hotový, kompletně vybavený a připravený k nastěhování. Novostavba kolaudovaná v roce 2022.
Zahrada a venkovní prostor:
Pozemek 853 m² nabízí vše, co rodina potřebuje:
- Dřevěná terasa s venkovní kuchyní, zabudovaným grilem, jídelním stolem a rozkládacím gaučem — druhý obývák pod širým nebem
- Zapuštěná trampolína a fotbalové branky pro děti
- Záhony na zeleninu a ovoce
- Zahrada se závlahovým systémem napojeným na retenční nádrž s dešťovou vodou
- Zděný podsklepený zahradní domek + plechový zahradní domek
- Parkoviště pro 2 auta
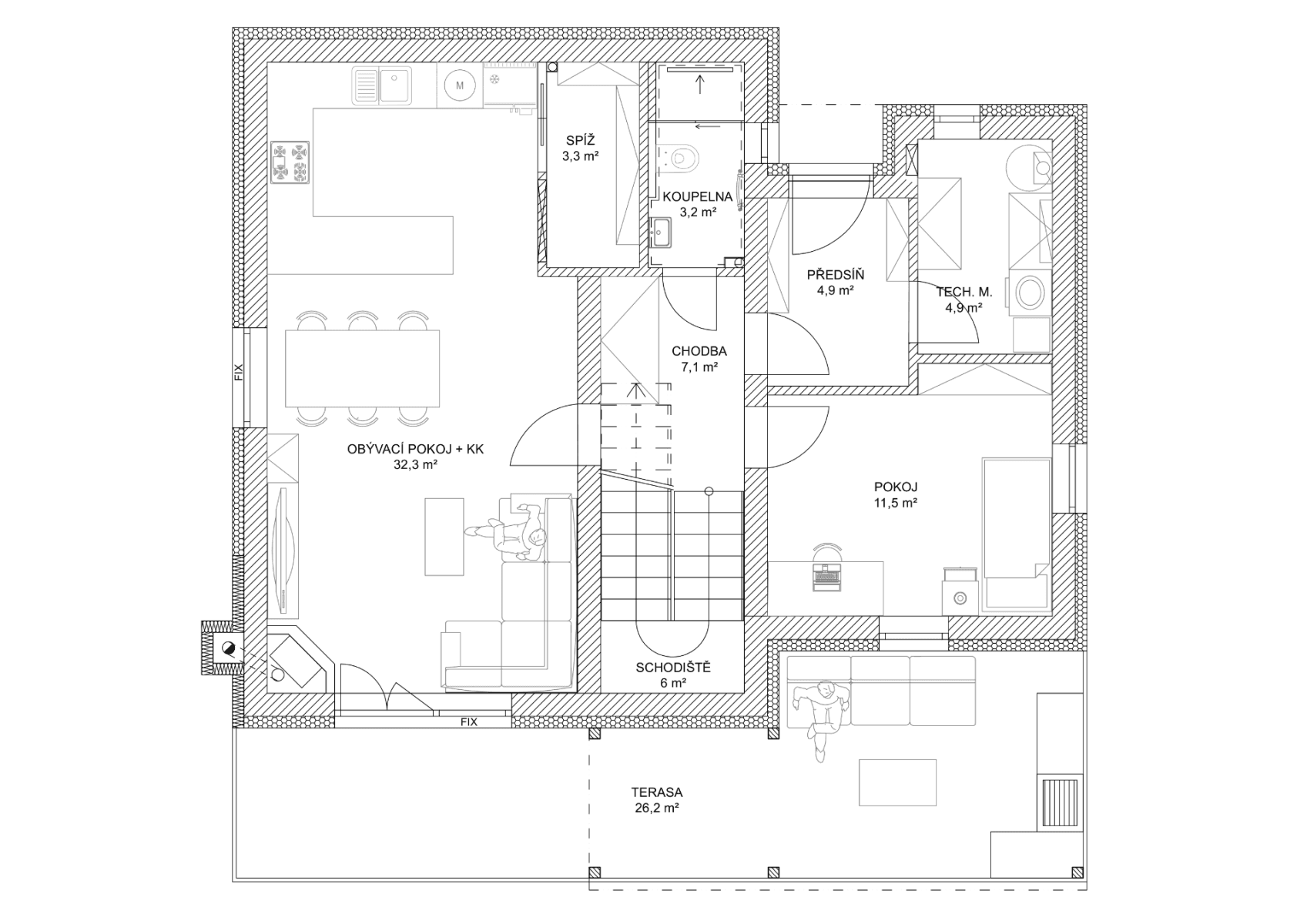
Co vás čeká uvnitř:
Přízemí tvoří prostorný obývací pokoj propojený s plně vybavenou kuchyní s dřevěným dekorem, vestavěnou lednicí, parní troubou, indukční deskou a přilehlou spíží. Koupelna se sprchovým koutem, pokoj, předsíň a technická místnost. Podlahové topení na plyn zajišťuje rovnoměrné teplo v celém domě. Krb v obýváku dotváří atmosféru na podzimní a zimní večery.
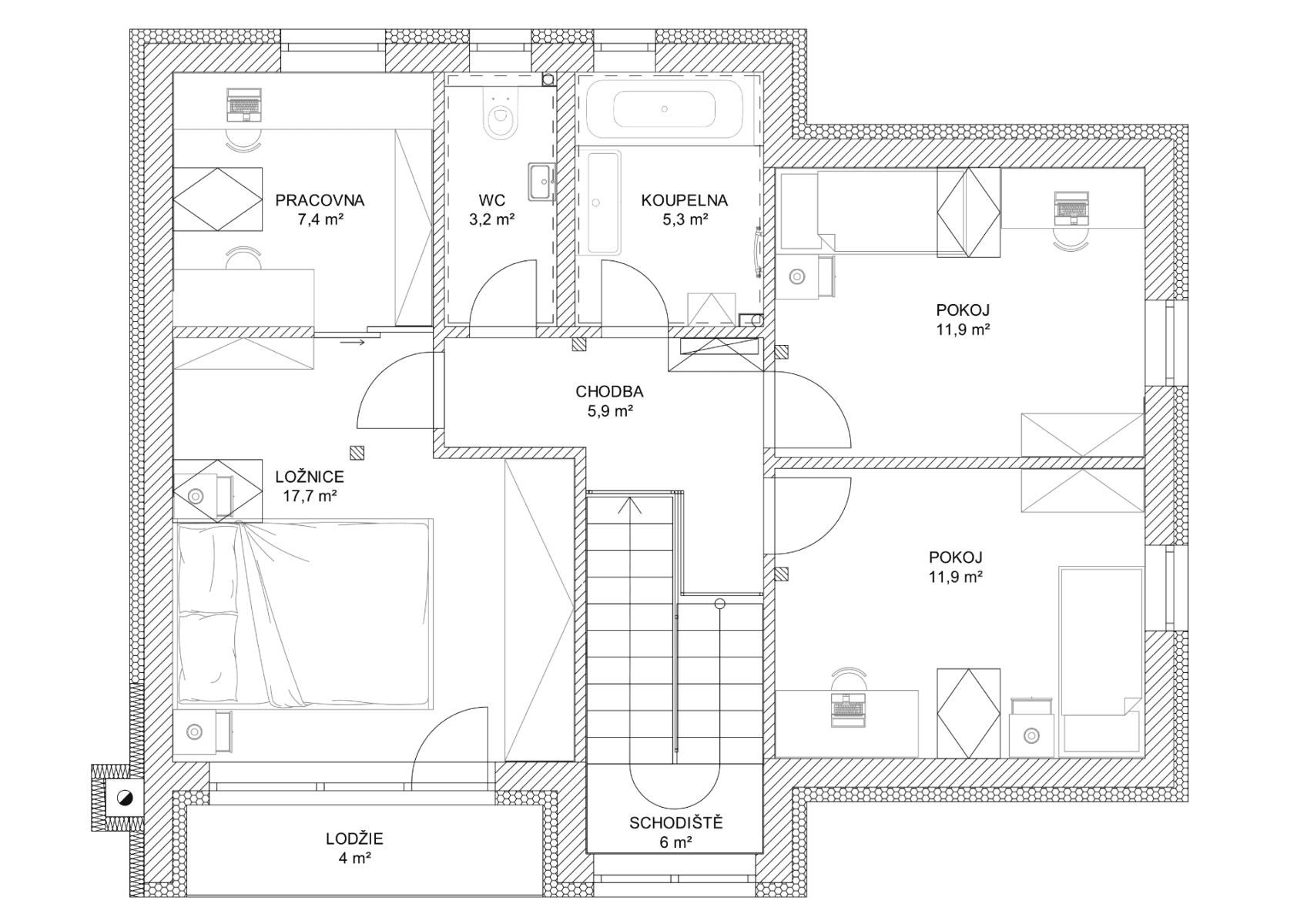
V patře se nachází ložnice s balkónem s výhledem do přírody, dva pokoje, pracovna, koupelna s vanou a samostatné WC.
Celé patro završuje přiznaný dřevěný krov — a to není jen estetika s vysokými stropy. Střecha má nadkrokevní PIR izolaci, díky které je v patře příjemné klima v létě i zimě. Tohle řešení u rodinných domů nebývá standardem a v kombinaci s přiznaným krovem vytváří atmosféru, která je velice příjemná a útulná.
Pro pocit maximálního bezpečí je v domě nainstalován zabezpečovací systém Jablotron.
Lokalita a komunita:
Dům stojí v nové zástavbě rodinných domů, na konci slepé ulice — a pro rodiny s dětmi je to jedna z největších předností. Slepá ulice bez průjezdní dopravy, s velkým zeleným ostrůvkem uprostřed, tvoří přirozené a bezpečné hřiště přímo před domem. Žádné domy nalepené na sebe, žádný ruch. Děti tu mohou celé dny jezdit na kolech, bruslích a koloběžkách — samy, bez dohledu na každém kroku.
Komunita v ulici je přátelská, tvoří ji převážně mladé rodiny s dětmi. Sousedé se znají a párkrát ročně se scházejí na akce u ohniště v přilehlém sadu.
V docházkové vzdálenosti je les, řeka Labe a u ní vedoucí cyklostezka. Aktuálně probíhá výstavba lávky přes Labe, která zpřístupní Kerské lesy přímo z obce.
K nastěhování v létě 2026.
Dům prodáváme z důvodu stěhování do zahraničí.
RK nevolat.
Parametre nehnuteľnosti
| Stav | Novostavba |
|---|---|
| Dispozícia | 6+kk |
| Číslo inzerátu | 1001565 |
| PENB | B - Veľmi úsporné |
| Úžitková plocha | 136 m² |
| Cena za jednotku | 109 559 CZK / m2 |
| Konštrukcia budovy | Tehla |
|---|---|
| Vybavené | Vybavené |
| Vlastníctvo | Osobné |
| Poloha domu | Samostatný |
| Plocha pozemku | 853 m² |
Čo táto nehnuteľnosť ponúka?
| Pivnica 10 m² | |
| Parkovanie | |
| Terasa 26,2 m² |
| Lodžia 3,6 m² | |
| MHD 3 minúty autom |
V okolí nehnuteľnosti nájdete
Stále hľadáte to pravé?
Nastavte si strážneho psa. Ponuky vybrané na mieru dostanete súhrnne 1× denne e-mailom. S Premium profilom máte po ruke rovno 5 strážcov a keď sa niečo objaví, informujú vás obratom.



















