
Predaj bytu 3+kk • 88 m² bez realitkyOtto-Schmitt-Groß-Str. 4, , Porýnie-Falcko
Na predaj je ponúkaný očarujúci vlastný byt v udržiavanom viacrodinnom dome na ulici Otto Schmitt Groß Straße 4, Bad Dürkheim. Byt má rozlohu približne 88 m² a nachádza sa na druhom zo štyroch poschodí. Vďaka optimálnej juhozápadnej orientácii si nielen vychutnáte množstvo denného svetla, ale aj nádherný výhľad na okolité vinohrady.
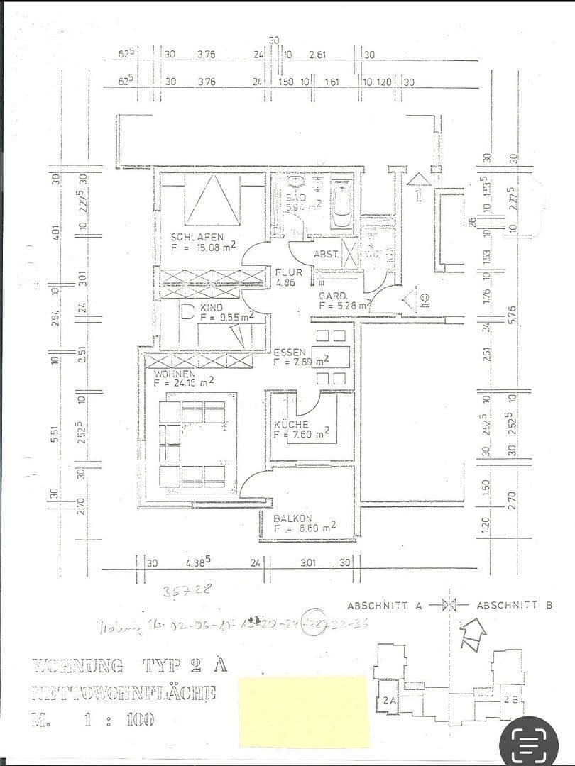
V predsieni sa nachádza hala, návštevná toaleta a praktická komora. Z chodby vedie prístup do dvoch útulných spálň a priestrannej kúpeľne s vaňou a toaletou. V modernej kúpeľni s kvalitným sanitárnym vybavením je možné umiestniť a zapojiť práčku aj sušičku.
Chodba prechádza do priestrannej a svetlej obývacej izby, ideálnej na odpočinok a posedenie. Zo vstupu do veľkej obývacej izby sa cez jedálenský kút dostanete do samostatnej kuchyne s oknom vedúcim na balkón. Kuchyňa je plne vybavená.
Prístup na čiastočne zastrešený južný balkón je možný cez obývaciu izbu a vyzýva na oddych s výhľadom na vinohrady.
K bytu patrí uzamykateľný suterén, ako aj možnosť spoločného využitia pivnice na bicykle a miestnosti na sušenie bielizne. Okrem toho je bytu priradené vlastné parkovacie miesto. K dispozícii máte tiež priestrannú záhradu na spoločné využitie.
Byt sa nachádza v tichej, no centrálnej lokalite v malej súkromnej ulici v Bad Dürkheim, na južnom okraji obce. Obchodné príležitosti, školy a možnosti voľnočasových aktivít sú ľahko dostupné pešo alebo na bicykli. Idylna okolie je ideálne pre milovníkov vína a prírody.
Parkovo pripomínajúce zelené plochy okolo domu, pokojná lokalita na okraji obce, juhozápadná orientácia, pekný a veľký balkón a výhľad do zelene, na vinohrady a do Pfalzského lesa robia z bytu oázu oddychu.
Tento byt vám ponúka atraktívne obytné prostredie v jednej z najkrajších oblastí Nemecka. Presvedčte sa sami o tejto jedinečnej príležitosti! Pre ďalšie informácie alebo dohodnutie obhliadky sme vám kedykoľvek k dispozícii.
V roku 2014 boli v byte vykonané rozsiahle rekonštrukcie. Vo všetkých miestnostiach bol položený svetlý laminát, a v kúpeľni a na návštevnej toalete boli čiastočne položené nové obklady a inštalované nové keramiky. Kúpeľňa a návštevná toaleta boli kompletne zrekonštruované. Okrem toho bola elektroinštalácia čiastočne obnovená. Byt je vybavený plne vybavenou vstavanou kuchyňou.
Byt sa odovzdáva neobsadený nájomníkmi.
Kuchyňa sa predáva spolu s bytom. Odkupná cena je 2.330 €.
Mesačné poplatky zahŕňajú aj odloženú údržbovú rezervu vo výške približne 70 € mesačne. Podielová hodnota údržbovej rezervy bytu vo výške 6.027 € je zahrnutá v kúpnej cene.
Pôdorys sa v niektorých oblastiach môže mierne líšiť od skutočnej situácie.
Parametre nehnuteľnosti
| Vek | Nad 50 rokov |
|---|---|
| Dispozícia | 3+kk |
| Číslo inzerátu | 1001426 |
| Úžitková plocha | 88 m² |
| Stav | Dobrý |
|---|---|
| Poschodie | 2. poschodie z 4 |
| PENB | D - Menej hospodárne |
| Cena za jednotku | 2 952 € / m2 |
Čo táto nehnuteľnosť ponúka?
| Balkón | |
| Výťah | |
| MHD 3 minúty pešo |
| Pivnica | |
| Parkovanie |
V okolí nehnuteľnosti nájdete
Stále hľadáte to pravé?
Nastavte si strážneho psa. Ponuky vybrané na mieru dostanete súhrnne 1× denne e-mailom. S Premium profilom máte po ruke rovno 5 strážcov a keď sa niečo objaví, informujú vás obratom.

























