Prenájom bytu 4+1 • 111 m² bez realitkyCrailsheimer Str. 2, , Bádensko-Wurttembersko
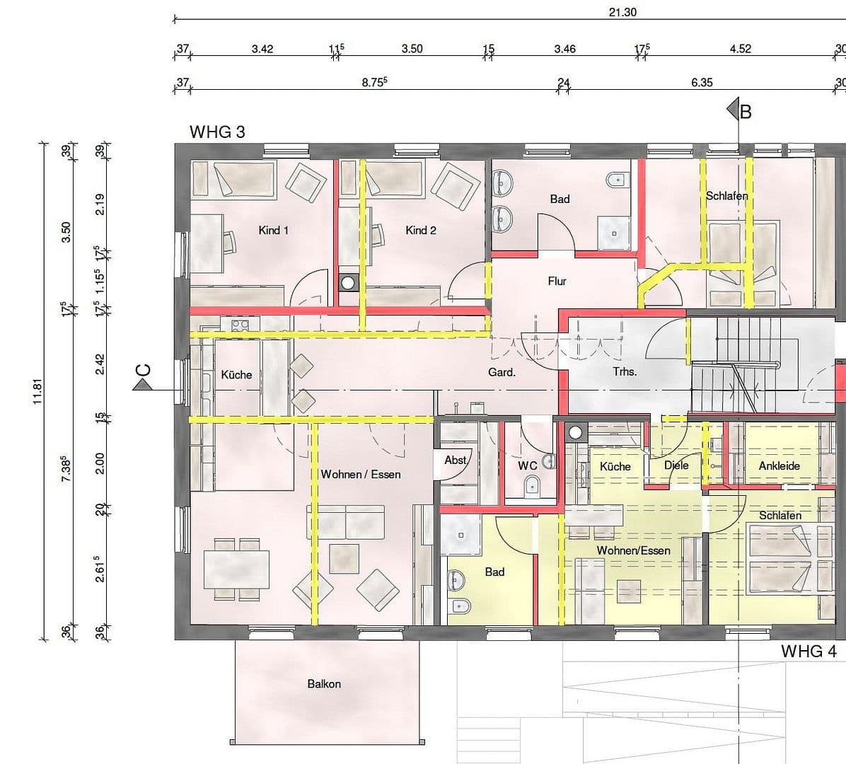
Crailsheimer Str. 2, , Bádensko-WurttemberskoMHD 1 minúta pešo • ParkovanieOd 01.07.2026 sa ponúka na prenájom veľkorysý 4-izbový byt v udržiavanom dome s 8 bytmi na adrese Crailsheimer Str. 2, Frankenhardt-Gründelhardt (bývalý Gasthof Hirsch).
Dům je aktuálne predmetom komplexnej energetickej rekonštrukcie a celkovej obnovy, vrátane novej elektrickej inštalácie, vody/kanalizácie, kúrenia (podlahové kúrenie prostredníctvom tepelného čerpadla s PV inštaláciou pre lacnejšiu elektrinu), novej strechy, izolácie, okien a nových povrchových úprav (podlahy, stropy, steny).
Byt disponuje priestranným obývacím a jedálňovým priestorom s prístupom na veľký balkón, 3 spálňami, jednou kúpeľňou, hosťovským WC a technickou miestnosťou.
Zabudovaná kuchyňa je k dispozícii na prenájom za 60 € mesačne.
Okrem tohto bytu sa v dome nachádza ďalší 3-izbový byt s rozlohou cca 113 m² a 2-izbový byt s rozlohou cca 74 m².
Dom sa nachádza v centre Gründelhardtu. Všetky potreby každodenného života ako potraviny/diskontné obchody, materská škola, základná škola, lekári a pod. sú dostupné pešo v krátkej dobe.
Parkovacie miesta sa nachádzajú na pozemku priamo vedľa domu.
Automobilom sa rýchlo dostanete do Crailsheimu alebo Schwäbisch Hall.
Náročná a energeticky kvalitná rekonštrukcia zabezpečuje príjemné podlahové kúrenie.
Vyrobená elektrina z PV inštalácie sa okrem iného využíva na pohon tepelného čerpadla, čím sa znižujú prevádzkové náklady.
Zabudovaná kuchyňa so spotrebičmi bude inštalovaná a stojí 60 € mesačne.
Parametre nehnuteľnosti
| Vek | Nad 50 rokov |
|---|---|
| Stav | Po rekonštrukcii |
| Poschodie | 1. poschodie z 3 |
| Úžitková plocha | 111 m² |
| Dostupné od | 1. 7. 2026 |
|---|---|
| Dispozícia | 4+1 |
| Číslo inzerátu | 1001014 |
| Cena za jednotku | 10 € / m2 |
Čo táto nehnuteľnosť ponúka?
| Balkón | |
| MHD 1 minúta pešo |
| Parkovanie |
V okolí nehnuteľnosti nájdete
Stále hľadáte to pravé?
Nastavte si strážneho psa. Ponuky vybrané na mieru dostanete súhrnne 1× denne e-mailom. S Premium profilom máte po ruke rovno 5 strážcov a keď sa niečo objaví, informujú vás obratom.



