Prenájom bytu 3+1 • 75 m² bez realitkyauf Anfrage Bad Wiessee Bayern 83707
auf Anfrage Bad Wiessee Bayern 83707MHD 1 minúta pešo • ParkovanieRekonštruovaný 3-izbový byt sa nachádza na 2. poschodí / v podkroví viacrodinného domu, ktorý celkovo obýva 7 domácností a bol postavený v roku 1964.
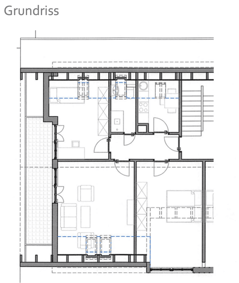
Z udržiavaného schodiska sa dostanete do priestrannej chodby bytu, z ktorej sú prístupné všetky miestnosti. Vďaka výške miestností minimálne 2,45 m a vstavanému stropnému osvetleniu, v kombinácii s parketovou podlahou a bielymi dverami, sa už pri vstupe a zatváraní dverí bytu budete cítiť uvoľnene a ako doma.
Vpravo sa nachádza kuchyňa, v ktorej je kompletne vybavená zabudovaná kuchynská linka so všetkými elektrickými spotrebičmi. Vďaka klasickej farebnej kombinácii bielych frontov a tmavej pracovnej dosky je kuchyňa elegantná a nadčasová.
V kúpeľni sa nachádza priestranná sprcha, umývadlo, WC a oddelená časť s prípojkou pre malú práčku alebo sušičku.
Z prvej zo troch izieb získate prístup na priestranný západný balkón s nádherným výhľadom na hory. Izba je veľmi svetlá vďaka balkónovým dverám a nasledujúcim oknám; môže byť preto využitá napríklad ako detská izba, izba pre hostí alebo kancelária.
Na druhej strane chodby, taktiež s prístupom na balkón, sa nachádza svetlý obývací priestor, ktorý navyše disponuje dvoma strešnými oknami a malým oknom v oblasti s nízkym stropom. Na západnom balkóne si môžete vychutnať pohľad na hory a večer aj západ slnka.
Pri obývacej izbe sa nachádza aj spálňa, ktorá je takisto svetlá a útulná, vybavená štyrmi oknami vo vikéri.
Obec Bad Wiessee, uznávaná kúpeľná destinácia už od roku 1922, sa nachádza na západnom brehu jazera Tegernsee, približne 50 km južne od Mníchova.
Obchody dennej potreby sú vzdialené len „kameňom hodené“; Lindenplatz v centre Bad Wiessee so ďalšími maloobchodníkmi, poštovým úradom, lekárňami a pod. je autom dostupný za 1 minútu.
Možnosti voľnočasových aktivít (tenis, jazda na koni, plachtenie, lyžovanie, turistika, golf a pod.) ako aj najbližšie lesné a lúčne chodníky sú v podstate doslova priamo pred dverami.
Železničnú stanicu Gmund (Bayerische Regiobahn so spojením do Mníchova, Rosenheim/Salzburg, Schliersee/Neuhaus a Lenggries) dosiahnete autom za 5 minút. Diaľničné spojenie Holzkirchen (A8) smerom na Mníchov a Salzburg je vzdialené približne 20 km, teda okolo 30 minút.
Autobusová zastávka, smerom do Gmund či Rottach-Egern, sa nachádza približne 100 m od domu.
• Dubové parketové dosky vo všetkých obytných a chodbových priestoroch
• Kvalitný kameninový obklad v sprche/na WC
• Exkluzívne sanitárne zariadenia a armatury v sprche/na WC
• Priestranná sprcha
• Kvalitná zabudovaná kuchyňa vrátane všetkých elektrických spotrebičov
• Nové okná a dvere s trojitým zasklením
• Ďalšie strešné okná
• Dveri v bielej farbe s dekoratívnymi vložkami
• Osvetľovací koncept na stenách a strope
• Nová elektroinštalácia, rozvody a rozdeľovač
• Nové radiátory
Parametre nehnuteľnosti
| Vek | Nad 50 rokov |
|---|---|
| Stav | Po rekonštrukcii |
| Poschodie | 2. poschodie z 2 |
| PENB | C - Hospodárne |
| Cena za jednotku | 19 € / m2 |
| Dostupné od | 1. 5. 2026 |
|---|---|
| Dispozícia | 3+1 |
| Číslo inzerátu | 1000867 |
| Úžitková plocha | 75 m² |
Čo táto nehnuteľnosť ponúka?
| Balkón | |
| Parkovanie |
| Pivnica | |
| MHD 1 minúta pešo |
V okolí nehnuteľnosti nájdete
Stále hľadáte to pravé?
Nastavte si strážneho psa. Ponuky vybrané na mieru dostanete súhrnne 1× denne e-mailom. S Premium profilom máte po ruke rovno 5 strážcov a keď sa niečo objaví, informujú vás obratom.














