
Prenájom nebytového priestoru • 300 m² bez realitkyBaden-Baden Baden-Baden Baden-Württemberg 76532
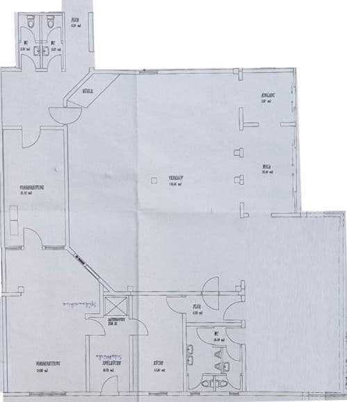
Baden-Baden Baden-Baden Baden-Württemberg 76532MHD 1 minúta pešoZákazníci vstupujú do obchodnej jednotky cez automatické sklenené dvere a privítajú ich príjemne zariadená a veľmi udržiavaná predajňa. Veľký chladiaci pult (na požiadanie ho možno aj odstrániť) je pripravený na prezentáciu tovaru. K pultu naväzuje obslužný pult pre obedové menu. Hneď vedľa sa nachádza priestor pre hostí so stolmi aj stoličkami, ako aj s priestorom, ktorý pripomína zimnú záhradu, kde si ľudia môžu vychutnať jedlá a nápoje. Samozrejme, sú k dispozícii aj WC pre hostí. Za pultom stojí gastronómia-kuchyňa s veľkorysými skladovacími a prípravnými priestormi. Po chodbe sa dostanete do toalet pre zamestnancov. Voliteľne je možné si tiež prenajímať dve veľmi priestranné chladiarne.
Alternatívne využitie okrem gastronómie je tiež možné ako predajná plocha, fitness centrum alebo niečo podobné.
HRA NIKDY – prevádzka herne alebo stávková kancelária nie je možná.
Nehnuteľnosť bude voľná od januára 2027!
Obchodná jednotka sa nachádza v atraktívnej lokalite Baden-Baden-Oos s množstvom obchodných prevádzok. Všetky priestory sú na prízemí a sú bezbariérové. K dispozícii je množstvo parkovacích miest. V bezprostrednom okolí sa nachádza aj diskontný obchod a rýchlonabíjacie stanice pre elektrické autá, ktoré tiež priťahujú zákazníkov. V blízkom okolí sú aj ďalšie diskontné obchody a lekáreň. Železničná stanica Baden-Baden je vzdialená približne 500 m.
Nehnuteľnosť bola priebežne udržiavaná a ponúka veľmi dobré vybavenie. Novo inštalované tepelné čerpadlo z roku 2022 dodáva ekologické teplo za výhodnú cenu. Dve veľké chladiarne, ktoré sú voliteľne prenajateľné, z ktorých jedna je časťou oddelená, ponúkajú miesto pre tovar a zásoby. Bistro s denným jedlom je prívetivo a svetlo zariadené a kuchynské priestory ponúkajú mnoho možností na prevádzku bistra a cateringovej služby. Za prevzatie zariadenia a inventára sa vyžaduje odkupné. Je tiež možnosť rozšíriť chladiaci pult, aby sa vytvorilo ďalšie miesto na sedenie.
Nehnuteľnosť je voľná od januára 2027!
Parametre nehnuteľnosti
| Vek | Nad 50 rokov |
|---|---|
| Číslo inzerátu | 1000842 |
| Cena za jednotku | 0 € / m2 |
| Stav | Dobrý |
|---|---|
| Plocha nebytového priestoru | 300 m² |
Čo táto nehnuteľnosť ponúka?
| Bezbariérový prístup | |
| Terasa |
| MHD 1 minúta pešo |
V okolí nehnuteľnosti nájdete
Stále hľadáte to pravé?
Nastavte si strážneho psa. Ponuky vybrané na mieru dostanete súhrnne 1× denne e-mailom. S Premium profilom máte po ruke rovno 5 strážcov a keď sa niečo objaví, informujú vás obratom.

















