Prenájom kancelárie • 163 m² bez realitkyWilhelmshöher Allee 320 Kassel Kassel Hessen 34131
Wilhelmshöher Allee 320 Kassel Kassel Hessen 34131MHD 3 minúty pešo • Parkovanie • GarážAtraktívne komerčné priestory v reprezentatívnom viacrodinovom dome – Wilhelmshöher Allee 320, Kassel
V udržiavanom a reprezentatívnom viacrodinovom dome na adrese Wilhelmshöher Allee 320 sa nachádzajú dve priestranné komerčné plochy na nový prenájom. Nehnuteľnosť sa nachádza na jednej z najžiadanejších a najviditeľnejších adries Kasselu s vynikajúcou dostupnosťou a vysokou kvalitou lokality.
Dostupné priestory:
• Prízemie: cca 163 m², k dispozícii od 01.05.
• 1. poschodie: cca 163 m², k dispozícii od 01.07.
Plochy je možné prenajímať samostatne alebo spolu a ideálne sa hodia pre kancelárske, zdravotnícke, servisné alebo poradenské využitie.
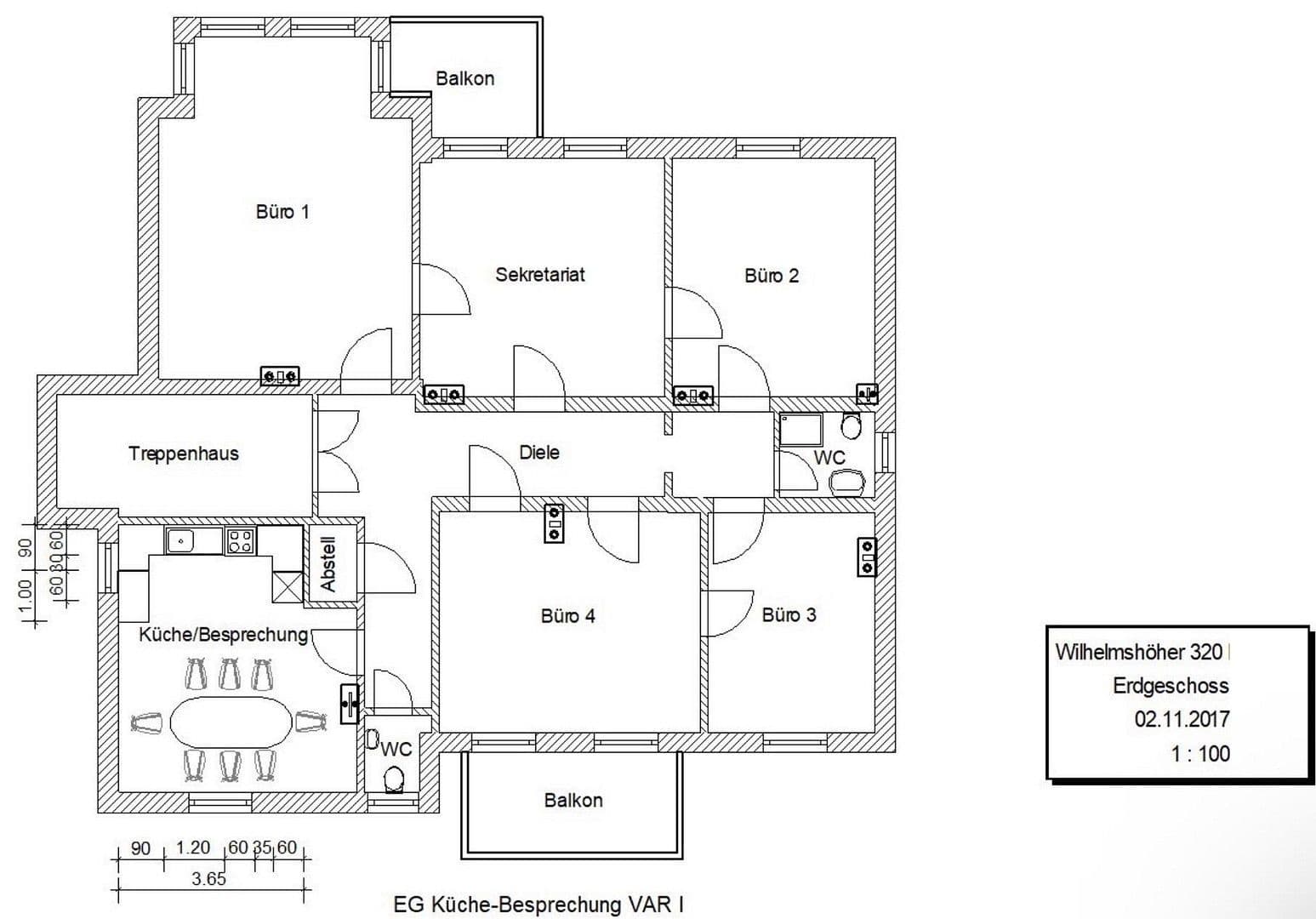
Vybavenie & pôdorys:
Jednotky disponujú funkčnými, dobre osvetlenými pôdorysmi s flexibilným rozdelením priestorov, čo umožňuje individuálne prispôsobenie rôznym konceptom využitia. Priestranné okná zabezpečujú príjemné pracovné prostredie. Technická infraštruktúra je moderná a prispôsobená komerčnému využitiu.
Poloha & okolie:
Wilhelmshöher Allee patrí medzi najdôležitejšie dopravné a obchodné osi Kasselu. Lokalita ponúka vynikajúce spojenie s verejnou dopravou aj nadregionálnou cestnou sieťou. V bezprostrednom okolí sa nachádza množstvo služieb, maloobchodných ponúk, gastronómie a obytných zón, čo robí túto lokalitu obzvlášť atraktívnou pre zamestnancov aj zákazníkov.
Záver:
Tieto komerčné priestory spájajú reprezentatívnu polohu, priestrannú štruktúru a vysokú flexibilitu – ideálne pre firmy, ktoré si cenia viditeľnosť, dostupnosť a profesionálne prostredie.
Ďalšie informácie a termíny prehliadok vám radi poskytneme na požiadanie.
Wilhelmshöher Allee 320 sa nachádza v Kasseli v obľúbenom západnom meste – v oblasti, ktorá spája mestský život s množstvom zelene a veľmi dobrou infraštruktúrou. Adresa je na jednej z najznámejších hlavných tried Kasselu, a to Wilhelmshöher Allee, ktorá formuje mestský vzhľad svojimi priestrannými alejnými štruktúrami, rozvinutými obytnými štvrťami a zmesou reprezentatívnych historických budov, udržiavaných viacrodinových domov i modernejších stavieb. Mikrolokalita je preto atraktívna ako pre pracujúcich, tak aj pre študentov a páry, ktorí si cenia krátke vzdialenosti a živé prostredie.
Jednou z hlavných výhod je vynikajúce spojenie s verejnou dopravou. Pozdĺž Wilhelmshöher Allee jazdia električky a autobusy s vysokou frekvenciou a rýchlo spájajú lokalitu s centrálou Kasselu, ICE stanicou Kassel-Wilhelmshöhe a ďalšími mestskými časťami. Cestujúci do práce profitujú z rýchlej dostupnosti hlavných dopravných uzlov a z dobrej integrácie do nadregionálnej siete. Aj autom je lokalita pohodlná: cez široké prístupové cesty sú diaľničné pripojenia a okolití komerční a zamestnávateľskí centrá ľahko dostupné, bez toho aby ste museli vzdať výhod mestského bývania.
V bezprostrednom okolí nájdete množstvo ponúk pre každodenné potreby. Supermarkety, pekárne, lekárne, lekári, banky a ďalší poskytovatelia služieb sú v blízkosti. Ponuku dopĺňajú kaviarne, reštaurácie a menšie obchody, ktoré dávajú štvrti príjemný, autentický charakter. Pre rodiny je lokalita taktiež zaujímavá: materské školy, školy a voľnočasové zariadenia sú v okolí dobre rozmiestnené a zvyčajne rýchlo dostupné.
Rekreácia a voľný čas tu nie sú opomenuté. Západ Kasselu sa vyznačuje vysokou kvalitou pobytu a množstvom zelene. V závislosti od smeru výhľadu sú prechádzkové a behové trasy, zelené pásma a ďalšie možnosti rekreácie ľahko dostupné. Osobitým lákadlom tejto mestskej časti je blízkosť kasselských rekreačných a kultúrnych lokalít okolo Bergparku Wilhelmshöhe so svojím rozľahlým územím, výhľadovými osami a rozmanitými výletníckymi cieľmi – ideálne na víkendy, športové aktivity alebo relaxačné večerné prechádzky.
Celkovo Wilhelmshöher Allee 320 ponúka lokalitu, ktorá presvedčivo kombinuje centrálnu dostupnosť, silnú infraštruktúru a kvalitné obytné prostredie. Kombinácia dobrej mobility, blízkej občianskej vybavenosti, gastronómie a zelenej okolia robí túto adresu atraktívnou pre všetkých, ktorí chcú bývať komfortne a blízko centra Kasselu.
Prenajatelná plocha sa nachádza vo vysoko zrekonštruovanom historickom dome, ktorý spája pôvab klasickej architektúry s požiadavkami modernej pracovnej oblasti. Historické prvky boli starostlivo zachované a modernizovane doplnené, takže vznikla reprezentatívna a zároveň funkčná kancelárska atmosféra.
Vybavenie sa vyznačuje kvalitnými parketovými podlahami z masívneho dreva, ktoré priestorom dodávajú teplý, elegantný vzhľad a zároveň zabezpečujú príjemnú pracovnú atmosféru. Priestranné dispozície a jasné osvetlenie podporujú modernú kancelársku atmosféru a ponúkajú množstvo možností pre individuálne priestorové a využívacie koncepty – od klasickej samostatnej kancelárie až po otvorené pracovné priestory.
Technická infraštruktúra spĺňa dnešné požiadavky: momentálne sa inštaluje optické pripojenie, ktoré zabezpečí rýchle a stabilné internetové spojenie a digitálne využitie pripravené na budúcnosť. Celkovo vybavenie presviedča úspešným spojením kvalitnej stavebnej substancie, modernej techniky a profesionálneho, reprezentatívneho vzhľadu, ktorý ponúka ideálne predpoklady pre produktívnu prácu.
Plánuje sa pre rok 2026 výstavba výťahu.
V júli 2026 bude voľná aj druhá poschodie (1. poschodie) s podobnou rozlohou.
Minimálna doba nájmu je 2 roky. Čistý základný nájom v prvom roku je 1.900 EUR a v druhom roku 2.500 EUR.
Parametre nehnuteľnosti
| Dostupné od | 1. 5. 2026 |
|---|---|
| Číslo inzerátu | 1000790 |
| Cena za jednotku | 12 € / m2 |
| Stav | Veľmi dobrý |
|---|---|
| Plocha kancelárie | 163 m² |
Čo táto nehnuteľnosť ponúka?
| Balkón | |
| Parkovanie | |
| Terasa |
| Garáž | |
| MHD 3 minúty pešo |
V okolí nehnuteľnosti nájdete
Stále hľadáte to pravé?
Nastavte si strážneho psa. Ponuky vybrané na mieru dostanete súhrnne 1× denne e-mailom. S Premium profilom máte po ruke rovno 5 strážcov a keď sa niečo objaví, informujú vás obratom.






















