
Prenájom bytu 2+kk • 67 m² bez realitkyLilienweg 19/1, , Bádensko-Wurttembersko
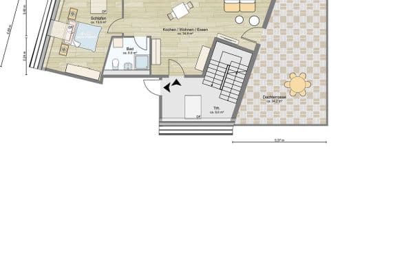
Svetlý byt v pokojnej, koncovej lokalite: Obývacia izba s veľkým balkónom orientovaným k záhrade (jihozápad) a slnečným osvetlením až do večera. Spálňa s výhľadom do vinohradov. Nová vstavacia kuchyňa s modernými elektrospotrebičmi, sedením pre barové stoličky a veľkou chladničkou s mraziacou kombináciou. Nová vinylová podlaha, čiastočne zrekonštruovaná kúpeľňa, podzemná garáž a pivnica, ako aj služba správcu budovy.
Priamo v Untergruppenbach, neďaleko vinohradov a polí v doprave pokojnej koncovej lokalite. Za pár minút chôdze sa dostanete k vonkajšiemu bazénu v Untergruppenbach. Verejná doprava je v blízkosti, rovnako ako možnosti nákupu pre každodenné potreby.
Priestranná obývacia izba ponúka prístup na veľký, čiastočne krytý balkón so smerovaním na juhozápad. Balkón sa nachádza na pokojnej, záhradnej strane a poskytuje pekný výhľad do zelene. Vďaka jihozápadnej polohe si tu môžete vychutnať slnko až do večerných hodín.
Zo spálne máte nádherný výhľad do vinohradov.
Byt je prvým obývaním po komplexnej rekonštrukcii:
- Nová vstavacia kuchyňa od Ender Wohnideen v hodnote 7 500 eur,
- Moderné elektrospotrebiče vrátane veľkej chladničky s mraziacou kombináciou,
- Sedenie pre barové stoličky v kuchyni,
- Nová vinylová podlaha v obývacej izbe a spálni,
- Steny novo tapetované a natreté,
- Dvere a rámiky novo natreté na bielo,
- Vnútorné strany okien novo natreté,
- Radiátory novo lakované,
- Kúpeľňa čiastočne zrekonštruovaná: nová vaňa, nové umývadlo, nový záchodový sedák, nové armatury a nové dlaždice v oblasti kúpeľne/sprchy.
Ďalšie výhody:
- Veľká práčovňa v dome,
- Veľká pivnica s novým ťažko zaťaženým regálom,
- Miesto v podzemnej garáži s diaľkovým ovládaním brány,
- Spoločné parkovisko pre bicykle,
- Služba správcu budovy,
- Nové dvojriadové závesné dráhy v obývacej izbe a spálni.
Byt sa prenajíma spolu s miestom v podzemnej garáži (100 eur).
Celkový nájom (979 eur) je rozdelený nasledovne:
• Základný nájom bytu: 779 eur
• Nájom vstavacej kuchyne: 100 eur
• Nájom miesta v podzemnej garáži: 100 eur
Toto je ideálny byt pre 1–2 osoby, ktoré chcú bývať v pokoji a zároveň si vychutnať kvalitne a čerstvo zrekonštruovaný byt.
Parametre nehnuteľnosti
| Vek | Nad 50 rokov |
|---|---|
| Dispozícia | 2+kk |
| Číslo inzerátu | 1000759 |
| Úžitková plocha | 67 m² |
| Stav | Po rekonštrukcii |
|---|---|
| Poschodie | Prízemie |
| PENB | D - Menej hospodárne |
| Cena za jednotku | 13 € / m2 |
Čo táto nehnuteľnosť ponúka?
| Balkón | |
| Garáž |
| Pivnica | |
| MHD 3 minúty pešo |
V okolí nehnuteľnosti nájdete
Stále hľadáte to pravé?
Nastavte si strážneho psa. Ponuky vybrané na mieru dostanete súhrnne 1× denne e-mailom. S Premium profilom máte po ruke rovno 5 strážcov a keď sa niečo objaví, informujú vás obratom.



























