Predaj pozemku • 449 m² bez realitkyGeroldgasse Salzburg Aigen Salzburg 5026
Tento objekt, ktorý potrebuje rekonštrukciu, v prémiovej lokalite Aigen ponúka dokonalý základ pre dom snov. Vďaka severovýchodnej polohe pôvodnej budovy a juhozápadnej orientácii zelených plôch je pozemok optimálne využitý. Pokojná a slnečná poloha pozýva k oddychu v rozľahdej záhrade.
• Veľkosť pozemku: 449 m²
• Bytová plocha momentálne cca 120 m²
• Možnosť integrácie prístavanej stodoly v prízemí
• Veľký, nedokončený podkrovný priestor k dispozícii
• Možnosť 5 alebo 6 izieb
• Čiastočne s podzemím – malá pivnica s cca 25 m² k dispozícii
• Priestranná dvojgaráž s cca 33 m² postavená v roku 1995
Obvod Aigen patrí k najexkluzívnejším obytným oblastiam Salzburgu a vyniká vďaka svojej zelenej, pokojnej atmosfére na úpätí Gaisbergu. Historické vily, rozsiahle záhrady a blízkosť rieky Salzach definujú pocit bývania. Zároveň je historické centrum dosiahnuteľné za pár minút, čím sú príroda a mestská infraštruktúra ideálne spojené.
• Úplne pokojná a centrálná poloha v Aigen, len 200 metrov od Salzach
• Centrum Salzburgu je dosiahnuteľné za pár minút na bicykli
• O-Bus, S-Bahn, supermarket, lekári: všetko dosiahnuteľné pešo za pár minút
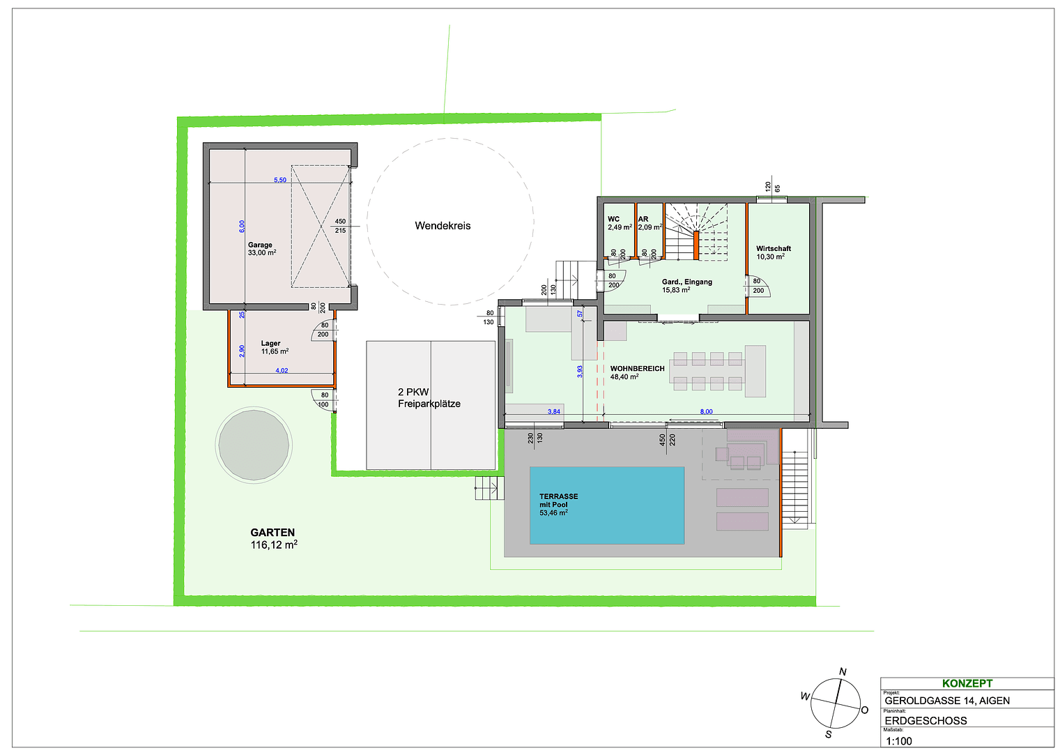
* Konceptuálny plán inšpirácie pre rekonštrukciu pre 185 m² obytného priestoru bol vypracovaný a je zobrazený v pôdorysoch.
Kontakt:
Christoph Stangl
0676 5867373
COCCON GmbH
Mayrwiesstraße 27
5300 Hallwang/Mayrwies
coccon.at
Parametre nehnuteľnosti
| Číslo inzerátu | 1000652 |
|---|---|
| Cena za jednotku | 1 993 € / m2 |
| Plocha pozemku | 449 m² |
|---|
Čo táto nehnuteľnosť ponúka?
| MHD 6 minút pešo |
V okolí nehnuteľnosti nájdete
Stále hľadáte to pravé?
Nastavte si strážneho psa. Ponuky vybrané na mieru dostanete súhrnne 1× denne e-mailom. S Premium profilom máte po ruke rovno 5 strážcov a keď sa niečo objaví, informujú vás obratom.







