Predaj domu 5+1 • 150 m² bez realitky, Severné Porýnie - Westfálsko
, Severné Porýnie - WestfálskoMHD 1 minúta pešo • Parkovanie • GarážModernizovaný rodinný dom v Rheine Hauenhorst
- Bez provízie
- K dispozícii na nastěhovanie po dohode
- Energetická trieda C
Prehľad:
Rodinný dom, rok výstavby 1978, cca 150 m² obytná plocha na pozemku o rozlohe 569 m². Nehnuteľnosť je úplne suterénovaná a disponuje garážou, ako aj viacerými parkovacími miestami.
Popis:
Tento udržiavaný a modernizovaný rodinný dom zaujme premysleným konceptom rozloženia miestností, kvalitnými detailami vybavenia a príjemnou atmosférou bývania. Jasná štruktúra pôdorysu umožňuje ako spoločné bývanie, tak aj vytvorenie súkromných útočísk.
Nehnuteľnosť sa nachádza v rheinskej štvrti Hauenhorst, jednej z najobľúbenejších a najrodinnepriateľnejších lokalít mesta. Pokojné obytné ulice, dobrá infraštruktúra a rýchle spojenie s centrom mesta charakterizujú túto oblasť.
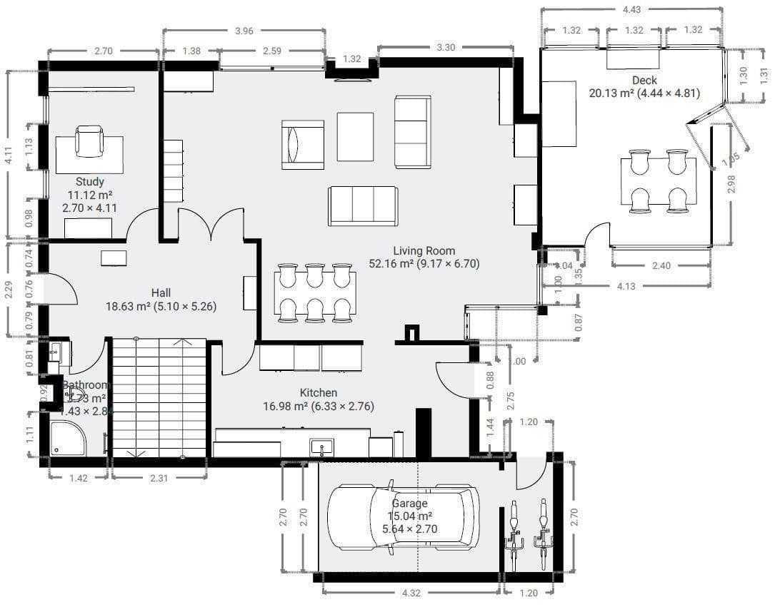
Vybavenie a rozloženie:
Prízemie: Priestranný obývací a jedálenský priestor s podlahovým kúrením, pracovňa alebo spálňa s dvojkrídlovým vstavaným šatníkom, vysoko kvalitná vstavaná kuchyňa značky Nobilia s čiernymi granitovými pracovnými doskami a vstavanými spotrebičmi Siemens, modernizovaná kúpeľňa so sprchou, bez okrajového splachovača WC, umývadlom a podlahovým kúrením.
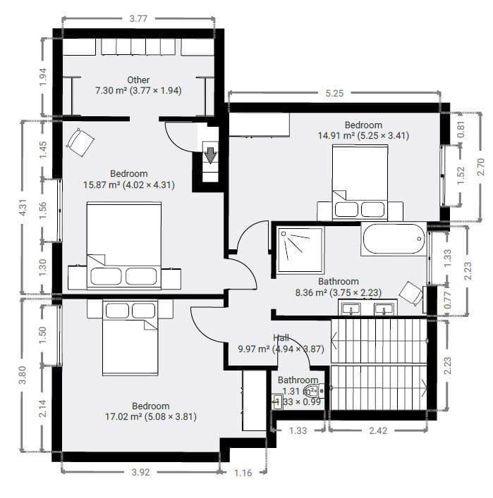
I. poschodie: Tri spálne, každá s prechodným šatníkom, modernizovaná kúpeľňa so sprchou, vaňou, dvoma umývadlami a podlahovým kúrením, ako aj samostatné hosťovské WC.
Suterén: Úplne suterénovaný s priestrannými úložnými a skladovacími priestormi.
Exteriér:
Neprieniknuteľná, plne upravená záhrada ponúka chránené miesto na oddych. Prístrešná terasa umožňuje využívanie vonkajšieho priestoru bez ohľadu na počasie. Za garážou sa nachádza dodatočný skladovací priestor pre bicykle a záhradné náradie.
Záver:
Kvalitne modernizovaný rodinný dom v žiadanej lokalite Rheine-Hauenhorst. Priestranné priestory, moderné vybavenie a pokojné prostredie robia z tejto nehnuteľnosti atraktívnu voľbu pre rodiny s dlhodobým zámerom.
Parametre nehnuteľnosti
| Vek | Nad 50 rokov |
|---|---|
| Dispozícia | 5+1 |
| PENB | C - Hospodárne |
| Plocha pozemku | 569 m² |
| Cena za jednotku | 3 127 € / m2 |
| Stav | Po rekonštrukcii |
|---|---|
| Číslo inzerátu | 1000647 |
| Úžitková plocha | 150 m² |
| Celkové poschodia | 2 |
Čo táto nehnuteľnosť ponúka?
| Pivnica | |
| Parkovanie | |
| Terasa |
| Garáž | |
| MHD 1 minúta pešo |
V okolí nehnuteľnosti nájdete
Stále hľadáte to pravé?
Nastavte si strážneho psa. Ponuky vybrané na mieru dostanete súhrnne 1× denne e-mailom. S Premium profilom máte po ruke rovno 5 strážcov a keď sa niečo objaví, informujú vás obratom.




















