Predaj bytu 4+1 • 105 m² bez realitkyGregor-Fuchs-Straße 38 Leipzig Anger-Crottendorf Sachsen 04318
Pôvabný 4-izbový dvojpodlažný byt s balkónom v Leipzi-Anger-Crottendorf
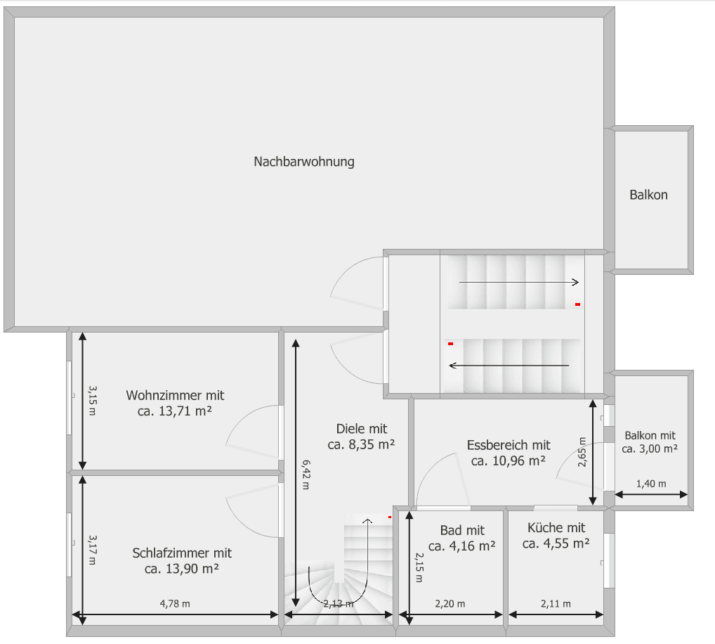
V starostlivo zrekonštruovanom, pamätníkom chránenom viacfamilijnom dome z 19. storočia vás čaká v obľúbenom leipziovskom štvrti Anger-Crottendorf atraktívny vlastnícky byt s približne 84 m² obytného priestoru. Byt sa nachádza na 4. poschodí udržiavaného historického domu, ktorý bol v roku 1996 dôkladne zrekonštruovaný.
Svetlý 4-izbový dvojpodlažný byt ponúka dostatok miesta pre páry alebo rodiny, ktoré hľadajú útulný domov s historickým šarmom. Obytná plocha je rozdelená do štyroch priestranných miestností, samostatnej kuchyne a udržiavanej kúpeľne. Všetky miestnosti sú pohodlne prístupné zo vstupného koridoru a zabezpečujú príjemnú a praktickú dispozíciu bývania.
Srdcom bytu je otvorená obývacia a jedálenská časť s prístupom na balkón. Tu vzniká mimoriadne príjemná atmosféra – ideálna pre spoločné chvíle s rodinou a priateľmi. Balkón orientovaný do pokojného dvorového prostredia vyzýva na relaxáciu a poskytuje príjemný únik od každodenného zhonu.
Kúpeľňa je udržiavaná a vybavená vaňou, umývadlom, záchodom a uterákovým ohrievačom. Samostatná kuchyňa ponúka dostatok priestoru na varenie a každodenný rodinný život.
Ďalší úložný priestor poskytuje komora na pol ceste po schodoch a vlastnícka pivnica, ktoré zaujímavo dopĺňajú túto zaujímavú nehnuteľnosť.
Byt je súčasne prenajatý, čo predstavuje atraktívnu príležitosť aj pre kapitálových investorov. Aktuálny čistý ročný nájom činí 6 600 €. Okrem toho existuje potenciál pre budúce zhodnotenie a zvýšenie výnosov. Nehnuteľnosť obýva pokojná a spoľahlivá komunita nájomcov, ktorá dom udržiava vo veľmi dobrom stave.
Byt má solídne, udržiavané vybavenie a je prenajatý od roku 2017.
Leipziovský štvrť Anger Crottendorf je výborne prepojený s okolím (S-Bahn (MDV), električka, autobus).
Všetky základné služby sú v dostatočnej miere dostupné pešo (medzi inými supermarkety, úradmi, školami, materskými škôlkami, lekármi).
Vďaka blízkosti bezprostredne priľahlého Stünzer parku, ktorý susedí s obytnou zónou, je lokalita veľmi obľúbená.
Bez provízie pre kupujúceho
Predaj nehnuteľnosti prebieha na základe zmluvy s naším klientom. Pre vás ako kupujúceho sa nevzťahujú žiadne maklérske provízie.
Váš kontaktný pracovník
Frank Stabler
Realitný maklér
Odborník na oceňovanie zastavaných aj nezastavaných pozemkov
(certifikovaný podľa DIN ISO 17024 / PersCert)
Kurze Straße 4
04683 Naunhof
Prehliadka objektu môže byť dohodnutá po predchádzajúcej dohode, napr. s aktuálnymi nájomcami.
Výhrada zodpovednosti:
Všetky údaje a ceny sú nezáväzné a bez záväzku. Chyby alebo predčasné využitie si vyhradzujeme. Táto ponuka bola vypracovaná na základe dokumentov poskytnutých vlastníkom a jeho údajov, a to bez záruky. Právny nárok na kúpnu zmluvu vzniká až po protouprave zo strany vlastníka.
Parametre nehnuteľnosti
| Vek | Nad 50 rokov |
|---|---|
| Dispozícia | 4+1 |
| Číslo inzerátu | 1000643 |
| Cena za jednotku | 2 657 € / m2 |
| Stav | Po rekonštrukcii |
|---|---|
| Poschodie | 4. poschodie z 2 |
| Úžitková plocha | 105 m² |
Čo táto nehnuteľnosť ponúka?
| Balkón | |
| MHD 0 minút pešo |
| Pivnica |
V okolí nehnuteľnosti nájdete
Stále hľadáte to pravé?
Nastavte si strážneho psa. Ponuky vybrané na mieru dostanete súhrnne 1× denne e-mailom. S Premium profilom máte po ruke rovno 5 strážcov a keď sa niečo objaví, informujú vás obratom.


















