
Predaj bytu 3+1 • 86 m² bez realitkyJanského, Praha - Stodůlky
Janského, Praha - StodůlkyČiastočne vybavené • Výťah • Pivnica 1 m² • Lodžia 10 m²Prodej bytu 3+1, 86 m², Praha 5 – Stodůlky, ul. Jánského
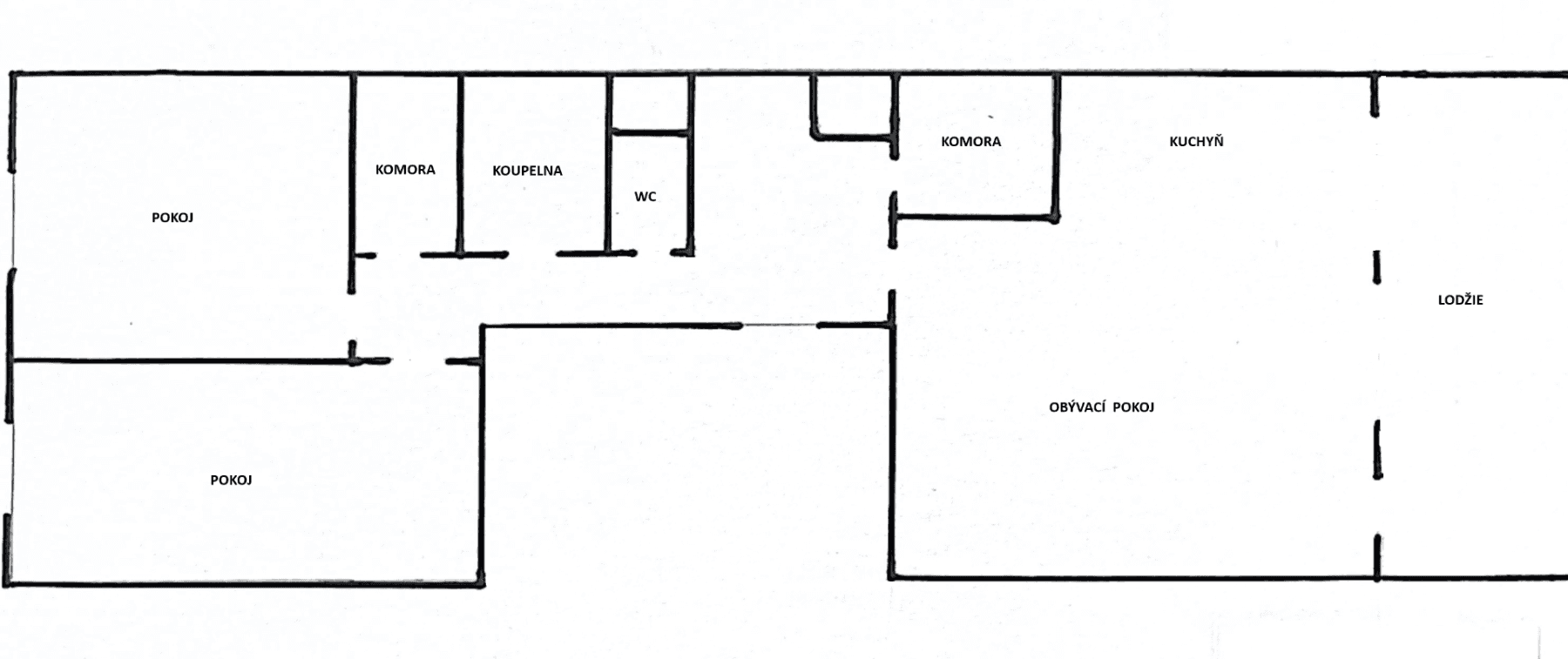
Nabízíme k prodeji prostorný byt o dispozici 3+1 s celkovou výměrou 86 m², který se nachází v klidné a vyhledávané lokalitě Praha 5 – Stodůlky, ulice Jánského.
Byt - 74,5 m2
Sklep - 1 m2
Prostorná lodžie - 10,5 m2
Byt prošel kompletní rekonstrukcí na podzim roku 2025.
Dispozice bytu nabízí obývací pokoj, kuchyň, dvě ložnice, koupelnu, samostatné WC a předsíň. Velkou výhodou jsou dvě komory, které poskytují dostatek úložného prostoru.
K bytu dále náleží velkorysá lodžie o výměře 10,5 m2.
Lokalita Stodůlek nabízí výbornou dopravní dostupnost do centra Prahy. V okolí je kompletní občanská vybavenost, včetně obchodů, škol, školek, restaurací, zdravotnických zařízení a dostatku zeleně.
Byt je ideální jak pro rodinné bydlení, tak i jako investice k pronájmu.
Pro více informací nebo sjednání prohlídky nás neváhejte kontaktovat.
Nemáme zájem o spolupráci s RK.
Parametre nehnuteľnosti
| Dostupné od | 12. 3. 2026 |
|---|---|
| Konštrukcia budovy | Panel |
| Vybavené | Čiastočne |
| Číslo inzerátu | 1000513 |
| PENB | C - Hospodárne |
| Úžitková plocha | 86 m² |
| Stav | Po rekonštrukcii |
|---|---|
| Dispozícia | 3+1 |
| Poschodie | Prízemie |
| Vlastníctvo | Osobné |
| Umiestnenie | Sídlisko |
| Cena za jednotku | 116 162,79 CZK / m2 |
Vyberáte byt?
Majte istotu, že máte všetky dôležité informácie!
Čo táto nehnuteľnosť ponúka?
| Bezbariérový prístup | |
| Výťah |
| Pivnica 1 m² | |
| Lodžia 10 m² |
V okolí nehnuteľnosti nájdete
Stále hľadáte to pravé?
Nastavte si strážneho psa. Ponuky vybrané na mieru dostanete súhrnne 1× denne e-mailom. S Premium profilom máte po ruke rovno 5 strážcov a keď sa niečo objaví, informujú vás obratom.
























