Predaj domu 5+1 • 127 m² bez realitky, Dolné Sasko
, Dolné SaskoMHD 1 minúta pešo • ParkovanieDieses charmante Reihenhaus überzeugt durch seine großzügige Raumaufteilung und eine attraktive Lage.
Tento pôvabný radový dom zaujme svojou priestrannou dispozíciou a atraktívnou polohou.
Es verfügt über zwei in Massivbauweise errichtete Vollgeschosse sowie ein nicht ausgebautes Dachgeschoss, das vielfältige Nutzungsmöglichkeiten bietet – sei es als zusätzlicher Wohnraum, Hobbyraum oder Stauraum.
Disponuje dvoma podlažiami postavenými masívnou stavbou a nevýstavbaným podkrovím, ktoré ponúka rôzne možnosti využitia – či už ako dodatočný obytný priestor, dielňa či úložný priestor.
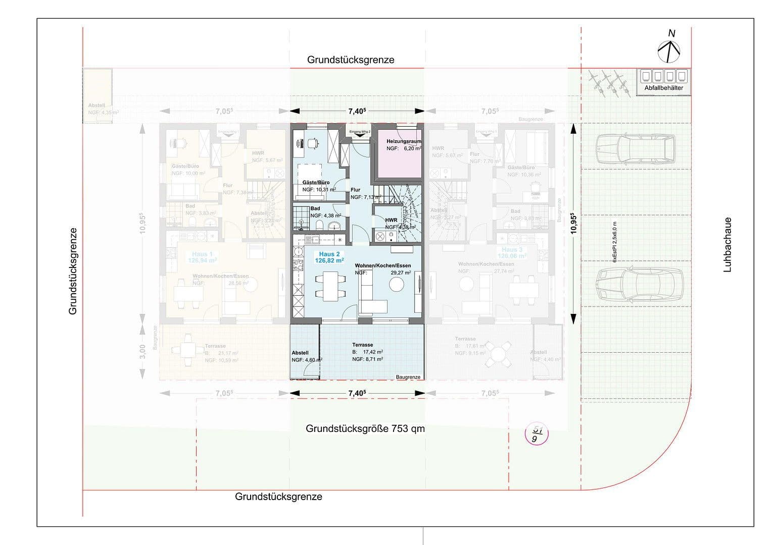
Das Reihenmittelhaus bietet im Erdgeschoss einen großzügigen Wohn-Essbereich mit Küche, Hauswirtschaftsraum, Büro/Gästezimmer oder weiteres Schlafzimmer, Gäste WC mit Dusche, sowie Diele mit Garderobe.
Stredový radový dom na prízemí ponúka priestranný obývací a jedálenský priestor s kuchyňou, prádelnou/technickou miestnosťou, kanceláriou/izbou pre hostí alebo ďalšou spálňou, hosťovskou WC so sprchou, ako aj halou s šatníkom.
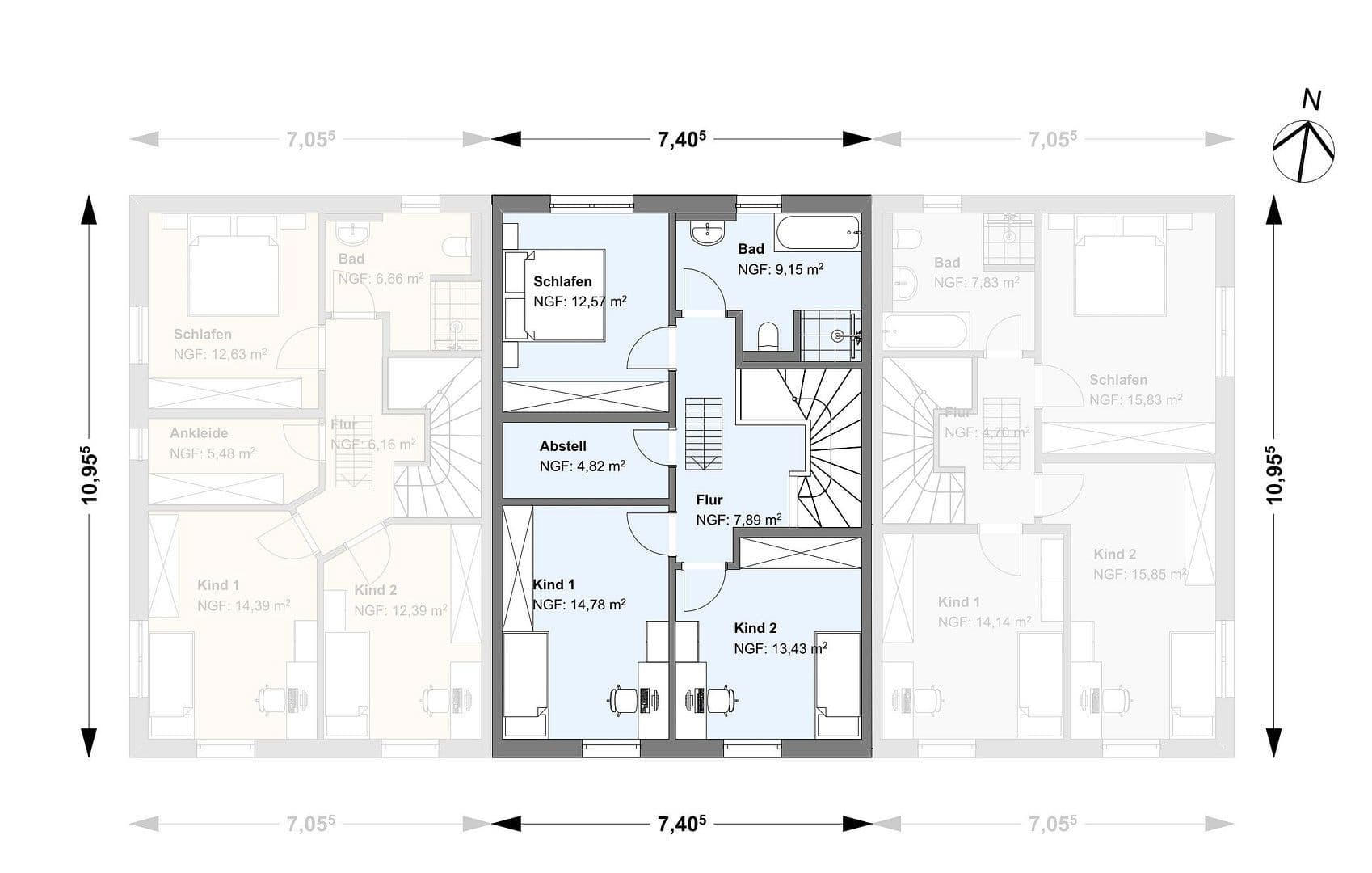
Im Obergeschoss befinden sich drei Schlafzimmer, ein Abstellraum und ein Tageslichtbad.
Na hornom podlaží sa nachádzajú tri spálne, úložná miestnosť a kúpeľňa s denným svetlom.
Das Haus ist mit einer komfortablen Fußbodenheizung, die angenehme Wärme verbreitet, sowie elektrische Rollläden, die für Sicherheit und Privatsphäre sorgen, ausgestattet.
Dom je vybavený komfortným podlahovým kúrením, ktoré zabezpečuje príjemné teplo, ako aj elektrickými žalúziami, ktoré prispievajú k bezpečnosti a súkromiu.
Auf einem attraktiven Grundstück mit insgesamt 753 m² entstehen drei noch verfügbare moderne Reihenhäuser (Ost, Mitte und West). Bei Interesse an einem Reihenendhaus (West oder Ost), kontaktieren Sie uns gerne.
Na atraktívnom pozemku s celkovou rozlohou 753 m² vznikajú tri moderné radové domy (východný, stredový a západný), ktoré sú ešte k dispozícii. Ak máte záujem o dom v koncovom rade (západný alebo východný), neváhajte nás kontaktovať.
Das Grundstück bleibt in einer Einheit, dennoch erhält jedes Haus ein eigenes Sondernutzungsrecht für Terrasse, Garten und Stellplatz.
Pozemok zostáva jednotný, avšak každý dom získa vlastné výhradné právo na využívanie terasy, záhrady a parkovacieho miesta.
Eine gemeinsame Fernwärmeübergabestation sorgt für effiziente Energieversorgung.
Spoločná ústredňa diaľkového tepla zabezpečuje efektívne dodávanie energie.
Die Südausrichtung sorgt dabei für viel Sonnenlicht und eine angenehme Atmosphäre im Außenbereich.
Južná orientácia zaručuje veľa slnečného svetla a príjemnú atmosféru vonkajšieho priestoru.
Die Grundrisse und die Ausstattung sind derzeit noch Variabel gestaltbar.
Pôdorysy a vybavenie sú v súčasnosti ešte variabilne upraviteľné.
Alle Häuser bieten flexible Grundrisse und können nach Ihren Wünschen angepasst werden.
Všetky domy ponúkajú flexibilné pôdorysy a môžu byť prispôsobené podľa vašich predstáv.
Auch die Schaffung von zwei Wohneinheiten innerhalb eines Hauses ist denkbar, um Kosten zu optimieren oder mehrere Generationen unterzubringen.
Takisto je možné vytvorenie dvoch obytných jednotiek v rámci jedného domu, čo umožňuje optimalizovať náklady alebo ubytovať viacero generácií.
Diese Immobilie bietet eine ideale Kombination aus Wohnkomfort, Flexibilität und einer sonnigen Lage – perfekt für Familien oder Paare, die ein Zuhause mit Potenzial suchen.
Táto nehnuteľnosť ponúka ideálnu kombináciu obytného komfortu, flexibility a slnečnej polohy – ideálna pre rodiny alebo páry, ktoré hľadajú domov s potenciálom.
Sie erwerben hier nicht nur ein Haus, sondern ein architektonisch durchdachtes Zuhause, das mit Fachkompetenz geplant, von regionalen Handwerkern gebaut und durch ein Architekturbüro professionell begleitet wird – für höchste Qualität, Transparenz und langfristige Sicherheit.
Tu nadobúdavate nielen dom, ale aj architektonicky premyslený domov, ktorý bol navrhnutý s odbornou kompetenciou, postavený regionálnymi remeselníkmi a profesionálne sprevádzaný architektonickou kanceláriou – zaručujúc najvyššiu kvalitu, transparentnosť a dlhodobú istotu.
Das Neubaugebiet "Luhbach Auen" befindet sich südlich der Straße Kampweg in Rosdorf.
Novostavbové územie "Luhbach Auen" sa nachádza južne od ulice Kampweg v Rosdorfe.
Eine attraktive Gemeinde, die durch ihre ruhige und familienfreundliche Atmosphäre besticht.
Je to atraktívna obec, ktorá oslovuje svojou pokojnou a rodinne prívetivou atmosférou.
Die Lage bietet eine perfekte Balance zwischen Natur und Nähe zur Stadt.
Poloha ponúka dokonalú rovnováhu medzi prírodou a blízkosťou mesta.
Einkaufsmöglichkeiten, Schulen, Kindergärten und medizinische Versorgung sind bequem erreichbar.
Obchodné možnosti, školy, materské školy a zdravotná starostlivosť sú ľahko dostupné.
Der Ort verfügt über eine gute Verkehrsanbindung, was den Weg in die nahegelegene Stadt Göttingen erleichtert.
Obec má dobré dopravné spojenie, čo uľahčuje cestu do blízkeho mesta Göttingen.
Das macht Rosdorf zu einem idealen Ort für Familien, die ein ruhiges Zuhause suchen, aber trotzdem die Nähe zu urbanen Angeboten schätzen.
To robí z Rosdorfu ideálne miesto pre rodiny, ktoré hľadajú pokojný domov, ale zároveň ocenia blízkosť mestských možností.
Die Kombination aus Natur, guter Infrastruktur und einer freundlichen Nachbarschaft macht Rosdorf so beliebt.
Kombinácia prírody, dobrej infraštruktúry a priateľského susedstva robí Rosdorf tak obľúbeným.
Hier finden Sie ein Zuhause in einer ruhigen, aber dennoch gut angebundenen Lage.
Tu nájdete domov v pokojnej, ale zároveň dobre dostupnej lokalite.
Dank Glasfaser im Neubaugebiet ist ein 1 Gigabite Hausanschluss möglich.
Vďaka optickému vláknu v novostavbe je možný pripojovací linka s rýchlosťou 1 Gigabit.
Im Angebotspreis sind u.a. der Grundstücksanteil, PKW-Stellplatz, Photovoltaikanlage, Pflasterung der Zuwegung sowie die Hausanschlüsse wie Strom, Wasser, Fernwärme und Telekom enthalten.
V ponúkanej cene je okrem iného aj podiel na pozemku, parkovacie miesto pre automobil, fotovoltaická elektráreň, dlažba prístupovej cesty, ako aj domáce pripojenia ako elektrina, voda, diaľkové teplo a telekomunikácie.
Das Gebäude wird mit Fernwärme der Biogas Göttingen GmbH versorgt.
Budova je zásobovaná diaľkovým teplom od spoločnosti Biogas Göttingen GmbH.
Finanzierungsvorteil durch KfW-Effizienzhausstandard
Finančná výhoda vďaka štandardu KfW účinného domu
Das Gebäude erfüllt den energieeffizienten Baustandard Effizienzhaus 55 und ermöglicht damit den Zugang zu zinsgünstigen KfW-Förderkrediten.
Budova spĺňa energeticky efektívny stavebný štandard Effizienzhaus 55, čo umožňuje prístup k úverom podporovaným KfW so zvýhodneným úročením.
Aktuell sind Förderdarlehen teilweise bereits ab etwa 1 % Zins p. a. erhältlich – ein erheblicher Vorteil gegenüber üblichen Baufinanzierungen.
Momentálne sú podporné úvery čiastočne dostupné už s úrokom okolo 1 % ročne – čo predstavuje výraznú výhodu oproti obvyklému financovaniu výstavby.
Nutzen Sie diese Chance für eine langfristig günstige Finanzierung.
Využite túto príležitosť na dlhodobo výhodné financovanie.
Nähere Informationen erhalten Sie direkt vom Verkäufer.
Podrobnejšie informácie získate priamo od predávajúceho.
Es entstehen Ihnen KEINE Makler- oder Provisionskosten.
Nebudú Vám vzniknuté žiadne poplatky sprostredkovateľovi ani provízie.
Wir freuen uns auf Ihre Zuschrift. Bitte haben Sie Verständnis, dass nur Anfragen mit vollständigem Namen, Telefonnummer, E-Mail-Adresse beantwortet werden.
Tešíme sa na Váš list. Prosím, majte na zreteli, že odpovedáme iba na dopyty s úplným menom, telefónnym číslom a e-mailovou adresou.
Selbstverständlich werden diese Kontaktdaten vertraulich behandelt und nicht weitergegeben.
Tieto kontaktné údaje budú samozrejme spracované dôverne a nebudú ďalej odovzdané.
Von Makleranfragen bitten wir abzusehen.
Prosíme, zdržte sa záujmu sprostredkovateľov.
Parametre nehnuteľnosti
| Vek | Nad 50 rokov |
|---|---|
| Stav | Novostavba |
| Číslo inzerátu | 1000390 |
| Plocha pozemku | 753 m² |
| Cena za jednotku | 4 087 € / m2 |
| Dostupné od | 1. 6. 2027 |
|---|---|
| Dispozícia | 5+1 |
| Úžitková plocha | 127 m² |
| Celkové poschodia | 2 |
Čo táto nehnuteľnosť ponúka?
| Parkovanie | |
| Terasa |
| MHD 1 minúta pešo |
V okolí nehnuteľnosti nájdete
Stále hľadáte to pravé?
Nastavte si strážneho psa. Ponuky vybrané na mieru dostanete súhrnne 1× denne e-mailom. S Premium profilom máte po ruke rovno 5 strážcov a keď sa niečo objaví, informujú vás obratom.











