
Prenájom bytu 2+1 • 57 m² bez realitkyGerresheimer Straße 104, , Severné Porýnie - Westfálsko
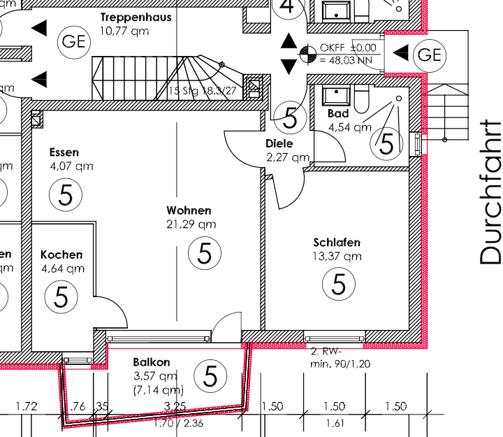
Gerresheimer Straße 104, , Severné Porýnie - WestfálskoMHD do minúty pešo • ParkovaniePonúkaný byt č. 5 zaujme praktickým a dobre využiteľným pôdorysom s príjemným rozdelením miestností. Disponuje priestranným obývacím priestorom s približne 21,29 m², ktorý ponúka veľa miesta na bývanie a stolovanie a tvorí centrálny bod bytu. Odtiaľto je zabezpečený aj prístup na balkón, ktorý s približne 3,57 m² poskytuje dodatočný voľný priestor v každodennom živote.
Byt je doplnený dobre navrhnutou spálňou s približne 13,37 m², ktorá je ideálna ako tiché útočisko. Samostatná kuchyňa s približne 4,64 m² je funkčne zariadená a ponúka krátke vzdialenosti. Priľahlá jedálenská časť s približne 4,07 m² poskytuje dodatočný priestor pre malý jedálenský kút alebo praktické rozšírenie obývacej časti.
Kúpeľňa s približne 4,54 m² je kompaktná a funkčne usporiadaná. Všetky miestnosti sú z chodby dobre prístupné, takže vzniká príjemná a každodenne použiteľná obytná štruktúra.
Celkovo ide o svetlý a dobre rozdelený byt, ktorý je obzvlášť vhodný pre single alebo páry. Balkón, ako aj jasné oddelenie obývacej, spálňovej a kuchynskej časti, podčiarkujú atraktívne usporiadanie.
Poznámka:
Ďalšie obrázky bytu momentálne bohužiaľ nie je možné poskytnúť, pretože byt je aktuálne ešte prenajatý. Pred nasťahovaním môže byť byt odovzdaný po renovácii; alternatívne je možná aj realizácia renovácie vlastnými silami. Podrobnosti je možné individuálne dohodnúť.
Požadovaná lokalita bývania na severe Hilden:
- Dobrá dostupnosť k diaľniciam A3, A46 a A59
- Mestská dráha S-Bahn S1 v Hilden s rýchlym spojením do Düsseldorfu, Solingenu a Dortmundu
- Hlavná stanica Düsseldorf cca 14 minút, letisko Düsseldorf cca 27 minút mestskou dráhou
- Autobusová doprava v oblasti školského centra na ulici Gerresheimer
- Dobrá občianska vybavenosť a nákupné možnosti v meste
- Centrum Hilden s pešou zónou, maloobchodom a gastronómiou
- Týždenné trhy v centre a na severe mesta
- Niekoľko stredných škôl priamo v okolí
- Dobrá dostupnosť pešo a na bicykli
- Hudobná škola a ďalšie kultúrne zariadenia v Hilden
- Oddych pri meste vďaka mestskému lesu a voľnočasovým aktivitám v meste
- Atraktívna lokalita pre dochádzajúcich, rodiny a všetkých, ktorí ocenia krátke vzdialenosti
Parametre nehnuteľnosti
| Dostupné od | 15. 4. 2026 |
|---|---|
| Dispozícia | 2+1 |
| Úžitková plocha | 57 m² |
| Stav | Dobrý |
|---|---|
| Číslo inzerátu | 1000299 |
| Cena za jednotku | 11 € / m2 |
Čo táto nehnuteľnosť ponúka?
| Balkón | |
| MHD 0 minút pešo |
| Parkovanie |
V okolí nehnuteľnosti nájdete
Stále hľadáte to pravé?
Nastavte si strážneho psa. Ponuky vybrané na mieru dostanete súhrnne 1× denne e-mailom. S Premium profilom máte po ruke rovno 5 strážcov a keď sa niečo objaví, informujú vás obratom.





