
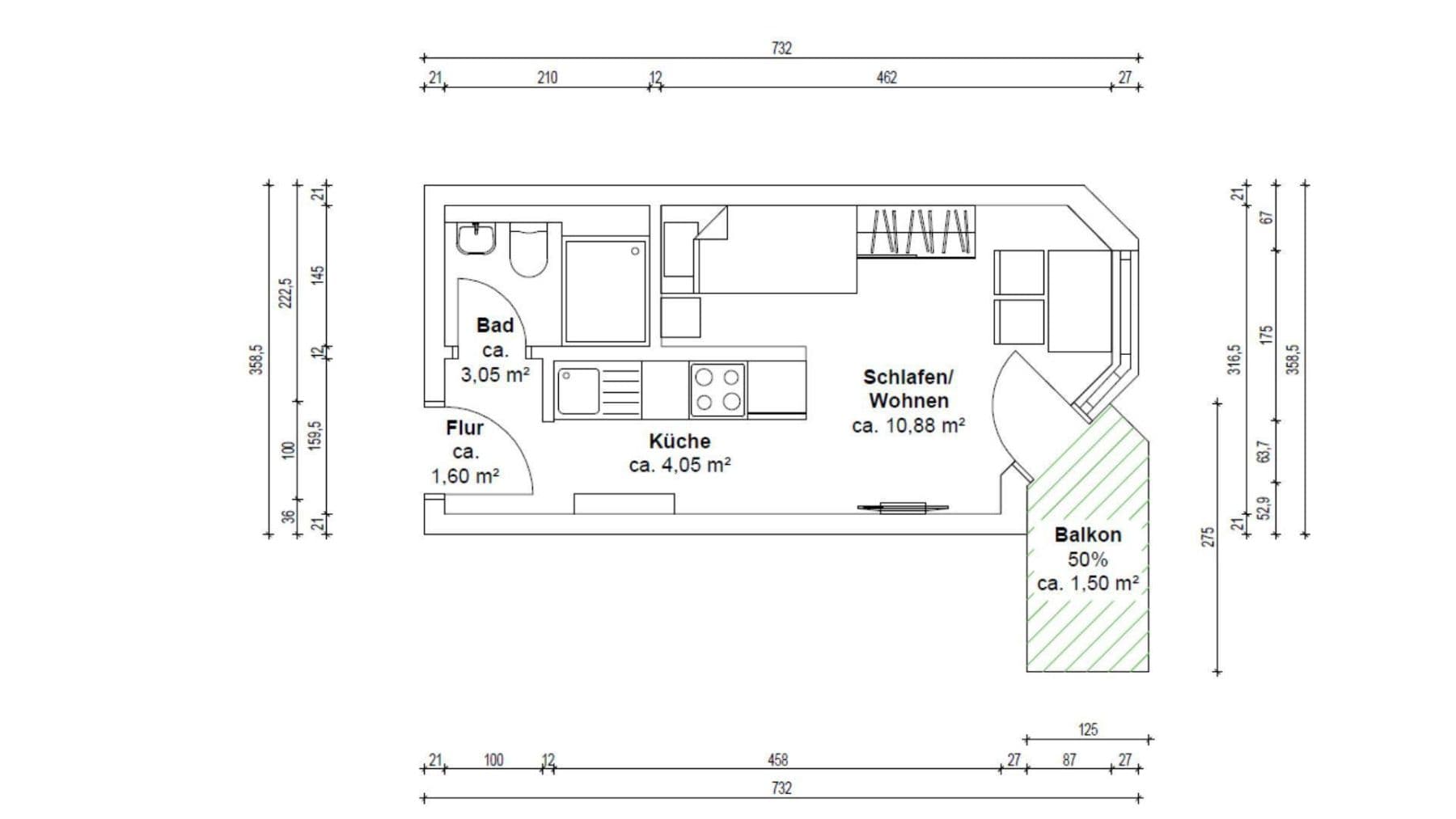
Prenájom bytu 1+1 • 21 m² bez realitkyL7, 6a Mannheim Mannheim Baden-Württemberg 68161
L7, 6a Mannheim Mannheim Baden-Württemberg 68161MHD 2 minúty pešo • Vybavené • Výťah • ParkovanieDieses frisch sanierte und hochwertig ausgestattete 1-Zimmer-Apartment in absoluter Toplage von Mannheim bietet auf ca. 21 m² ein durchdachtes Wohnkonzept mit außergewöhnlich hoher Wohnqualität. Die Wohnung befindet sich im 1. Obergeschoss eines gepflegten Hauses mit Aufzug und überzeugt durch modernes Design, helle Wände, einen hochwertigen Boden sowie eine optimale Nutzung der Fläche.
Der Grundriss ist so gestaltet, dass Wohnen, Schlafen, Arbeiten und Essen trotz kompakter Größe angenehm und funktional miteinander verbunden werden. Die Wohnung wird voll möbliert vermietet und ist damit sofort bezugsfertig – ideal für Studierende, Doktoranden, Dozenten und Young Professionals.
Die Lage in L7, 6a ist für die Zielgruppe schlicht herausragend: Das Gebäude liegt direkt neben dem Mannheimer Schloss bzw. der Universität Mannheim und gehört zu den begehrtesten Wohnlagen für Studierende und akademisch geprägte Mieter in ganz Mannheim. Kürzere Wege zur Uni sind praktisch nicht möglich. Gleichzeitig profitiert man von der zentralen Innenstadtlage mit perfekter Anbindung, kurzen Wegen zum Hauptbahnhof, Einkaufsmöglichkeiten, Gastronomie und allem, was den Alltag angenehm macht. Die Nachfrage in dieser Mikrolage ist seit Jahren außergewöhnlich hoch.
Zur Ausstattung gehören unter anderem Bett mit Matratze, Ess-/Schreibtisch, Stühle, Kleiderschrank, Schuhschrank, Regalsystem, diverse Kleinmöbel sowie ein großer Samsung Smart-TV. Ein durchdachtes Beleuchtungssystem mit getrennten Lichtzonen und zahlreiche Steckdosen schaffen zusätzlichen Komfort im Alltag.
Besonders hervorzuheben ist die hochwertige Einbauküche, die für ein Apartment dieser Größe außergewöhnlich gut ausgestattet ist: vollwertiger 4-Platten-Herd, Backofen, Abluft-Abzugshaube, Mikrowelle, Kühl-/Gefrierschrank sowie eine eigene Waschmaschine. Das moderne Bad verfügt über Dusche, Waschbecken, WC und Abluft.
Ein echtes Plus ist zudem der ruhige, überdachte Balkon mit Südwest-Ausrichtung zum Innenhof, der zusätzlichen Wohnwert bietet. Ergänzt wird das Angebot durch einen Tiefgaragenstellplatz (Parkplätze in dieser Lage sind Gold wert) sowie einen Fahrradschuppen im Hof.
Die Vermietung erfolgt pauschal warm / all-inclusive. In der Miete enthalten sind unter anderem Heizung, Wasser, Strom, WLAN, Müll, Versicherungen, Steuern etc. – ein rundum sorgenfreies Wohnangebot ohne zusätzliche Einzelabrechnungen.
-------------------------------------------------------------------
Preklad do slovenčiny:
Tento čerstvo zrekonštruovaný a vysoko kvalitne vybavený 1-izbový apartmán v absolútne atraktívnej lokalite v Mannheime ponúka na približne 21 m² premyslený koncept bývania s mimoriadne vysokou kvalitou. Byt sa nachádza v 1. nadzemnom podlaží udržiavaného domu s výťahom a zaujme moderným dizajnom, svetlými stenami, kvalitnou podlahou a optimálnym využitím priestoru.
Dispozícia je navrhnutá tak, aby boli bývanie, spánok, práca a stolovanie príjemne a funkčne prepojené, aj keď ide o kompaktnejšie priestory. Byt je kompletne zariadený a je tak okamžite pripravený na nasťahovanie – ideálny pre študentov, doktorandov, pedagógov a mladých profesionálov.
Lokalita L7, 6a je pre cieľovú skupinu jednoducho výnimočná: Budova sa nachádza priamo vedľa Mannheimer Schloss či Univerzity Mannheim a patrí medzi najžiadanejšie rezidenčné lokality pre študentov a akademicky zmýšľajúcich nájomcov v celom Mannheime. Skrátenie ciest na univerzitu prakticky nie je možné. Zároveň však ťažíte z centrálnej polohy v centre mesta s dokonalým napojením, krátkymi cestami na hlavné nádražie, obchodmi, stravovacími zariadeniami a všetkým, čo spríjemňuje každodenný život. Dopyt v tejto mikro-lokácii je už roky mimoriadne vysoký.
Medzi vybavenie patrí mimo iného posteľ s matracou, jedálenský/studijný stôl, stoličky, šatník, skriňa na topánky, regálový systém, rôzny menší nábytok a veľká Samsung Smart-TV. Premyslený osvetľovací systém s oddelenými svetelnými zónami a početné zásuvky poskytujú dodatočný komfort v každodennom živote.
Obzvlášť je potrebné vyzdvihnúť vysoko kvalitnú zabudovanú kuchyňu, ktorá je pre apartmán tejto veľkosti mimoriadne dobre vybavená: plnohodnotná varná doska so štyrmi hořákmi, rúra, odsávač par, mikrovlnka, chladnička s mrazákom a vlastná práčka. Moderná kúpeľňa disponuje sprchou, umývadlom, toaletou a systémom odsávania vzduchu.
Skutočným plusom je navyše tichý, prístrešný balkón so smerovaním na juhozápad do vnútorného dvoru, ktorý ponúka dodatočnú hodnotu bývania. Ponuku dopĺňa aj podzemné parkovacie miesto (parkovacie miesta v tejto oblasti sú na wagáži) a bicyklový prístrešok vo dvore.
Prenájom prebieha paušálne vrátane všetkých poplatkov / all-inclusive. V nájomnom je zahrnuté okrem iného vykurovanie, voda, elektrina, WLAN, odvoz odpadu, poistenie, dane a pod. – ide o bezstarostnú ponuku bývania bez dodatočných samostatných vyúčtovaní.
Parametre nehnuteľnosti
| Vek | Nad 50 rokov |
|---|---|
| Dispozícia | 1+1 |
| Poschodie | 1. poschodie z 5 |
| Úžitková plocha | 21 m² |
| Stav | Po rekonštrukcii |
|---|---|
| Vybavené | Vybavené |
| Číslo inzerátu | 1000255 |
| Cena za jednotku | 47 € / m2 |
Čo táto nehnuteľnosť ponúka?
| Balkón | |
| Parkovanie |
| Výťah | |
| MHD 2 minúty pešo |
V okolí nehnuteľnosti nájdete
Stále hľadáte to pravé?
Nastavte si strážneho psa. Ponuky vybrané na mieru dostanete súhrnne 1× denne e-mailom. S Premium profilom máte po ruke rovno 5 strážcov a keď sa niečo objaví, informujú vás obratom.

















