
Predaj bytu 4+1 • 100 m² bez realitkyIm Ganggarten 2a, , Porýnie-Falcko
Im Ganggarten 2a, , Porýnie-FalckoMHD 2 minúty pešoV roku 2004 postavený vlastný byt v starostlivo udržiavanom viacrodinnom dome spája otvorený, priestranný dizajn s kompaktnou efektivitou. Výborné usporiadanie štyroch izieb umožňuje flexibilné využitie – ideálne pre rodiny alebo pre kombináciu bývania a práce z domu.
Osobitným znakom je mimoriadne svetlý dojem z priestoru: od podlahy až po strop, dvojkrídlové okná zabezpečujú vysoký prísun denného svetla a vytvárajú príjemnú atmosféru. Balkón orientovaný na juh rozširuje obytný priestor do exteriéru.
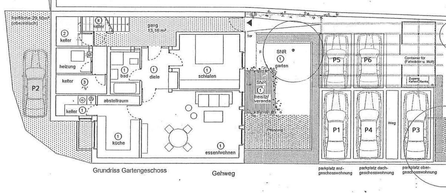
Nehnuteľnosť je vo veľmi udržiavanom stave a ponúka dodatočný úložný priestor vďaka vlastnej pivnici. Do dvoch parkovacích miest priamo pri objekte je možné voliteľne investovať.
Byt disponuje prvkami, ktoré podporujú pohodlné bývanie až do vysokej veku a čiastočne ho robia prispôsobeným pre seniorov:
Prístupnosť: Jednotka je takmer prístupná na prízemnej úrovni. Hoci objekt nie je úplne bez prahu, malé výškové rozdiely v prístupovej zóne výrazne uľahčujú každodenný život. Jedna z dvoch kúpeľní je vybavená sprchou bez prahu, čo podstatne zvyšuje komfort a bezpečnosť pri používaní kúpeľne.
Objekt sa nachádza v pokojnej obytné oblasti ustáleného moselského sídla s kompletnou infraštruktúrou.
Dostupnosť: Mesto Trier je dostupné za menej ako 20 minút. Geografická poloha zároveň ponúka vynikajúce spojenie pre dochádzajúcich do Luxemburska.
Blízkosť služieb: Základná škola, materská škola, obchody pre každodenné potreby a gastronomické zariadenia sa nachádzajú priamo na mieste.
Okolie: Okolie sa vyznačuje pokojnou obytnou atmosférou v blízkosti viníc, pričom nezanedbáva výhody rýchleho spojenia s regionálnymi centrami.
Technické vybavenie bytu je navrhnuté s ohľadom na komfort a dlhodobú použiteľnosť:
Energetický koncept pripravený na budúcnosť
Objekt je už pripravený na budúce energetické požiadavky. Vďaka existujúcemu podlahovému vykurovaniu a vyhradenému miestu pre tepelné čerpadlo je technicky bezproblémový prechod na obnoviteľné zdroje energie možný. Momentálne sa vykurovanie zabezpečuje pomocou ropy.
Komfort: Všetky okná sú vybavené elektrickými žalúziami. Účtovanie nákladov na vodu a elektrinu prebieha samostatne pre každú bytovú jednotku.
Sanitárie: Byt disponuje dvoma plnohodnotnými kúpeľňami – jednou so sprchou a samostatnou kúpeľňou s vaňou.
Kuchyňa: Zabudovaná kuchyňa patrí nájomcovi a preto nie je súčasťou predajnej ponuky.
Vlastné využitie a plánovanie: Byt je momentálne prenajatý. Pre budúcich užívateľov platí zákonná výpovedná lehota deväť mesiacov, čo kupujúcim poskytuje spoľahlivý plánovací rámec pre sťahovanie, pričom prebiehajúce príjmy z nájmu prispievajú k pokrytiu nákladov počas prechodného obdobia.
Podmienky: Kúpna cena je 295 000 € s voliteľnou možnosťou zakúpenia parkovacích miest.
Možnosť rozšírenia: V rovnakom objekte je momentálne na predaj aj ďalšia obytná jednotka, čo otvára zaujímavé perspektívy pre viacgeneračné modely alebo kombinované využitie vlastného bývania a investície.
Parametre nehnuteľnosti
| Vek | Nad 50 rokov |
|---|---|
| Dispozícia | 4+1 |
| Úžitková plocha | 100 m² |
| Stav | Dobrý |
|---|---|
| Číslo inzerátu | 1000052 |
| Cena za jednotku | 2 950 € / m2 |
Čo táto nehnuteľnosť ponúka?
| Balkón | |
| MHD 2 minúty pešo |
| Pivnica |
V okolí nehnuteľnosti nájdete
Stále hľadáte to pravé?
Nastavte si strážneho psa. Ponuky vybrané na mieru dostanete súhrnne 1× denne e-mailom. S Premium profilom máte po ruke rovno 5 strážcov a keď sa niečo objaví, informujú vás obratom.










