
Prenájom bytu 3+1 • 64 m² bez realitkyFrau-Clara-Straße 3, , Šlezvicko-Holštajnsko
Frau-Clara-Straße 3, , Šlezvicko-HolštajnskoMHD 4 minúty pešoDôkladne zrekonštruovaný podkrovný byt s balkónom v centre mesta
Voľný od 01.04.2026
Ideálny pre jednotlivcov alebo páry, ktorí ocenia štýlové bývanie v historicky chránenom prostredí. Vďaka dispozícii je možné uvažovať aj o spolubývaní.
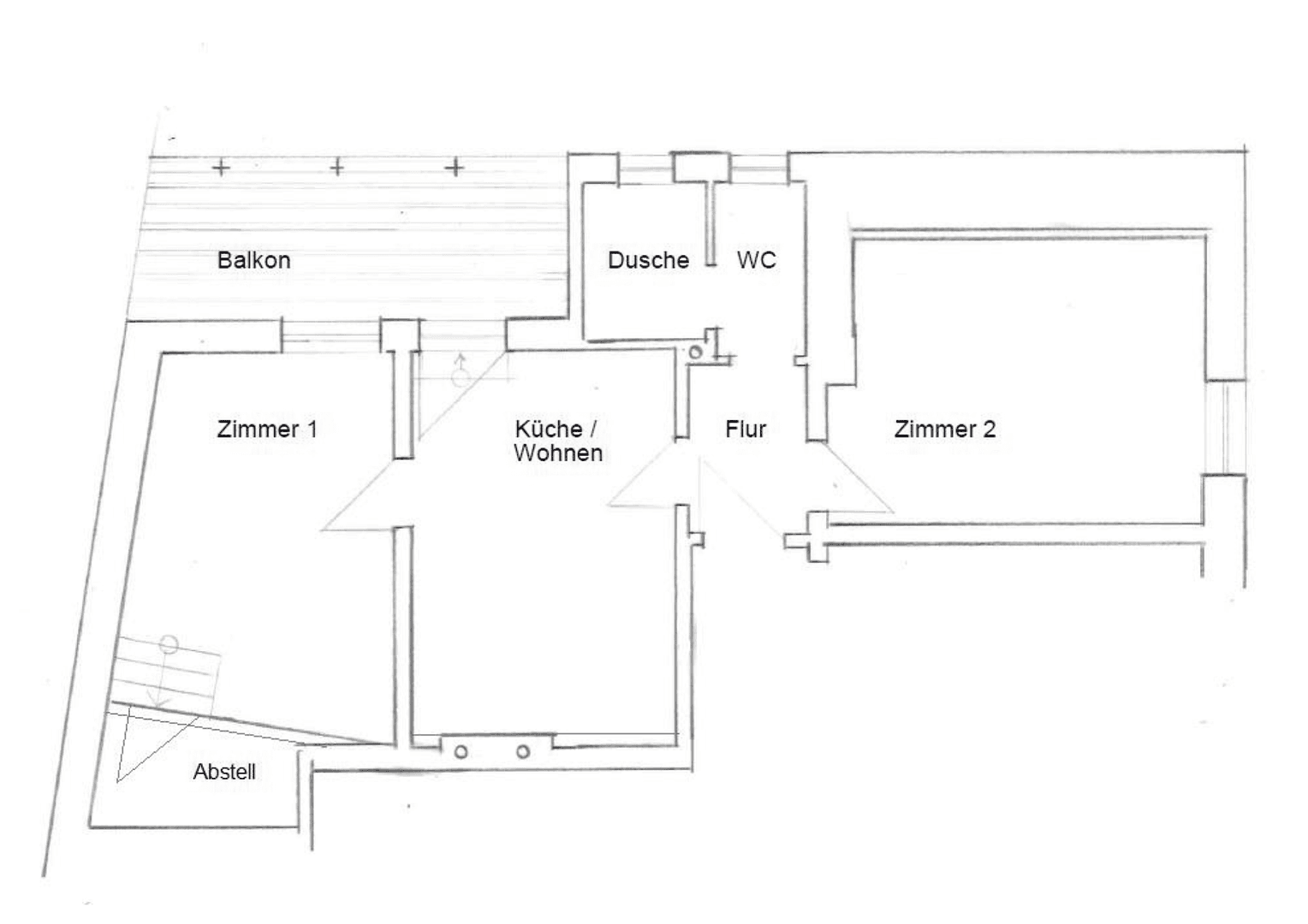
Tento vysoko kvalitne zrekonštruovaný podkrovný byt sa nachádza v historicky chránenom dome v centre Eckernförde. Byt je umiestnený na zadnej strane domu (vzdialenej od ulice) na 3. poschodí.
Fakty k bytu:
- Veľká obývacia kuchyňa
- Nová kompaktná vstavaná kuchyňa
- Dve oddelené izby
- Slnečný balkón (prístup z kuchyne)
- Moderná sprchovňa s oknom
- Prípojka pre práčku v byte
- Rustikálna drevená podlaha
- Samostatná úložná miestnosť
- Prvý bývanie po dôkladnej rekonštrukcii
- cca 64 m² obytná plocha (podľa DIN 277)
- Dodatočná pivnica
Parkovacie miesto nie je k dispozícii.
Výťah nie je k dispozícii (3. poschodie)
Ostatné:
- Čistenie schodiska sa strieda (každých dva týždne jedno poschodie)
- Čoskoro sa uskutoční rekonštrukcia strechy a fasády budovy
- Optické vlákno prevedené až do pivnice (ešte neaktivované)
NÁJOMNÉ PODMIENKY:
Základné nájomné: 980,00 €
Provozné/vedľajšie náklady: 300,00 €
Celkové nájomné: 1.280,00 €
Vedľajšie náklady zahŕňajú:
Kúrenie, studená a teplá voda, odvoz odpadu, pozemková daň, poistenie, zimná údržba a služby domovníka.
Nájomcom osobitne uzatvoriť:
Elektrina, telekomunikácie, káblová televízia, internet
Kauce:
2 základné nájomné (1.960,00 €) pred odovzdaním kľúčov
(Platiteľné prevodom, cez sporiaci účet/zástavu, poistením alebo v hotovosti)
DÔLEŽITÉ PRE TERMÍN PREHLADKY:
Prosím, pošlite nám tieto informácie; následne vás budeme kontaktovať ohľadom termínu prehliadky:
- Meno, vek, bydlisko, prípadne kontaktné údaje, ak si želáte priamy kontakt
- Kto bude byt obývať? (uveďte meno, vek – pri deťoch nie je potrebné uvádzať meno)
- Prečo sa chcete presťahovať?
- Máte záujem o dlhodobý nájomný vzťah?
- Ste zamestnaní v nerozviazanom a neurčitom pracovnom pomere?
- Máte iné príjmy (dôchodky, alimentačné platby atď., príjmy zo samostatnej zárobkovej činnosti)?
- Je váš čistý rodinný príjem medzi 2.000 a 2.300 € mesačne alebo je vyšší/nižší?
- Máte záväzky? (pôžičky, alimentačné platby atď.)? Uveďte, prosím, ich mesačnú výšku.
- Máte domáce zvieratá? Ak áno, aké?
- Výpis zo Schufy
Prosím, majte na zreteli, že bez odpovedí na tieto otázky a bez zaslania výpisu zo Schufy vám nebudeme môcť ponúknuť termín prehliadky.
Nachádza sa v centre Eckernförde; k bytu nepatrí parkovacie miesto
DÔLEŽITÉ PRE TERMÍN PREHLADKY:
Prosím, pošlite nám tieto informácie; následne vás budeme kontaktovať ohľadom termínu prehliadky:
- Meno, vek, bydlisko, prípadne kontaktné údaje, ak si želáte priamy kontakt
- Kto bude byt obývať? (uveďte meno, vek – pri deťoch nie je potrebné uvádzať meno)
- Prečo sa chcete presťahovať?
- Máte záujem o dlhodobý nájomný vzťah?
- Ste zamestnaní v nerozviazanom a neurčitom pracovnom pomere?
- Máte iné príjmy (dôchodky, alimentačné platby atď., príjmy zo samostatnej zárobkovej činnosti)?
- Je váš čistý rodinný príjem medzi 2.000 a 2.300 € mesačne alebo je vyšší/nižší?
- Máte záväzky? (pôžičky, alimentačné platby atď.)? Uveďte, prosím, ich mesačnú výšku.
- Máte domáce zvieratá? Ak áno, aké?
- Výpis zo Schufy
Prosím, majte na zreteli, že bez odpovedí na tieto otázky a bez zaslania výpisu zo Schufy vám nebudeme môcť ponúknuť termín prehliadky.
Parametre nehnuteľnosti
| Vek | Nad 50 rokov |
|---|---|
| Stav | Po rekonštrukcii |
| Poschodie | 3. poschodie |
| PENB | F - veľmi nehospodárne |
| Cena za jednotku | 15 € / m2 |
| Dostupné od | 1. 4. 2026 |
|---|---|
| Dispozícia | 3+1 |
| Číslo inzerátu | 1000005 |
| Úžitková plocha | 64 m² |
Čo táto nehnuteľnosť ponúka?
| Balkón | |
| MHD 4 minúty pešo |
| Pivnica |
V okolí nehnuteľnosti nájdete
Stále hľadáte to pravé?
Nastavte si strážneho psa. Ponuky vybrané na mieru dostanete súhrnne 1× denne e-mailom. S Premium profilom máte po ruke rovno 5 strážcov a keď sa niečo objaví, informujú vás obratom.













