
Predaj pozemku • 2023 m² bez realitkyŽitná, Mělník - Mělník, Středočeský kraj
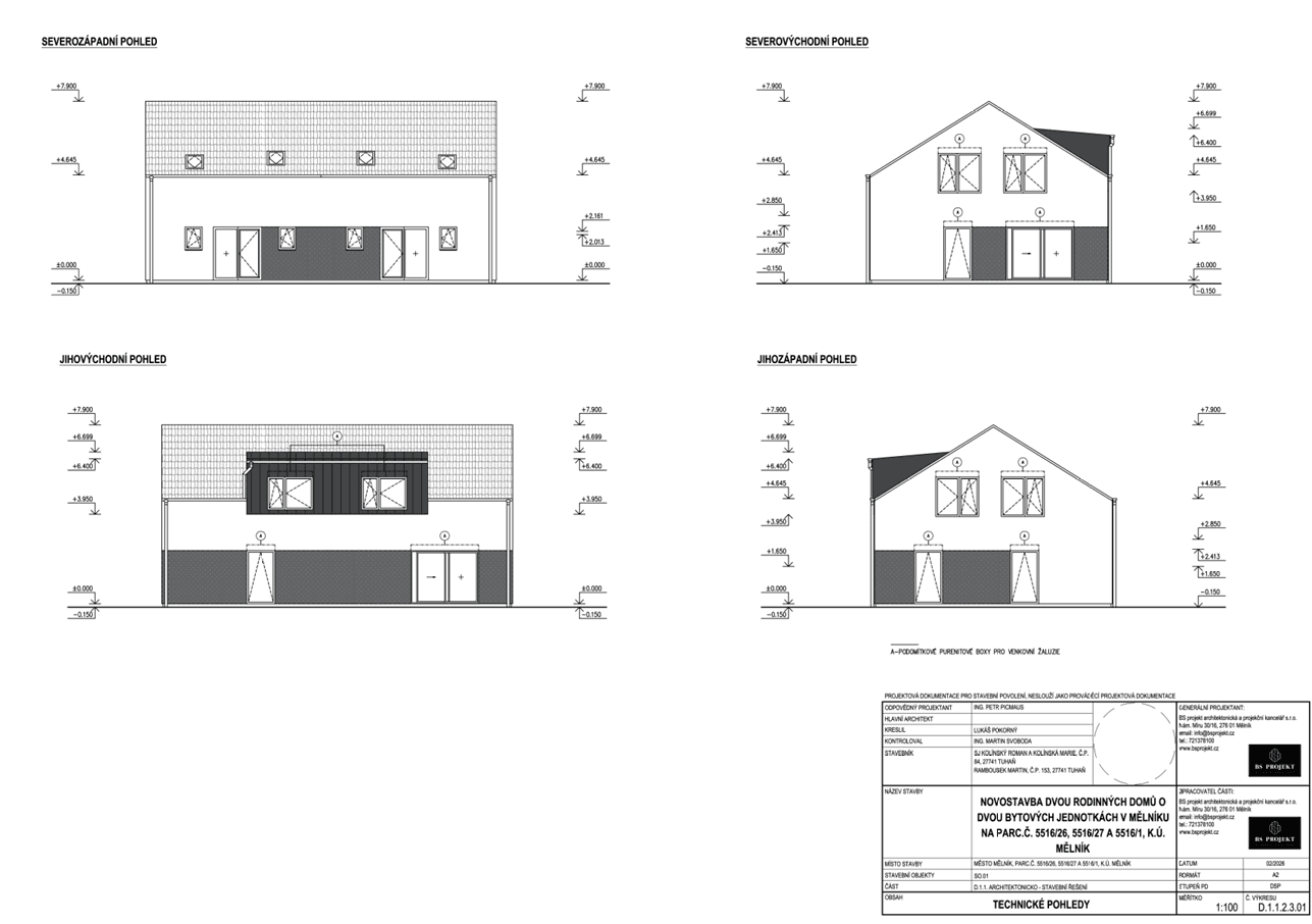
Nabízím k prodeji investiční pozemek s kompletní projektovou dokumentací na výstavbu dvou samostatně stojících rodinných domů, přičemž každý dům obsahuje dvě bytové jednotky, tedy celkem čtyři bytové jednotky. Projekt se nachází v atraktivní lokalitě Mělník – Chloumek.
Projekt je aktuálně ve fázi stavebního řízení. Součástí prodeje je pozemek určený k výstavbě dle územního plánu a kompletní projektová dokumentace splňující energetickou náročnost třídy B, tedy velmi úspornou budovu, včetně návrhu napojení na inženýrské sítě.
Předmětem prodeje je výhradně pozemek s projektem. Realizaci stavby prodávající nezajišťuje.
Každá bytová jednotka je navržena o dispozici 4+kk s užitnou plochou 123 m² a s vlastním pozemkem o velikosti přibližně 392 m². Součástí návrhu jsou dvě parkovací stání ke každé jednotce a zdvojené sousední zdi pro vyšší akustický komfort. Dispoziční řešení je moderní a praktické.
Mělník nabízí kompletní občanskou vybavenost, historické centrum i výbornou dostupnost do Prahy, přibližně 30 minut jízdy autem. Lokalita Chloumek poskytuje klidné rezidenční prostředí s blízkostí přírody i dobrou dopravní obslužností.
Cena za celek 15 960 000 Kč, bližší informace k ekonomice projektu na vyžádání.
Parametre nehnuteľnosti
| Dostupné od | 25. 2. 2026 |
|---|---|
| Typ pozemku | Stavebný |
| Plocha pozemku | 2 023 m² |
| Číslo inzerátu | 994775 |
|---|---|
| Vlastníctvo | Osobné |
| Cena za jednotku | 7 889 CZK / m2 |
V okolí nehnuteľnosti nájdete

Predaj pozemkuU Křížku, Husinec - Husinec u Řeže, Středočeský kraj- 1347 m²
13 490 000 CZK13 990 000 CZK
Ušetríte 500 000 CZK
Stále hľadáte to pravé?
Nastavte si strážneho psa. Ponuky vybrané na mieru dostanete súhrnne 1× denne e-mailom. S Premium profilom máte po ruke rovno 5 strážcov a keď sa niečo objaví, informujú vás obratom.




