
Predaj domu 3+kk • 190 m² bez realitkyBezová, Mukařov - Srbín, Středočeský kraj
Bezová, Mukařov - Srbín, Středočeský krajMHD 6minút pešo • Čiastočne vybavené • Parkovanie • Terasa 20 m²Nabízím k prodeji moderní jednopodlažní pasivní dům (energetická třída A) z roku 2021, vytápěný tepelným čerpadlem. Součástí je také vyhřívaný zastřešený bazén se slanou vodou (7,2 × 3,4 m) a protiproudem. Dům má velmi nízké provozní náklady a je vhodný pro komfortní rodinné bydlení v klidném prostředí přírody.
Nemovitost se nachází na rovinatém a slunném pozemku o velikosti 1 132 m² v rezidenční části obce Mukařov – Srbín, nedaleko Říčan, cca 20 km od Prahy. Pozemek je situován na konci příjezdové komunikace, čímž je zaručen klid od projíždějících vozidel.
Pozemek je rozdělen na několik zón. Kromě dvou travnatých ploch byl kladen důraz na rozmanité zahradě, kombinující traviny, dřeviny, okrasné rostliny a také plodící rostliny (třešeň, borůvka apod.). Najdete zde i odpočinkové zákoutí s ohništěm a samozřejmostí je kompletní oplocení pozemku, aby byla Vaše oáza klidu ničím a nikým nerušena.
Součástí zahrady je také designový zahradní domek s koupelnou a WC, samostatným pokojem a technickou místností (sklad).
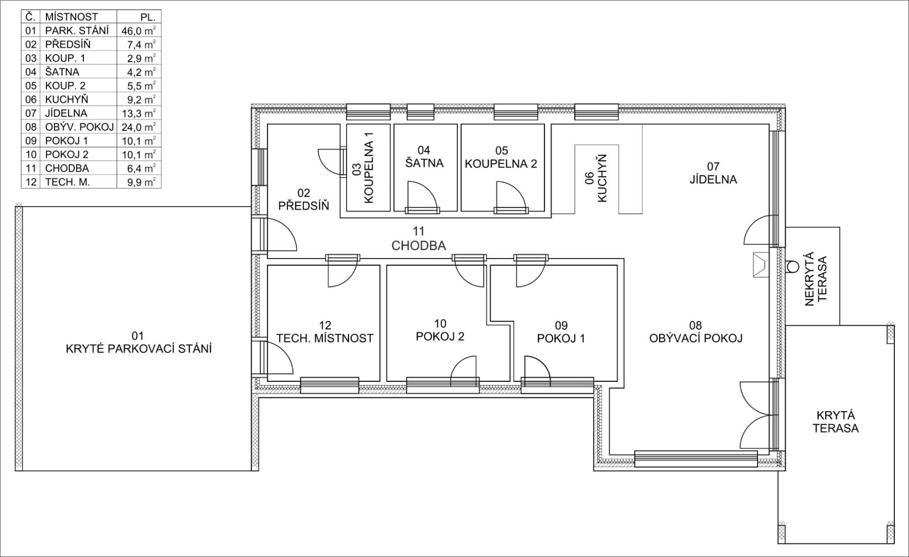
Jednopodlažní dům o dispozici 3+kk nabízí užitnou plochu přes 190 m² (podlahová plocha 109 m²) a promyšlené rozvržení prostor:
- prostorný a světlý obývací pokoj s krbem na dřevo, který lze v zimních měsících využít i na vytápění celého domu
- plně vybavená kuchyň s jídelním koutem v otevřeném konceptu
- přímý vstup na zastřešenou terasu a do zahrady
- dvě komfortní ložnice
- vstupní hala
- technická místnost / sklad
- dvě koupelny (vana + WC, sprchový kout + WC)
- samostatná šatna s vestavěným nábytkem na míru
Dům je navržen s důrazem na funkčnost, dostatek denního světla a propojení interiéru se zahradou.
Vybavení a technologie
- velkoformátová okna s izolačními trojskly
- exteriérové hliníkové lamelové žaluzie na dálkové ovládání
- vinylové podlahy, v koupelnách dlažba s podlahovým vytápěním
- rekuperace vzduchu
- kompletní LED osvětlení
Dům je prodávaný kompletně vybavený, včetně:
- nábytku na míru
- designové kuchyně se všemi vestavnými spotřebiči a kamennou pracovní deskou
- pračky a sušičky
Další výhody
- moderní zabezpečovací systém s kamerami a přístupem do mobilu
- vjezdová brána s elektropohonem a dálkovým ovládáním
- kryté parkovací stání pro 2 auta + 1 venkovní místo
- napojení na veřejný vodovod a kanalizaci
- jímka na dešťovou vodu
V obci je kompletní občanská vybavenost: mateřská i základní škola (cca 5 minut pěšky), obchody, lékárna, pošta, knihovna, restaurace i cukrárny. Autobusová zastávka s přímým spojením na metro Háje je v docházkové vzdálenosti. Výborná dostupnost autem díky blízkému nájezdu na D1 a Pražský okruh.
Okolí nabízí krásnou přírodu, lesy, cyklostezky a možnosti koupání (Vyžlovický a Jevanský rybník).
Při rychlém jednání možnost snížení prodejní ceny.
Modern Passive House (Energy Class A) for Sale
I offer a modern passive house built in 2021, featuring a heat pump and exceptionally low operating costs. The property includes a heated, covered saltwater pool (7.2 × 3.4 m) with a countercurrent system. Located on a flat, sunny 1,132 m2 plot in the residential area of Mukařov – Srbín (near Říčany), just 20 km from Prague. The house sits at the end of a private access road, ensuring maximum peace and privacy.
Garden and Exterior The plot is divided into several functional zones, including lush lawns, ornamental trees, and fruit plants (e.g., blueberries). It features a relaxation nook with a fire pit and is fully fenced. A designer garden house on the property includes a room, bathroom, WC, and storage.
House Layout (3+kk) This single-story home offers a usable area of over 190 m2 (floor area 109 m2) with a functional layout:
- Bright living room with a wood-burning fireplace (capable of heating the entire house).
- Fully equipped open-concept kitchen and dining area.
- Direct access to a covered terrace and the garden.
- Two comfortable bedrooms.
- Entrance hall and utility room.
- Two bathrooms (one with bathtub, one with shower).
- Separate dressing room with custom built-in furniture.
The design emphasizes natural light and a seamless connection between the interior and exterior.
Features and Technologies
- Large-format windows with insulated triple glazing.
- Remote-controlled exterior aluminum blinds.
- Vinyl flooring; bathrooms feature tiling and underfloor heating.
- Air recuperation system.
- Complete LED lighting.
The house is sold fully furnished, including custom furniture, a designer kitchen with appliances, and a washer/dryer.
Additional Advantages
- Security system with cameras and mobile access.
- Automatic electric entry gate with remote control.
- Covered parking for 2 cars plus 1 additional outdoor space.
- Connection to public water and sewage.
- Rainwater collection tank.
Location Mukařov offers complete civic amenities: kindergarten and primary school (5-min walk), shops, pharmacy, post office, and restaurants. Excellent accessibility via nearby bus stops or the D1 motorway and Prague Ring Road. The surroundings are rich in nature, featuring forests, cycling paths, and the Vyžlovický and Jevanský ponds for swimming.
Parametre nehnuteľnosti
| Vek | Do 10 rokov |
|---|---|
| Stav | Novostavba |
| Dispozícia | 3+kk |
| Prevedenie | Luxusné |
| Číslo inzerátu | 986723 |
| Vlastníctvo | Osobné |
| Poloha domu | Samostatný |
| Úžitková plocha | 190 m² |
| Celkové poschodia | 1 |
| Dostupné od | 1. 2. 2026 |
|---|---|
| Konštrukcia budovy | Drevostavba |
| Vybavené | Čiastočne |
| Vykurovanie | Elektrické |
| Nízkoenergetická | Áno |
| PENB | A - Mimoriadne úsporné |
| Umiestnenie | Tichá lokalita |
| Plocha pozemku | 1 132 m² |
| Cena za jednotku | 102 631,58 CZK / m2 |
Čo táto nehnuteľnosť ponúka?
| Bezbariérový prístup | |
| MHD 6 minút pešo |
| Parkovanie | |
| Terasa 20 m² |
V okolí nehnuteľnosti nájdete
Stále hľadáte to pravé?
Nastavte si strážneho psa. Ponuky vybrané na mieru dostanete súhrnne 1× denne e-mailom. S Premium profilom máte po ruke rovno 5 strážcov a keď sa niečo objaví, informujú vás obratom.





















