
Predaj domu • 235 m² bez realitkyMasarykovo náměstí, Zbiroh - Zbiroh, Plzeňský kraj
Masarykovo náměstí, Zbiroh - Zbiroh, Plzeňský krajČiastočne vybavené • Parkovanie • Pivnica 23,5 m² • Lodžia 7,6 m²Nabízíme prodej domu v centru Zbiroha s velikou uzavřenou zahradou.
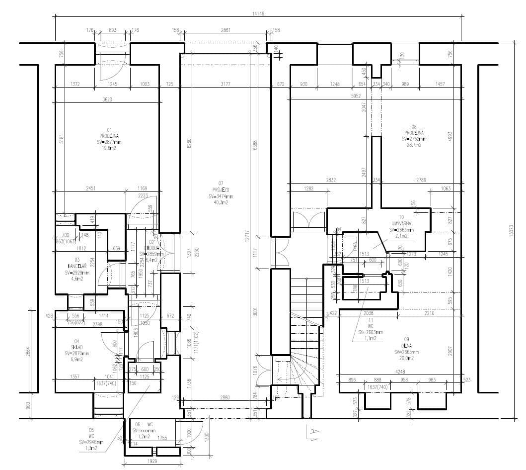
V přízemí se nachází dva samostatné prodejní prostory. Jedná se o prodejnu sklenářství (52 m2) a prodejnu elektro+voda (39 m2), která je momentálně volná k pronájmu. V přízemí domu se nachází průjezd o šířce 3,2 m, kam je možné bez problému vjet osobním automobilem.
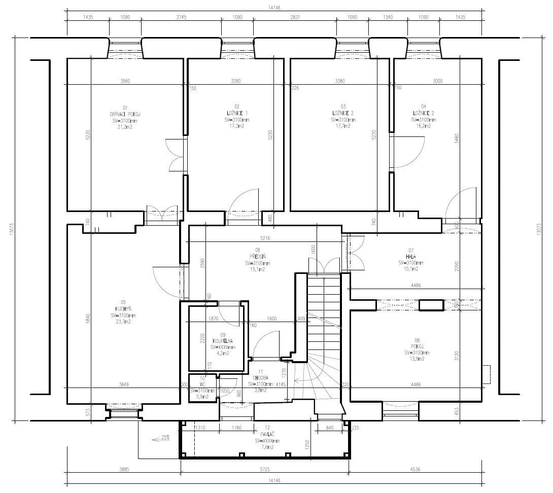
V patře se nachází 6 velkých obytných místností, koupelna, samostatné WC, předsíň a pavlač. Vysoké stropy 3,1 m.
Z předsíně je vstup na schodiště vedoucí na půdu, která je prázdná, nevyužitá. Dům má novou střešní krytinu.
Vytápění domu je zajištěno kamny v jednotlivých místnostech.
Na zahradě je samostatný domek, využitelný např. jako dílna, a dále 5 zděných kůlen.
Využitelné plochy jsou následující:
Přízemí: celková plocha místností 91 m2, + plocha průjezdu: 40 m2.
Patro: celková plocha místností: 144 m2, + pavlač 7,6 m2 + schodiště cca 10 m2.
Rozlehlý půdní prostor o ploše cca 165 m2.
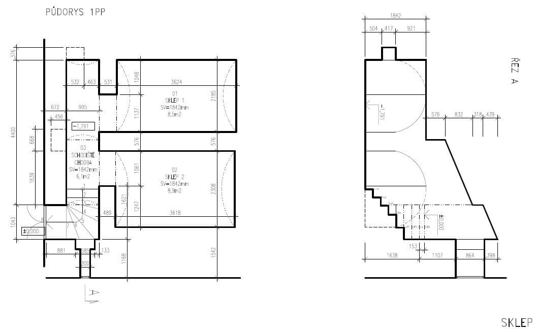
Sklep: kamenný, 23,5 m2.
Na zahradě: samostatný domek o užitné ploše cca 20 m2, kůlny cca 35 m2
Nemovitost je vhodná k rekonstrukci, například s možností realizace dvou velkých bytů v patře.
Nemovitost se nachází na rozlehlém pozemku o velikosti 869 m2, který nabízí soukromí a dostatek prostoru pro další úpravy dle vašich představ. Krásná a klidná lokalita s vynikající dojezdovostí do Prahy (30 min, 50 km) nebo Plzně (25 min, 35 km) po D5.
Pro více informací a sjednání prohlídky mě neváhejte kontaktovat. Cena k jednání. Realitní kanceláře a realitní agenti prosím nevolejte.
Parametre nehnuteľnosti
| Dostupné od | 23. 3. 2026 |
|---|---|
| Konštrukcia budovy | Tehla |
| Vybavené | Čiastočne |
| Vlastníctvo | Osobné |
| Poloha domu | Radovka |
| Plocha pozemku | 869 m² |
| Cena za jednotku | 33 617 CZK / m2 |
| Stav | Dobrý |
|---|---|
| Dispozícia | Ostatné |
| Číslo inzerátu | 974072 |
| PENB | G - Mimoriadne nehospodárne |
| Úžitková plocha | 235 m² |
| Celkové poschodia | 2 |
Čo táto nehnuteľnosť ponúka?
| Pivnica 23,5 m² | |
| Parkovanie |
| Lodžia 7,6 m² |
V okolí nehnuteľnosti nájdete
Stále hľadáte to pravé?
Nastavte si strážneho psa. Ponuky vybrané na mieru dostanete súhrnne 1× denne e-mailom. S Premium profilom máte po ruke rovno 5 strážcov a keď sa niečo objaví, informujú vás obratom.



















