
Predaj pozemku • 476 m² bez realitkyK Cihelně, Praha - Satalice
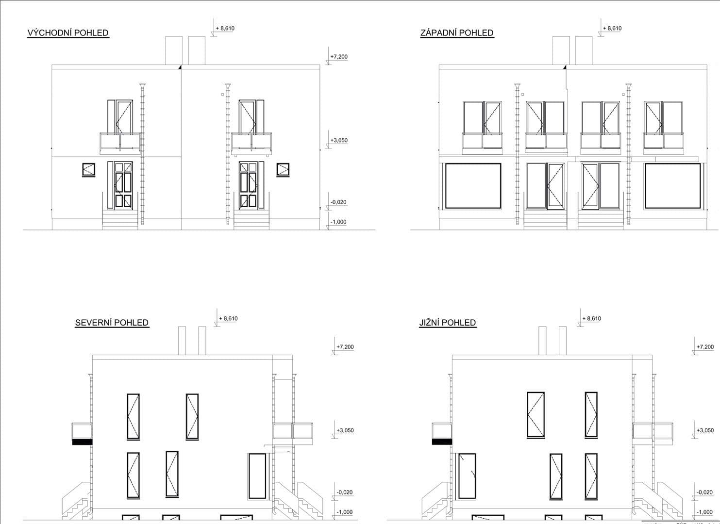
K Cihelně, Praha - SataliceMHD 1 minúta pešoPředmětem prodeje je exkluzivní stavební pozemek p. č. 383/1 o výměře 476m2, katastrální území Satalice v Praze 9 s platným stavebním povolením. Pozemek se nachází ve slepé ulici, v těsné blízkosti základní školy. Jedná se o poslední nezastavěný pozemek v této ulici. Kupní cena zahrnuje projektovou dokumentaci a stavební povolení k výstavbě rodinného domu s obytnou plochou 233 m2, zastavěná plocha 133 m2. Dům je nyní koncipován jako dvougenerační (2 x 4+kk) se samostatnými vstupy a parkováním na pozemku. V rámci změny stavby před dokončením je možná změna projektu, dispozice atd. Pozemek je oplocený a disponuje všemi inženýrskými sítěmi, (kanalizace, veřejný vodovod, elektřina a plyn). K pozemku je bezproblémový přístup autem po veřejné komunikaci.
Možnost financování koupě nemovitosti hypotečním úvěrem, cena: 9 980 000 Kč
The subject of the sale is an exclusive building plot parcel no. 383/1 with an area of 476m2, in the cadastral area of Satalice in Prague 9, with a valid building permit.
The plot is located in a dead-end street, in close proximity to a primary school. It is the last undeveloped plot in this street.
The purchase price includes project documentation and a building permit for the construction of a family house with a living area of 233m2 and a built-up area of 133m2. The house is currently designed as a two-generation (2 x 4+kk) with separate entrances and parking on the plot.
Changes to the project, layout, etc. are possible before completion.
The plot is fenced and has all engineering networks (sewerage, public water supply, electricity, and gas). There is easy access to the plot by car via a public road.
The purchase of the property can be financed by a mortgage loan.
Price: 14,280,000 CZK.
Parametre nehnuteľnosti
| Dostupné od | 1. 4. 2026 |
|---|---|
| Typ pozemku | Stavebný |
| Umiestnenie | Tichá lokalita |
| Cena za jednotku | 20 966,39 CZK / m2 |
| Číslo inzerátu | 816672 |
|---|---|
| Vlastníctvo | Osobné |
| Plocha pozemku | 476 m² |
Čo táto nehnuteľnosť ponúka?
| MHD 1 minúta pešo |
V okolí nehnuteľnosti nájdete



Predaj pozemkuKvětinová, Čakovičky - Čakovičky, Středočeský kraj- 1240 m²
7 990 000 CZK8 308 000 CZK
Ušetríte 318 000 CZK

Stále hľadáte to pravé?
Nastavte si strážneho psa. Ponuky vybrané na mieru dostanete súhrnne 1× denne e-mailom. S Premium profilom máte po ruke rovno 5 strážcov a keď sa niečo objaví, informujú vás obratom.















