
Prenájom bytu 1+1 • 32 m²Václavská, Staré Brno, Jihomoravský kraj
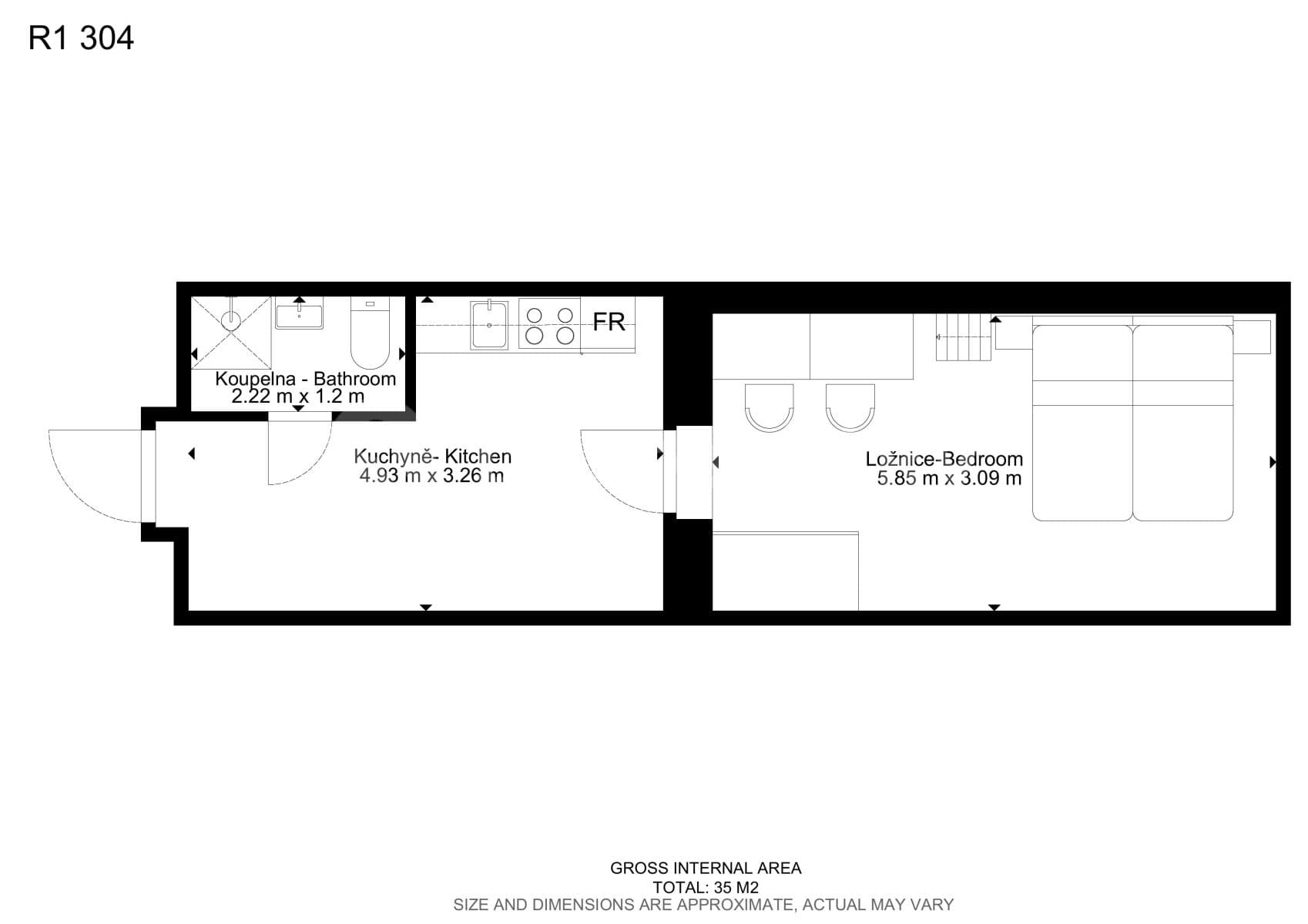
Václavská, Staré Brno, Jihomoravský krajMHD 2 minúty pešo • Vybavené • ParkovanieNabízíme k podnájmu jednotku R1.304 o celkové výměře 32,27 m2, která je k dispozici ihned. K dispozici je ve stejném komplexu několik jednotek ve velikosti 1+kk, 2+kk a 2+1 pro 2- 4 osoby.
Jedná se o podnájem kompletně vybavené jednotky o dispozici 1+1 v nově zrekonstruovaném domě. Součástí vybavení je plně zařízená kuchyně včetně lednice, sporáku s troubou, digestoře a dřezu. Jednotka je vybavena dvěma pracovními stoly se židlemi, dvěma postelemi s nočním stolkem a prostornou skříní. Koupelna nabízí sprchový kout, záchod a umyvadlo se zrcadlem. K dispozici je příprava pro připojení vlastní pračky. V jednotce je k dispozici internetové připojení a je možné sjednat parkovací kartu se slevou.
Cena 15 900 Kč + 2 000 Kč energie + 2 420 Kč služby + 25 000 Kč vratná kauce + jednorázová platba administrativní poplatek.
Jednotky se nachází v lukrativní oblasti v bezprostřední blízkosti centra Brna. Samotné centrum Brna je dostupné v pěší vzdálenosti.
V těsné blízkosti se nachází jeden z největších dopravních uzlů v Brně – Mendlovo náměstí, které Vám zajistí bezproblémové spojení na brněnské univerzity. V okolí se nachází několik obchodů, restaurací, barů, posiloven a ostatních služeb, které Vám zpříjemní žití na tomto místě.
O aktuální dostupnosti a podmínkách Vás budeme rádi informovat.
Rádi se s Vámi setkáme na osobní prohlídce.
We offer for rent a R1.304 unit with a total area of 32.27 m2, which is available from 01/08/2023. There are several units available in the same complex in the size of 1+kk, 2+kk and 2+1 for 2-4 people.
This is a rental of a fully equipped unit available 1+1 in a newly renovated building. The equipment includes a fully equipped kitchen, including a refrigerator, a stove with an oven, a hood and a sink. The unit is equipped with two desks with chairs, two beds with a bedside table and a spacious wardrobe. The bathroom offers a shower, a toilet and a sink with a mirror. There is preparation for connecting your own washing machine or you can use the common laundries, where there are always washing machines and dryers. Internet connection is available in the apartment unit. It is possible to arrange a parking card with a 50% discount for each apartment unit.
Price: CZK 12,900 + CZK 2,000 energy + CZK 1,210 utilities + CZK 25,000 refundable deposit + one-time payment of CZK 5,000 administrative fee.
The units are located in a lucrative area in the immediate vicinity of the center of Brno. The center of Brno itself is within walking distance.
One of the largest transport hubs in Brno - Mendlovo náměstí - is located in the immediate vicinity, which will provide you with a problem-free connection to Brno's universities. In the vicinity there are several shops, restaurants, bars, gyms and other services that will make living in this place more pleasant.
We will be happy to inform you about the current availability and conditions.
We will be happy to meet you for a personal tour.
Parametre nehnuteľnosti
| Dostupné od | 1. 6. 2026 |
|---|---|
| Konštrukcia budovy | Tehla |
| Vybavené | Vybavené |
| Vykurovanie | Elektrické |
| PENB | G - Mimoriadne nehospodárne |
| Úžitková plocha | 32 m² |
| Stav | Veľmi dobrý |
|---|---|
| Dispozícia | 1+1 |
| Poschodie | 3. poschodie z 4 |
| Číslo inzerátu | 782948 |
| Umiestnenie | Tichá lokalita |
| Cena za jednotku | 496,88 CZK / m2 |
Čo táto nehnuteľnosť ponúka?
| Parkovanie |
| MHD 2 minúty pešo |
V okolí nehnuteľnosti nájdete





Prenájom bytuKarla Kryla, Brno - Sadová, Jihomoravský kraj- 2+kk
- 50 m²
18 000 CZK + 7 400 CZK23 000 CZK
Ušetríte 5 000 CZK
Stále hľadáte to pravé?
Nastavte si strážneho psa. Ponuky vybrané na mieru dostanete súhrnne 1× denne e-mailom. S Premium profilom máte po ruke rovno 5 strážcov a keď sa niečo objaví, informujú vás obratom.







